Löggiltir fasteignasalar innan Félags fasteignasala:
Hannes Steindórsson
Bogi Molby Pétursson
Guðrún Antonsdóttir
Heimir Hallgrímsson
Hrafnkell P. H. Pálmason
Viðar Marinósson
Elías Haraldsson
Kristján Þórir Hauksson
Albert Bjarni Úlfarsson
Ragnar Þorsteinsson
Þórey Ólafsdóttir
Andri Freyr Halldórsson
Upplýsingar
Byggt 2024
168,8 m²
4 herb.
2 baðherb.
3 svefnh.
Þvottahús
Bílskúr
Útsýni
Sameiginl. inngangur
Lyfta
Laus strax
Lýsing
*** HÆGT ER AÐ SKOÐA ALLA DAGA *** AUKIN LOFTHÆÐ *** VANDAÐAR INNRÉTTINGAR *** BÍLSKÚR ** ÚTSÝNI *** FJÓRBÝLI, TVÆR ÍBÚÐIR Á HÆÐ *** MYNDIR ERU AF EIGN ***
LIND Fasteignasala og Guðrún Antonsdóttir kynna með stolti nýjar íbúðir við Hraungötu 5. Glæsilegar íbúðir í fjórbýli. Einstök hönnun er á húsinu sem vekur mikla eftirtekt. Íbúðirnar afhendast fullbúnar að innan, með gólfefnum, innbyggðri uppþvottavél, ísskáp með frysti og ljósum. Ljós eru innbyggð að hluta, kubbaljós, ljósakúplar með free@home rafstýringu frá ABB sem gerir þér kleift að búa til ljósasenur og slökkva öll ljós með einum takka. Baðherbergi eru flísalögð, bæði veggir og gólf. Gólf á þvottahúsum eru flísalögð.
Innréttingar eru frá VOKE III í hvítu, og tæki frá Ormsson, AEG
*** Nánari upplýsingar veitir Guðrún Antonsdóttir Löggiltur fasteignasali, í síma 621-2020, tölvupóstur gudrun@fastlind.is ***
Myndir eru af eigninnu sjálfri
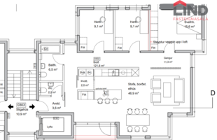
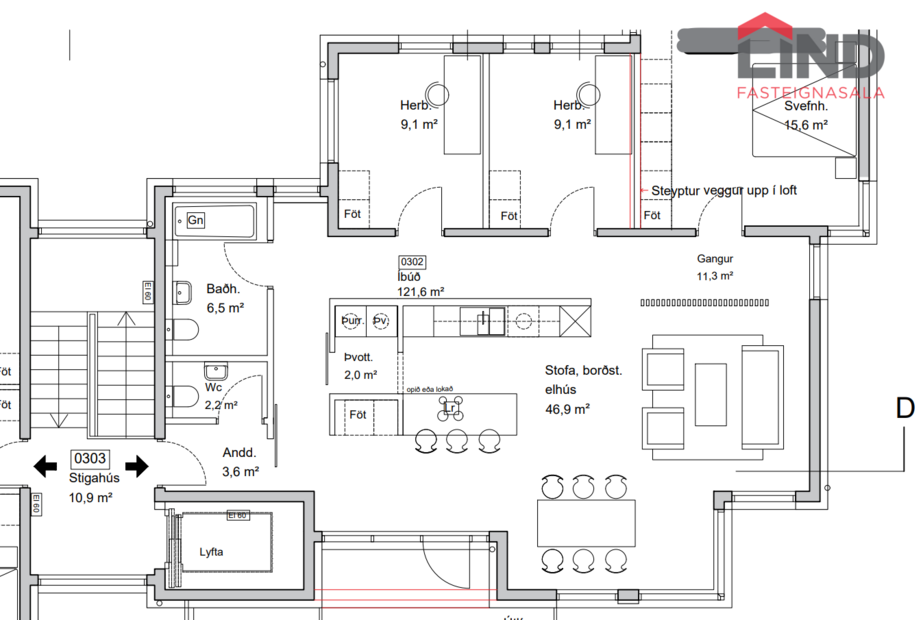
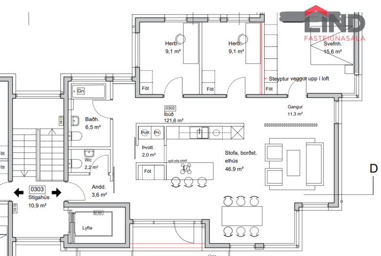
Nánari lýsing eignar 302, 4ra herbergja íbúð á þriðju hæð,efstu hæð, mikil lofthæð.
Forstofa með flísum á gólfi og yfirhafnaskáp.
Stofa/alrými með harðparketi á gólfi, útgengt út á svalir
Eldhúsinnrétting er hvít og nær upp í loft með eyju. Öll raftæki eru frá AEG, bakaraofn, ísskápur með frysti, helluborð og uppþvottavél.
Svefnherbergin eru þrjú með fataskápum, lýsing er í öllum fataskápum.
Baðherbergi með sturtu, innréttingu, handlaug, upphengdu salerni og handklæðaofn,
Þvottahús með aðstaðu fyrir þvottavél og þurrkara.
Geymsla inn af bílskúr, 13,8fm
Bílskúr 27fm
Áætluð afhending er við kaupsamning
Allar nánari upplýsingar á heimasíðu verkefnisins:
Hér er hlekkur inn á google maps sem leiðir þig á réttan stað. KORT
Húsbyggjandi: Breiðahvarf ehf ( sami eigandi, Dalhús byggingafélags))
Aðalhönnuður: Úti inni arkitektar: Baldur Svarvarsson
Verkfræðihönnun: Víðsjá
Raflagnahönnun: Gunnar Jónsson Rafiðnfræðingur
Stutt lýsing húss:
Hraungata 5. Er stórglæsilegt og einstaklega flott hannað fjórbýli á þremur hæðum.
* Vandaðar innréttingar frá Voke III innréttingum, hvítar
* Innbyggður ísskápur m. frysti, span helluborð og vifta. Blásturbakarasofn allt frá AEG,
* Blöndunartækin eru frá Tengi
* Úti Inni arkitektar sér um alla hönnun á húsi
Bílskúrar eru þrír, fylgja íbúðum 202,301,302
Ytri frágangur og lóð.
Húsið afhendist fullbúið að utan, lóð fullbúin. Að utan verður húsið frágengið á eftirfarandi hátt. Þak er að hluta steinsteypt, með ásoðnum tjörupappa, einangrað með þrýstieinangrun (Roofmate). Þak er einangrað á milli sperra og klætt með gifsplötum. Þaksvalir eru hellulagðar. Frágengin niðurföll. Húsið er einangrað að utan og klætt með álklæðningu.
Um svæðið og nærliggjandi: Húsið er vel staðsett nálægt Urriðaholtsskóla, sem er grunn- og leikskóli hverfisins. Einn besti golfvöllur landsins (Oddur) er í göngufæri og sömuleiðis útivistarsvæðin í Heiðmörk, Vífilstaðarhrauni og við Urriðavatn. Efst á Háholti er gert ráð fyrir blandaðri byggð íbúða og þjónustu s.s verslun, heilsugæslu, skólum og íþróttamannvirkjum.
Allir Kaupendur okkar fá Vildarkort Lindar, með því að framvísa kortinu færð þú 30% afslátt hjá 8 samstarfsaðilum. meðal annars er Húsgagnahöllin, S. Helgason, Flugger litir, Ísleifur Jónsson, Parket og Gólf, Betra bak, Dorma og flísabúðinni. Vertu með okkur í liði og fáðu Vildarkort
Seljandi áskilur sér allan rétt til að gera efnis-, tæknilegar- og útlits breytingar meðan á
byggingaframkvæmd stendur.
Allar breytingar að ósk kaupenda þurfa að fara í gegnum skrifstofur seljanda og geta haft áhrif á
afhendingartíma til seinkunnar. Breytingar geta leitt til kostnaðarauka en aldrei til lækkunar.
Kaupandi greiðir 0,3% af væntanlegu brunabótamáti þegar það verður lagt á íbúðina.
Heimild seljanda til að breyta eignaskiptasamning sé þess þörf án þess þó að rýra eignarrétt kaupanda.
Innréttingateikningar eru þær sem gilda ef misræmi er milli arkitektateikninga og innréttingateikninga og eru þær áritaðar og hluti samningsins.
Eignin afhendist skv meðfylgjandi skilalýsingu.
Frekari upplýsingar og skilalýsing er að fá hjá fasteignasala.
3D teikningar er til viðmiðunar á skipulagi en kemur ekki í staðin fyrir grunnteikningar
*** Nánari upplýsingar veitir Guðrún Antonsdóttir Löggiltur fasteignasali, í síma 621-2020, tölvupóstur gudrun@fastlind.is
Ertu í söluhugleiðingum hafðu þá samband og við förum yfir málið
Guðrún sími 621 20 20 eða sendu tölvupóst á gudrun@fastlind.is
-----------------------------------------------------------------------
Gjöld sem kaupandi þarf að standa straum af vegna kaupanna:
1. Stimpilgjald af kaupsamningi - 0.8% af heildarfasteignamati / 1.6% fyrir lögaðila
Fyrstu kaup - 0,4% af heildarfasteignamati
2. Þinglýsingagjald af kaupsamningi, veðskuldabréfi, veðleyfi o.fl.- kr. 2.700 af hverju skjali.
3. Lántökugjald lánastofnunar
4. Umsýsluþóknun til fasteignasölu, sbr.kauptilboð.
LIND Fasteignasala og Guðrún Antonsdóttir kynna með stolti nýjar íbúðir við Hraungötu 5. Glæsilegar íbúðir í fjórbýli. Einstök hönnun er á húsinu sem vekur mikla eftirtekt. Íbúðirnar afhendast fullbúnar að innan, með gólfefnum, innbyggðri uppþvottavél, ísskáp með frysti og ljósum. Ljós eru innbyggð að hluta, kubbaljós, ljósakúplar með free@home rafstýringu frá ABB sem gerir þér kleift að búa til ljósasenur og slökkva öll ljós með einum takka. Baðherbergi eru flísalögð, bæði veggir og gólf. Gólf á þvottahúsum eru flísalögð.
Innréttingar eru frá VOKE III í hvítu, og tæki frá Ormsson, AEG
*** Nánari upplýsingar veitir Guðrún Antonsdóttir Löggiltur fasteignasali, í síma 621-2020, tölvupóstur gudrun@fastlind.is ***
Myndir eru af eigninnu sjálfri
Nánari lýsing eignar 302, 4ra herbergja íbúð á þriðju hæð,efstu hæð, mikil lofthæð.
Forstofa með flísum á gólfi og yfirhafnaskáp.
Stofa/alrými með harðparketi á gólfi, útgengt út á svalir
Eldhúsinnrétting er hvít og nær upp í loft með eyju. Öll raftæki eru frá AEG, bakaraofn, ísskápur með frysti, helluborð og uppþvottavél.
Svefnherbergin eru þrjú með fataskápum, lýsing er í öllum fataskápum.
Baðherbergi með sturtu, innréttingu, handlaug, upphengdu salerni og handklæðaofn,
Þvottahús með aðstaðu fyrir þvottavél og þurrkara.
Geymsla inn af bílskúr, 13,8fm
Bílskúr 27fm
Áætluð afhending er við kaupsamning
Allar nánari upplýsingar á heimasíðu verkefnisins:
Hér er hlekkur inn á google maps sem leiðir þig á réttan stað. KORT
Húsbyggjandi: Breiðahvarf ehf ( sami eigandi, Dalhús byggingafélags))
Aðalhönnuður: Úti inni arkitektar: Baldur Svarvarsson
Verkfræðihönnun: Víðsjá
Raflagnahönnun: Gunnar Jónsson Rafiðnfræðingur
Stutt lýsing húss:
Hraungata 5. Er stórglæsilegt og einstaklega flott hannað fjórbýli á þremur hæðum.
* Vandaðar innréttingar frá Voke III innréttingum, hvítar
* Innbyggður ísskápur m. frysti, span helluborð og vifta. Blásturbakarasofn allt frá AEG,
* Blöndunartækin eru frá Tengi
* Úti Inni arkitektar sér um alla hönnun á húsi
Bílskúrar eru þrír, fylgja íbúðum 202,301,302
Ytri frágangur og lóð.
Húsið afhendist fullbúið að utan, lóð fullbúin. Að utan verður húsið frágengið á eftirfarandi hátt. Þak er að hluta steinsteypt, með ásoðnum tjörupappa, einangrað með þrýstieinangrun (Roofmate). Þak er einangrað á milli sperra og klætt með gifsplötum. Þaksvalir eru hellulagðar. Frágengin niðurföll. Húsið er einangrað að utan og klætt með álklæðningu.
Um svæðið og nærliggjandi: Húsið er vel staðsett nálægt Urriðaholtsskóla, sem er grunn- og leikskóli hverfisins. Einn besti golfvöllur landsins (Oddur) er í göngufæri og sömuleiðis útivistarsvæðin í Heiðmörk, Vífilstaðarhrauni og við Urriðavatn. Efst á Háholti er gert ráð fyrir blandaðri byggð íbúða og þjónustu s.s verslun, heilsugæslu, skólum og íþróttamannvirkjum.
Allir Kaupendur okkar fá Vildarkort Lindar, með því að framvísa kortinu færð þú 30% afslátt hjá 8 samstarfsaðilum. meðal annars er Húsgagnahöllin, S. Helgason, Flugger litir, Ísleifur Jónsson, Parket og Gólf, Betra bak, Dorma og flísabúðinni. Vertu með okkur í liði og fáðu Vildarkort
Seljandi áskilur sér allan rétt til að gera efnis-, tæknilegar- og útlits breytingar meðan á
byggingaframkvæmd stendur.
Allar breytingar að ósk kaupenda þurfa að fara í gegnum skrifstofur seljanda og geta haft áhrif á
afhendingartíma til seinkunnar. Breytingar geta leitt til kostnaðarauka en aldrei til lækkunar.
Kaupandi greiðir 0,3% af væntanlegu brunabótamáti þegar það verður lagt á íbúðina.
Heimild seljanda til að breyta eignaskiptasamning sé þess þörf án þess þó að rýra eignarrétt kaupanda.
Innréttingateikningar eru þær sem gilda ef misræmi er milli arkitektateikninga og innréttingateikninga og eru þær áritaðar og hluti samningsins.
Eignin afhendist skv meðfylgjandi skilalýsingu.
Frekari upplýsingar og skilalýsing er að fá hjá fasteignasala.
3D teikningar er til viðmiðunar á skipulagi en kemur ekki í staðin fyrir grunnteikningar
*** Nánari upplýsingar veitir Guðrún Antonsdóttir Löggiltur fasteignasali, í síma 621-2020, tölvupóstur gudrun@fastlind.is
Ertu í söluhugleiðingum hafðu þá samband og við förum yfir málið
Guðrún sími 621 20 20 eða sendu tölvupóst á gudrun@fastlind.is
-----------------------------------------------------------------------
Gjöld sem kaupandi þarf að standa straum af vegna kaupanna:
1. Stimpilgjald af kaupsamningi - 0.8% af heildarfasteignamati / 1.6% fyrir lögaðila
Fyrstu kaup - 0,4% af heildarfasteignamati
2. Þinglýsingagjald af kaupsamningi, veðskuldabréfi, veðleyfi o.fl.- kr. 2.700 af hverju skjali.
3. Lántökugjald lánastofnunar
4. Umsýsluþóknun til fasteignasölu, sbr.kauptilboð.