Upplýsingar
Verðsaga
Byggt 1964
52,6 m²
2 herb.
1 baðherb.
1 svefnh.
Lýsing
Steindór Guðmundsson löggiltur fasteignasali 862 1996 og HÚS fasteignasala kynna í einkasölu Austurvegur 34, íb. 203, Selfossi. Vel staðsett 52 fm íbúð á 2. hæð miðsvæðis á Selfossi. Íbúðin er laus til afhendingar við kaupsamning.
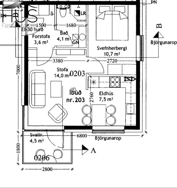
Íbúðin er 49,0 fm á 2.hæð auk 3,6 fm geymslu í kjallara alls 52,6 fm.
Flísalögð forstofa með skáp þar er tengi fyrir þvottavél.
Flísalagt baðherbergi þar sem er innrétting, upphengt salerni og sturtuklefi.
Svefnherbergi með skápum. Plastparket er á gólfi.
Eldhús og stofa er opið í eitt. Útgengt er á 4,5 fm suðursvalir úr stofu. Eldhúsinnrétting er filmuð höldulaus innrétting með eikarborðplötu.
Húsið er klætt að utan með álklæðningu. Ál/tré gluggar.
Sameiginlegt þvottahús í kjallara.
Lóð er malbikuð.
Vel staðsett eign stutt í leik-, grunn- og framhaldsskóla, sundlaug og íþróttasvæði, verslun og heilsugæslu.
Nánari upplýsingar veitir Steindór Guðmundsson löggiltur fasteignasali s. 862 1996 steindor@husfasteign.is
,,Okkar fagmennska eru þínir hagsmunir"
Gjöld sem kaupandi þarf að standa straum að vegna kaupanna.
1. Stimpilgjöld af kaupsamningi - 0,8 % af heildarfasteignamati. (0,4% fyrstu kaup, 1,6% lögaðilar)
2. Þinglýsingargjald af kaupsamningi, veðskuldabréfi, mögulegu veðleyfi o.fl. kr. 3.800 af hverju skjali.
3. Lántökugjald lánastofnunnar, breytilegt. Nánari upplýsingar t.d. á heimasíðum lánastofnanna.
4. Umsýslugjald til fasteignasölu sbr. kauptilboð.
Gjöld sem kaupandi þarf að standa straum að vegna kaupanna.
Íbúðin er 49,0 fm á 2.hæð auk 3,6 fm geymslu í kjallara alls 52,6 fm.
Flísalögð forstofa með skáp þar er tengi fyrir þvottavél.
Flísalagt baðherbergi þar sem er innrétting, upphengt salerni og sturtuklefi.
Svefnherbergi með skápum. Plastparket er á gólfi.
Eldhús og stofa er opið í eitt. Útgengt er á 4,5 fm suðursvalir úr stofu. Eldhúsinnrétting er filmuð höldulaus innrétting með eikarborðplötu.
Húsið er klætt að utan með álklæðningu. Ál/tré gluggar.
Sameiginlegt þvottahús í kjallara.
Lóð er malbikuð.
Vel staðsett eign stutt í leik-, grunn- og framhaldsskóla, sundlaug og íþróttasvæði, verslun og heilsugæslu.
Nánari upplýsingar veitir Steindór Guðmundsson löggiltur fasteignasali s. 862 1996 steindor@husfasteign.is
,,Okkar fagmennska eru þínir hagsmunir"
Gjöld sem kaupandi þarf að standa straum að vegna kaupanna.
1. Stimpilgjöld af kaupsamningi - 0,8 % af heildarfasteignamati. (0,4% fyrstu kaup, 1,6% lögaðilar)
2. Þinglýsingargjald af kaupsamningi, veðskuldabréfi, mögulegu veðleyfi o.fl. kr. 3.800 af hverju skjali.
3. Lántökugjald lánastofnunnar, breytilegt. Nánari upplýsingar t.d. á heimasíðum lánastofnanna.
4. Umsýslugjald til fasteignasölu sbr. kauptilboð.
Gjöld sem kaupandi þarf að standa straum að vegna kaupanna.
Ár
Fasteignamat
Kaupverð
Stærð
Fermetraverð
14. okt. 2020
20.500.000 kr.
22.500.000 kr.
52.6 m²
427.757 kr.
6. sep. 2016
12.200.000 kr.
15.300.000 kr.
52.6 m²
290.875 kr.
8. feb. 2008
8.567.000 kr.
13.900.000 kr.
52.6 m²
264.259 kr.
Byggt á upplýsingum úr Þjóðskrá Íslands frá 2006-2026