Löggiltir fasteignasalar innan Félags fasteignasala:
Sverrir Kristinsson
Kjartan Hallgeirsson
Guðlaugur Ingi Guðlaugsson
Daði Hafþórsson
Gunnar Helgi Einarsson
Gunnar Bergmann Jónsson
Lilja Guðmundsdóttir
Jenný Sandra Gunnarsdóttir
Kári Sighvatsson
Vista
fjölbýlishús

Valshlíð 16

102 Reykjavík

129.900.000 kr.

700.270 þ.kr./m2
Fasteignanúmer

F2509157

Fasteignamat

99.450.000 kr.

Brunabótamat

81.680.000 kr.

Áhvílandi

0 kr.

Arion banki – Reikna lán
Upplýsingar
Verðsaga
svg
Byggt 2020
svg
185,5 m²
svg
3 herb.
svg
2 baðherb.
svg
2 svefnh.
svg
Þvottahús
svg
Sameiginl. inngangur
svg
Bílastæði
svg
Lyfta

Lýsing

Eignamiðlun kynnir:

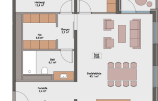
Falleg og vel skipulögð þriggja herbergja íbúð á þriðju hæð við Valshlíð á Hlíðarenda.
Horníbúð með miklu útsýni í húsi sem er vel staðsett innan hverfisins. Húsið og reiturinn í heild er mjög vandað. Fallegur inngarður með aðgangsstýringu.


Birt stærð eignar er skráð 140,7 fm. hjá FMR, þar af er 30,9 fm. sérgeymsla innaf bílastæði.
Að auki er 44,8 fm bílskúr  í bílageymsluhúsi, merktur C19, sem telur ekki í fermetrafjölda íbúðar. 
Lofthæð í bílskúr og geymslu er um fimm metrar, sem gefur möguleika á millilofti.

Fasteignamat 2026: 110.150.000kr


Smelltu hér til að fá sent söluyfirlit

Nánari lýsing:
Parketlögð forstofa með vönduðum fataskáp frá JKE sem nær upp í loft.
Flísalagt gestabaðherbergi með "walk-in" sturtu. Upphengt salerni, handklæðaofn, frístandandi vaskur og blöndunartæki frá Tengi. 
Stórt eldhús er opið við stofu með miklu skápaplássi. Quartz borðplata frá Granítsmiðjunni í eyju, sem búið er að koma fyrir auka rafmagnstenglum.  Niðurfellt spanhelluborð og Elica gufugleypir. Miele bökunarofn í vinnuhæð, ásamt Temptech vínkæli. Innfeld uppþvottavél frá Miele og innfeldur ísskápur frá Bosch. Lýsing undir efri skápum.
Inn af eldhúsi er þvottahús með ræstivaski og góðri aðstöðu fyrir þvottavél og þurrkara.
Björt falleg stofa með gólfsíðum gluggum og útgengi á svalir til norðurs og austurs. Viðarklætt svalargólf. 
Tvö parketlögð svefnherbergi með góðum fataskápum frá JKE.
Við hjónaherbergi er rúmgott fataherbergi með verulega miklu skápaplássi.
Flísalagt baðherbergi í hólf og gólf. "Walk-in" sturta, upphengt salerni, handklæðaofn, frístandandi vaskur og blöndunartæki frá Tengi. 
Rúmgóð hjóla og vagnageymsla í sameign.

Aukin lofthæð, gólfsíðir gluggar, Miele tæki, Quarts á borðum. Ljósahönnun frá LUMEX. 
Eignin er laus til afhendingar.


Húsið var byggt 2020 og klætt að utan með álklæðningu. Gluggar eru vandaðir danskir ál/tré gluggar frá Velfac sem hafa það einkenni að vera með hátt einangrunargildi fyrir hita og hljóði.
Aukin lofthæð er í húsinu 280 cm og gólfsíðir gluggar. Innréttingar eru frá danska fyrirtækinu JKE.
Blöndunartæki, handlaugar og salerni eru frá Tengi.
Sameiginlegur skjólgóður garður. Upphitaðar gönguleiðir og snjóbræðsla í inngarði. 
Bílakjallarinn er á tveimur hæðum og í honum er fjöldi bílskúra auk hefðbundinna bílastæða.
Húsið er hannað af Alark Arkitektum. 

Nánari upplýsingar veita:
Unnar Kjartansson, löggiltur fasteignasali, í síma 867-0968 eða unnar@eignamidlun.is
Alfreð Valencia, aðstoðarmaður fasteignasala, í síma 776-2150 eða alfred@eignamidlun.is
 

***
Ábyrg þjónusta í áratugi. Eignamiðlun var stofnuð 1957 og er elsta starfandi fasteignasala á Íslandi. Reynsla, heiðarleiki og þekking á fasteignamarkaðnum eru grunnur að farsælum viðskiptum. 

Eignamiðlun Grensásvegi 11, 108 Reykjavík - Opið frá kl. 9-17 mánudaga til fimmtudaga og 9-16 á föstudögum.

Heimasíða Eignamiðlunar

Eignamiðlun á Facebook

Eignamiðlun

Eignamiðlun

Grensásvegi 11, 108 Reykjavík
Ár
Fasteignamat
Kaupverð
Stærð
Fermetraverð
9. jún. 2021
33.800.000 kr.
89.900.000 kr.
140.7 m²
638.948 kr.
Byggt á upplýsingum úr Þjóðskrá Íslands frá 2006-2025
Eignamiðlun

Eignamiðlun

Grensásvegi 11, 108 Reykjavík