Löggiltir fasteignasalar innan Félags fasteignasala:
Eiríkur Svanur Sigfússon
Aron Freyr Eiríksson
Melkorka Guðmundsdóttir
Kristófer Fannar Guðmundsson
Svala Haraldsdóttir
Stefán Rafn Sigurmannsson
Arnór Daði Eiríksson
Vista
svg

312

svg

162  Skoðendur

svg

Skráð  29. nóv. 2025

atvinnuhúsnæði

Borgahella 25

221 Hafnarfjörður

29.400.000 kr.

490.000 þ.kr./m2
Fasteignanúmer

F2537821

Fasteignamat

23.250.000 kr.

Brunabótamat

23.200.000 kr.

Áhvílandi

0 kr.

Arion banki – Reikna lán
Upplýsingar
svg
Byggt 2026
svg
60 m²
svg
0 herb.

Lýsing

Nýtt og glæsilegt geymsluhúsnæði við Borgahellu 25 í Hafnarfirði. 
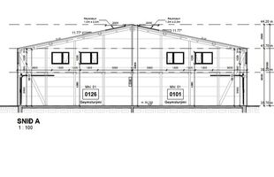
Húsið skiptist í 26 eignahluta í sambærilegum stærðum með límtré sem meginburðarkerfi.


ATH. Engin vsk-kvöð er á húsnæðinu.

Stærðir: 60 fm - 72 fm.
Verð: 29,4 mkr. til 32,9 mkr.
Áætluð afhending: Febrúar 2026

Smelltu hér til að skoða sölusíðu verkefnisins.

Nánari lýsing:

- Innkeyrsluhurð 3m x 3m með rafstýringu
- Gönguhurð í hverju bili
- Lofthæð frá útvegg 6m til 8,5m við mæni.
- Gluggar fyrir ofan innkeyrsluhurð í hverju bili
- Lagnir fyrir salerni verður komið fyrir í hverju bili.
- 3ja fasa rafmagn og sér rafmagnstafla í hverju bili.
- Bilin eru hituð upp með hitablásara, lögn útbúin fyrir möguleika á að tengja hefðbundið ofnakerfi.
- Gólf eru vélslípuð og tilbúin til spörslunar og lokameðferðar.
- Léttbyggt hús með límtré sem meginburðarkerfi.
- Klætt með PIR einangruðum samlokueiningum.
- Lóð malbikuð.

Smelltu hér til að skoða skilalýsingu seljanda.

Nánari upplýsingar veita sölumenn Ás fasteignasölu í s. 520-2600 / as@as.is eða:
Aron Freyr Eiríksson löggiltur fasteignasali s. 772-7376 / aron@as.is
Arnór Daði Eiríksson löggiltur fasteignasali s. 777-0939 / arnor@as.is
Stefán Rafn Sigurmannsson löggiltur fasteignasali s. 655-7000 / stefan@as.is

Frábær staðsetning þar sem stutt er í helstu þjónustu.

Ás fasteignasala er rótgróið fyrirtæki sem hefur veitt alla almenna þjónustu í fasteignaviðskiptum frá árinu 1988.
www.facebook.com/asfasteignasala
www.instagram.com/as_fasteignasala
www.as.is

 

img
Arnór Daði Eiríksson
Lögg.fasteignasali innan félags fasteignasala
Ás fasteignasala
Fjarðargötu 17, 220 Hafnarfirði
Ás fasteignasala

Ás fasteignasala

Fjarðargötu 17, 220 Hafnarfirði
phone
img

Arnór Daði Eiríksson

Fjarðargötu 17, 220 Hafnarfirði
Ás fasteignasala

Ás fasteignasala

Fjarðargötu 17, 220 Hafnarfirði
phone

Arnór Daði Eiríksson

Fjarðargötu 17, 220 Hafnarfirði