Upplýsingar
Verðsaga
Byggt 2021
232,5 m²
6 herb.
2 baðherb.
4 svefnh.
Þvottahús
Bílskúr
Lýsing
Eigendur skoða skipti á ódýrari eign í Skarðshlíð/Völlunum.
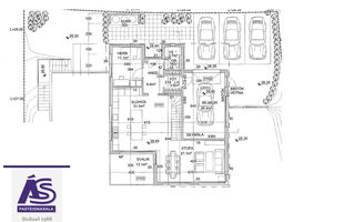
Glæsilegt 232,5 fm einbýli á tveimur hæðum með bílskúr við Hádegisskarð 21 í Skarðshlíð, Hafnarfirði.
Eignin skiptist þannig að efri hæðin er 99,3 fm, neðri hæðin 102,7 fm og bílskúrinn 30,5 fm, samtals 232,5 fm skv. HMS.
Efri hæð: Forstofa með skápum, innangengt í bílskúr úr forstofu. Gestasalerni með sturtu. Eitt svefnherbergi er á hæðinni. Eldhús, stofa og borðstofa í björtu alrými með aukinni lofthæð, útg. á svalir. Eldhúsið er með góðu skápaplássi, búrskápur, stór eyja, tveir ofnar í vinnu hæð (ofn og combi-ofn), innbyggð uppvþottavél, kvartz-steinn á borðum (einnig inní búrskáp). Stigi niður á neðri hæð úr alrými.
Neðri hæð: Komið er niður í rúmgott sjónvarpshol, mögulegt að breyta í fimmta svefnherbergið. Þrjú svefnherbergi eru á hæðinni, þ.m.t. hjónaherbergið. Baðherbergi með sturtu. Rúmgott þvottahús með innréttingu er innaf baðherbergi, útg. á lóð. Sér fataherbergi er á hæðinni.
Gólfefni hússins er vínylparket nema votrými eru flísalögð.
Bílskúr: Innangengt úr forstofu. Bjartur bílskúr (stórir gluggar), hiti, rafmagn, hurðaopnari, vatn og milliloft.
Frábær staðsetning þar sem stutt er í helstu þjónustu og falleg útivistarsvæði.
Nánari upplýsingar veitir Aron Freyr Eiríksson löggiltur fasteignasali í síma 772-7376 / aron@as.is
Ás fasteignasala er rótgróið fyrirtæki sem hefur veitt alla almenna þjónustu í fasteignaviðskiptum frá árinu 1988.
www.facebook.com/asfasteignasala
www.instagram.com/as_fasteignasala
www.as.is
Glæsilegt 232,5 fm einbýli á tveimur hæðum með bílskúr við Hádegisskarð 21 í Skarðshlíð, Hafnarfirði.
Eignin skiptist þannig að efri hæðin er 99,3 fm, neðri hæðin 102,7 fm og bílskúrinn 30,5 fm, samtals 232,5 fm skv. HMS.
Efri hæð: Forstofa með skápum, innangengt í bílskúr úr forstofu. Gestasalerni með sturtu. Eitt svefnherbergi er á hæðinni. Eldhús, stofa og borðstofa í björtu alrými með aukinni lofthæð, útg. á svalir. Eldhúsið er með góðu skápaplássi, búrskápur, stór eyja, tveir ofnar í vinnu hæð (ofn og combi-ofn), innbyggð uppvþottavél, kvartz-steinn á borðum (einnig inní búrskáp). Stigi niður á neðri hæð úr alrými.
Neðri hæð: Komið er niður í rúmgott sjónvarpshol, mögulegt að breyta í fimmta svefnherbergið. Þrjú svefnherbergi eru á hæðinni, þ.m.t. hjónaherbergið. Baðherbergi með sturtu. Rúmgott þvottahús með innréttingu er innaf baðherbergi, útg. á lóð. Sér fataherbergi er á hæðinni.
Gólfefni hússins er vínylparket nema votrými eru flísalögð.
Bílskúr: Innangengt úr forstofu. Bjartur bílskúr (stórir gluggar), hiti, rafmagn, hurðaopnari, vatn og milliloft.
Frábær staðsetning þar sem stutt er í helstu þjónustu og falleg útivistarsvæði.
Nánari upplýsingar veitir Aron Freyr Eiríksson löggiltur fasteignasali í síma 772-7376 / aron@as.is
Ás fasteignasala er rótgróið fyrirtæki sem hefur veitt alla almenna þjónustu í fasteignaviðskiptum frá árinu 1988.
www.facebook.com/asfasteignasala
www.instagram.com/as_fasteignasala
www.as.is
Ár
Fasteignamat
Kaupverð
Stærð
Fermetraverð
12. apr. 2021
53.250.000 kr.
84.000.000 kr.
232.5 m²
361.290 kr.
Byggt á upplýsingum úr Þjóðskrá Íslands frá 2006-2025