Upplýsingar
Byggt 2022
107,5 m²
3 herb.
1 baðherb.
2 svefnh.
Þvottahús
Útsýni
Sameiginl. inngangur
Hjólastólaaðgengi
Bílastæði
Lyfta
Lýsing
Betri Stofan og Jason Kristinn Ólafsson fasteignasali sími 7751515 kynnir: Glæsileg og nýleg 3ja herbergja íbúð á efstu hæð við Fálkahlíð 5 í 102 Reykjavík. Íbúð á 5. hæð með 2 svefnherbergjum og svölum og þakgarði að stærðinni samtals 35,9 fm.
Nýleg og falleg íbúð með tveimur svefnherbergjum fullbúin með öllum gólfefnum, uppþvottavél og ísskáp. Ljós eru innbyggð að hluta, kubbaljós, ljósakúplar og kastarar fylgja. Baðherbergi eru flísalögð, bæði veggir og gólf. Sér þvottahús.
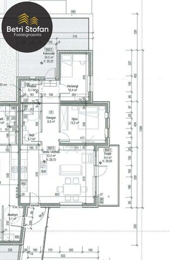
Nánari lýsing eignar nr. 511, 3ja herbergja íbúð á 5.hæð með sér inngang af svölum og 26,5 fm þakgarði. Sér stæði í bílageymslu merkt B70. Geymsla eignar er sér innan og er skráð 16 fm.
Forstofa með flísum gólfi og fataskáp.
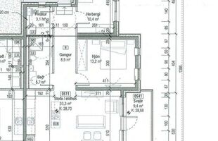
Tvö svefnherbergi með innréttingu
Eldhús með ljósri innréttingu með efri og neðri skápum og eyju. Innbyggður ísskápur með frysti og uppþvottavél. Bakaraofn í vinnuhæð, span helluborð er í eyjunni og nettur frístandandi háfur.
Stofa og opið eldhús sem eitt alrými. Þaðan eru tveir útgangar út á svalir. Austur-svalir sem eru 9,4 fm og þakgarður til norðurs sem er 26,5 fm.
Baðherbergi með sturtuklefa, ljósri innréttingu, handlaug og upphengdu salerni. Sér þvottahús.
Íbúðin er 107, fm, og þaraf sérgeymsla 16 fm
Heimasíða
Nánari upplýsingar:
Jason Kristinn Ólafsson, sími 775 1515 - löggiltur fasteignasali. - netfang: jason@betristofan.is
Dagrún Davíðsdóttir, sími 866 1763 eða á dagrun@betristofan.is -löggiltur fasteignasali
Guðbjörg Guðmundsdóttir, sími 899 5533 eða gudbjorg@betristofan.is
Þórir Skarphéðinsson, sími 844-9591- lögmaður og lgfs. - netfang: thorir@betristofan.is
Þórhallur Biering löggiltur fasteignasali í síma 896-8232 eða thorhallur@betristofan.is
Nýleg og falleg íbúð með tveimur svefnherbergjum fullbúin með öllum gólfefnum, uppþvottavél og ísskáp. Ljós eru innbyggð að hluta, kubbaljós, ljósakúplar og kastarar fylgja. Baðherbergi eru flísalögð, bæði veggir og gólf. Sér þvottahús.
Nánari lýsing eignar nr. 511, 3ja herbergja íbúð á 5.hæð með sér inngang af svölum og 26,5 fm þakgarði. Sér stæði í bílageymslu merkt B70. Geymsla eignar er sér innan og er skráð 16 fm.
Forstofa með flísum gólfi og fataskáp.
Tvö svefnherbergi með innréttingu
Eldhús með ljósri innréttingu með efri og neðri skápum og eyju. Innbyggður ísskápur með frysti og uppþvottavél. Bakaraofn í vinnuhæð, span helluborð er í eyjunni og nettur frístandandi háfur.
Stofa og opið eldhús sem eitt alrými. Þaðan eru tveir útgangar út á svalir. Austur-svalir sem eru 9,4 fm og þakgarður til norðurs sem er 26,5 fm.
Baðherbergi með sturtuklefa, ljósri innréttingu, handlaug og upphengdu salerni. Sér þvottahús.
Íbúðin er 107, fm, og þaraf sérgeymsla 16 fm
Heimasíða
Nánari upplýsingar:
Jason Kristinn Ólafsson, sími 775 1515 - löggiltur fasteignasali. - netfang: jason@betristofan.is
Dagrún Davíðsdóttir, sími 866 1763 eða á dagrun@betristofan.is -löggiltur fasteignasali
Guðbjörg Guðmundsdóttir, sími 899 5533 eða gudbjorg@betristofan.is
Þórir Skarphéðinsson, sími 844-9591- lögmaður og lgfs. - netfang: thorir@betristofan.is
Þórhallur Biering löggiltur fasteignasali í síma 896-8232 eða thorhallur@betristofan.is
Gjöld sem kaupandi þarf að standa straum af ef að kaupum verður:
1. Stimpilgjald af fasteignamati fasteignar er 0.8%, en 0,4% fyrir fyrstu kaup og 1,6% fyrir lögaðila.
2. Þinglýsingargjald: kaupsamningi, skuldabréfi, veðleyfi, afsali o.s.frv. er kr. 2.700 af hverju skjali.
3. Lántökukostnaður samkvæmt verðskrá viðkomandi lánastofnunar.
4. Umsýslugjald til fasteignasölu skv. gjaldskrá.