Löggiltir fasteignasalar innan Félags fasteignasala:
Dan Valgarð S. Wiium
Ásta María Benónýsdóttir
Vista
svg

173

svg

161  Skoðendur

svg

Skráð  1. des. 2025

sumarhús

Berjaholtslækur 7

805 Selfoss

39.800.000 kr.

607.634 þ.kr./m2
Fasteignanúmer

F2263828

Fasteignamat

27.200.000 kr.

Brunabótamat

37.870.000 kr.

Áhvílandi

0 kr.

Arion banki – Reikna lán
Upplýsingar
svg
Byggt 2002
svg
65,5 m²
svg
3 herb.
svg
1 baðherb.
svg
2 svefnh.

Lýsing

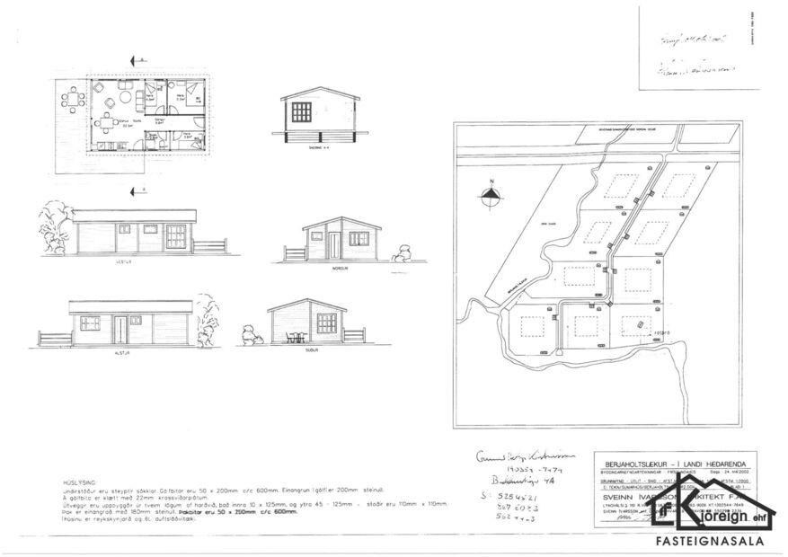
Kjöreign fasteignasala kynnir fallegt 59 fm sumarhús úr harðviði á steyptri plötu, byggt 2002 ásamt 6 fm áhaldaskúr einnig  á steyptri plötu við Berjaholtslæk 7, Grímsnes-og Grafningshreppi. Húsið stendur á skógivaxinni eignarlóð (0,58 hektara) með miklum og fallegum gróðri og rafmagnspottur er á pallinum. Pallar eru umhverfis húsið á þrjá vegu og oft mikil veðursæld á sumrin. Bústaðurinn getur hentað til heilsárs búsetu, þar er kynding með olíuofnum og heitt vatn úr túbu, hagstætt er að skipta í varmaskiptakerfi. Tvö rúmgóð svefnherbergi eru í húsinu með harðviðarparketi á gólfum. Baðherbergi með sturtu og tengt fyrir þvottavél. Baðherbergið var endurnýjað fyrir 8 árum. Gott alrými ásamt forstofuherbergi og gangi, gólf eru flotuð.  Eldhúsinnrétting frá Ikea var sett upp fyrir 5 árum ásamt gashellu og ofni, búið að setja upp viftu en á eftir að tengja. Borðplatan er úr marmara og tengi er fyrir uppþvottavél. Gott búr er inn af eldhúsi.  Jötulkamina er í alrými sem hitar mjög vel upp rýmið. Heimilt er að stækka bústaðinn þannig að hann verði samtals 170 fermetrar að meðtöldum áhaldaskúr. Rotþró í góðu lagi, þak er byrjað að ryðga á köntum sem þarfnast lagfæringar á einhverjum tímapunkti, þak annars í góðu lagi. Búið er að endurnýja hluta afgluggum. Viðhaldi hefur verið vel sinnt og lóðin sérlega falleg. Virkt félag sumarhúsaeigenda er á svæðinu (sem telur 9 bústaði) og sameiginlegt ytra hlið, en einnig er sérhlið inn á  lóðina. Þá er sameiginlegur landskiki  á svæðinu fyrir alla 9 sumarbústaðina. Göngubrú hefur verið sett yfir lækinn. Snjómokstur er á föstudögum og sunnudögum yfir vetratímann eða eftir þörfum. Árgjald í sumarhúsafélagið er kr. 30 þús.

Virkilega sjarmerandi hús á fallegum stað í Grímsnesi. Við lóðarmörkin rennur lækur og ýmsar áhugaverðar gönguleiðir má finna í næsta nágrenni. Um 50 mínútna akstur er frá Reykjavík í bústaðinn og stutt í þjónustu á Selfossi. Hentar vel í útleigu vegna staðsetningar á gullna hringnum en auk þess er stutt í útivist eins og veiði og golf.
 

img
Ásta María Benónýsdóttir
Lögg.fasteignasali innan félags fasteignasala
Kjöreign fasteignasala
Ármúla 21, 108 Reykjavík
Kjöreign fasteignasala

Kjöreign fasteignasala

Ármúla 21, 108 Reykjavík
phone
img

Ásta María Benónýsdóttir

Ármúla 21, 108 Reykjavík
Kjöreign fasteignasala

Kjöreign fasteignasala

Ármúla 21, 108 Reykjavík
phone

Ásta María Benónýsdóttir

Ármúla 21, 108 Reykjavík