Upplýsingar
Byggt 1933
170,1 m²
5 herb.
2 baðherb.
4 svefnh.
Þvottahús
Útsýni
Sameiginl. inngangur
Lýsing
Kasa fasteignir 461-2010.
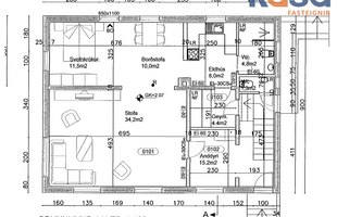
Brekkugata 35. Um er að ræða efrihæð og ris í virðulegu húsi á frábærum stað við miðbæ Akureyrar. Eignin sem er um 170 fm skiptist í forstofu, eldhús, baðherbergi, 4 svefnherbergi og mjög rúmgott ris sem er opið rými ásamt salerni. Í kjallara er rúmgóð geymsla og sameiginlegt þvottahús með íbúð á jarðhæð. Húsið stendur hátt í Brekkugötunni með góðu útsýni til þriggja átta. Gróinn garður er bakvið hús ásamt sér bílastæði til hliðar við eignina. Sami eigandi er af öllu húsinu sem er á tveim fastanúmerum og möguleiki er að kaupa allt húsið.
Forstofa: Er sameiginleg með íbúð á jarðhæð. Þar er stór fataskápur og dúkur á gólfum.
Stigi: Stigi upp í íbúðina er dúkalagður.
Eldhús: Þar er parket á gólfi. Hvít innrétting með plássi fyrir uppþvottavél. Til hliðar við eldhús er setukrókur þar sem er bekkjarplata með vaski.
Baðherbergi: Er tvískipt. Annarsvegar er salerni og bekkplata með vaski og hinsvegar er sturturými, en það er flísalagt í hólf og gólf. Á gangi er handklæðaofn.
Svefnherbergi: Eru fjögur á hæðinni, öll með parketi á gólfum.
Gangur: Er parketlagður. Við enda á herbergisgangi er gengið út á suðursvalir.
Ris: Er mjög rúmgott með timburgólfi. Þar er opnanlegir þakgluggar ásamt gluggum á útveggjum.
Salerni: Á risi er lítið salerni og vaskur.
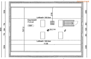
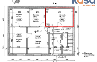
Geymsla og þvottahús eru í kjallara.
- Árið 2015 var Íbúðarhæðin endurnýjuð að miklu leiti.
- Frábært útsýni til austurs.
- Miðbær Akureyrar í göngufæri.
- Tvö bílastæði eru við eignina.
- Gróinn lokaður garður baka til.
- Eignin var nýtt í gistiþjónustu og var breytt til að standast kröfur.
- Möguleiki er að kaupa allt húsið sem er á tveim fastanúmerum.
Nánari upplýsingar í síma 461-2010 eða kasa@kasafasteignir.is
------------
Skoðunarskylda:
Í lögum um fasteignakaup nr. 40/2002 er kveðið á um ríka skoðunarskyldu kaupenda á fasteignum. Kasa fasteignir benda væntanlegum kaupendum á að kynna sér vel ástand fasteigna fyrir kauptilboðsgerð og leita til þar til bærra sérfræðinga um nánari skoðun ef þurfa þykir.
Forsendur söluyfirlits:
Söluyfirlit er samið af fasteignasala í samræmi við ákvæði laga nr. 70/2015. Þær upplýsingar sem fram koma í söluyfirliti þessu eru sóttar í opinberar skrár, til seljanda sjálfs og eftir atvikum til húsfélags. Seljandi veitir upplýsingar um eign í samræmi við upplýsingaskyldu laga um fasteignakaup nr. 40/2002. Fasteignasali sannreynir að þær upplýsingar séu réttar með sjónskoðun á eigninni. Fasteignasali getur ekki fullyrt um ástand og eiginleika þeirra hluta fasteigna sem ekki eru aðgengilegir og sjást ekki berum augum, t.d. lagnir, dren, skólp og þak.
Gjöld sem kaupandi þarf að standa straum af vegna kaupanna:
1. Stimpilgjald sýslumanns af kaupsamningi, fyrstu kaup (0,4%), almenn kaup (0,8%), lögaðilar (1,6%) af heildarfasteignamati eignar.
2. Þinglýsingargjald af kaupsamningi, veðskuldabréfi, mögulegu veðleyfi o.fl. - kr. 2.700 af hverju skjali.
3. Lántökugjald lánastofnunar er skv. verðskrá viðkomandi lánastofnunar. Nánari upplýsingar á t.d. heimasíðu lánastofnana.
4. Umsýslugjald til fasteignasölu skv. kauptilboði.
Brekkugata 35. Um er að ræða efrihæð og ris í virðulegu húsi á frábærum stað við miðbæ Akureyrar. Eignin sem er um 170 fm skiptist í forstofu, eldhús, baðherbergi, 4 svefnherbergi og mjög rúmgott ris sem er opið rými ásamt salerni. Í kjallara er rúmgóð geymsla og sameiginlegt þvottahús með íbúð á jarðhæð. Húsið stendur hátt í Brekkugötunni með góðu útsýni til þriggja átta. Gróinn garður er bakvið hús ásamt sér bílastæði til hliðar við eignina. Sami eigandi er af öllu húsinu sem er á tveim fastanúmerum og möguleiki er að kaupa allt húsið.
Forstofa: Er sameiginleg með íbúð á jarðhæð. Þar er stór fataskápur og dúkur á gólfum.
Stigi: Stigi upp í íbúðina er dúkalagður.
Eldhús: Þar er parket á gólfi. Hvít innrétting með plássi fyrir uppþvottavél. Til hliðar við eldhús er setukrókur þar sem er bekkjarplata með vaski.
Baðherbergi: Er tvískipt. Annarsvegar er salerni og bekkplata með vaski og hinsvegar er sturturými, en það er flísalagt í hólf og gólf. Á gangi er handklæðaofn.
Svefnherbergi: Eru fjögur á hæðinni, öll með parketi á gólfum.
Gangur: Er parketlagður. Við enda á herbergisgangi er gengið út á suðursvalir.
Ris: Er mjög rúmgott með timburgólfi. Þar er opnanlegir þakgluggar ásamt gluggum á útveggjum.
Salerni: Á risi er lítið salerni og vaskur.
Geymsla og þvottahús eru í kjallara.
- Árið 2015 var Íbúðarhæðin endurnýjuð að miklu leiti.
- Frábært útsýni til austurs.
- Miðbær Akureyrar í göngufæri.
- Tvö bílastæði eru við eignina.
- Gróinn lokaður garður baka til.
- Eignin var nýtt í gistiþjónustu og var breytt til að standast kröfur.
- Möguleiki er að kaupa allt húsið sem er á tveim fastanúmerum.
Nánari upplýsingar í síma 461-2010 eða kasa@kasafasteignir.is
------------
Skoðunarskylda:
Í lögum um fasteignakaup nr. 40/2002 er kveðið á um ríka skoðunarskyldu kaupenda á fasteignum. Kasa fasteignir benda væntanlegum kaupendum á að kynna sér vel ástand fasteigna fyrir kauptilboðsgerð og leita til þar til bærra sérfræðinga um nánari skoðun ef þurfa þykir.
Forsendur söluyfirlits:
Söluyfirlit er samið af fasteignasala í samræmi við ákvæði laga nr. 70/2015. Þær upplýsingar sem fram koma í söluyfirliti þessu eru sóttar í opinberar skrár, til seljanda sjálfs og eftir atvikum til húsfélags. Seljandi veitir upplýsingar um eign í samræmi við upplýsingaskyldu laga um fasteignakaup nr. 40/2002. Fasteignasali sannreynir að þær upplýsingar séu réttar með sjónskoðun á eigninni. Fasteignasali getur ekki fullyrt um ástand og eiginleika þeirra hluta fasteigna sem ekki eru aðgengilegir og sjást ekki berum augum, t.d. lagnir, dren, skólp og þak.
Gjöld sem kaupandi þarf að standa straum af vegna kaupanna:
1. Stimpilgjald sýslumanns af kaupsamningi, fyrstu kaup (0,4%), almenn kaup (0,8%), lögaðilar (1,6%) af heildarfasteignamati eignar.
2. Þinglýsingargjald af kaupsamningi, veðskuldabréfi, mögulegu veðleyfi o.fl. - kr. 2.700 af hverju skjali.
3. Lántökugjald lánastofnunar er skv. verðskrá viðkomandi lánastofnunar. Nánari upplýsingar á t.d. heimasíðu lánastofnana.
4. Umsýslugjald til fasteignasölu skv. kauptilboði.