Löggiltir fasteignasalar innan Félags fasteignasala:
Hannes Steindórsson
Bogi Molby Pétursson
Guðrún Antonsdóttir
Heimir Hallgrímsson
Hrafnkell P. H. Pálmason
Viðar Marinósson
Elías Haraldsson
Kristján Þórir Hauksson
Albert Bjarni Úlfarsson
Ragnar Þorsteinsson
Þórey Ólafsdóttir
Andri Freyr Halldórsson
Upplýsingar
Byggt 2025
127,7 m²
3 herb.
2 baðherb.
2 svefnh.
Þvottahús
Sameiginl. inngangur
Bílastæði
Lyfta
Lýsing
--- Glæsileg 3ja herbergja íbúð fyrir 50 ára og eldri í Garðabæ með bílastæði í bílakjallara, tveimur baðherbergjum, fataherbergi og þvottaherbergi ---
Skoða verkefnið nánar á hlekk: www.nordurhlid.is - Upplýsingar gefur: Heimir F. Hallgrímsson í síma: 849-0672 / HEIMIR@FASTLIND.IS
LIND Fasteignasala og ÞG Verk kynna með stolti: Nýjar og glæsilegar íbúðir við Urriðaholtsstræti 15 í Urriðaholti, 210 Garðabæ fyrir 50 ára og eldri. Um er að ræða fjölbreyttar 2ja - 4ra herbergja íbúðir í lyftuhúsi og fylgja bílastæði í bílakjallara flestum íbúðum. Svalir eða sérafnotaflötur fylgir öllum íbúðum ásamt séreignageymslu í jarðhæð.
Glæsileg sameign (miðrými) eru í húsunum með útsýni að Heiðmörk. Miðrýmið skilast fullbúið með tveimur golfhermum, billiard aðstöðu, æfingasal og hlýlegri setustofu sem er hentug fyrir afslöppun, fundi eða óformlega samveru. Einnig verður eldhúsinnrétting, borð og stólar fyrir veislur, spilakvöld eða öðru líkt þar sem notalegt andrúmsloft ræður ríkjum. Auk þess er þvottaaðstaða fyrir bifreiðar í bílakjallara fyrir íbúa.
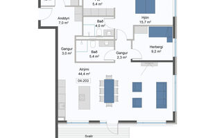
Íbúð 203: Er glæsileg 127,7 fermetra þriggja herbergja íbúð á 2. hæð með rúmgóðum 11,4 fermetra svölum til suðurs, tveimur baðherbergjum, fataherbergi og þvottaherbergi. Rúmgóð geymsla fylgir íbúðinni sem er 12,3 fermetrar að stærð auk bílastæðis í bílakjallara. Afhending er í febrúar eða mars 2026 með fyrirvara um að öryggisúttekt sé komin á húsið.
Nánari lýsing: Íbúðin skiptist í forstofu, gang, eldhús í alrými með eyju sem er opið við stofu/borðstofu, 2 svefnherbergi (þar af er hjónasvíta með sér baðherbergi og fataherbergi), 2 baðherbergi, fataherbergi og þvottaherbergi. Útgengi á svalir til suðurs frá stofu.
ATH: Ljósmyndir innan úr íbúð eru úr sýningaríbúð og endurspegla ekki skipulag þessarar íbúðar.
Húsið er steinsteypt og útveggir einangraðir að utan, klæddir með álklæðningum sem tryggir lágmarks viðhald húsanna. Gluggar eru ál/tré kerfi og glerjaðir með K-gleri. Innveggir aðrir en steyptir eru úr hleðslusteini.
ALLAR NÁNARI UPPLÝSINGAR VEITA:
Heimir F. Hallgrímsson í síma: 849-0672 / HEIMIR@FASTLIND.IS
Allar nánari upplýsingar á heimasíðu verkefnisins: www.nordurhlid.is
Húsin eru vel staðsett steinsnar við Heiðmörk. Einn besti golfvöllur landsins (Oddur) er í göngufæri og sömuleiðis útivistarsvæðin í Heiðmörk, Vífilstaðarhrauni og við Urriðavatn. Efst á Háholti er gert ráð fyrir blandaðri byggð íbúða og þjónustu s.s verslun, heilsugæslu, skólum og íþróttamannvirkjum.
ÞG Verk hafa yfir 25 ára reynslu á byggingarmarkaði. Fyrirtækið leggur áherslu á vandaðar íbúðir, góða þjónustu og skil íbúða á réttum tíma. Áreiðanleiki, gæði og notagildi eru einkunnarorð ÞG verks og fyrirtækið kappkostar að eiga gott samstarf við viðskiptavini sína.
Ef misræmi er á milli eignaskiptasamnings, söluyfirlits og/eða sölusíðu þá gilda þær upplýsingar sem koma fyrir í eignaskiptasamningi og samþykktum teikningum.
Skoða verkefnið nánar á hlekk: www.nordurhlid.is - Upplýsingar gefur: Heimir F. Hallgrímsson í síma: 849-0672 / HEIMIR@FASTLIND.IS
LIND Fasteignasala og ÞG Verk kynna með stolti: Nýjar og glæsilegar íbúðir við Urriðaholtsstræti 15 í Urriðaholti, 210 Garðabæ fyrir 50 ára og eldri. Um er að ræða fjölbreyttar 2ja - 4ra herbergja íbúðir í lyftuhúsi og fylgja bílastæði í bílakjallara flestum íbúðum. Svalir eða sérafnotaflötur fylgir öllum íbúðum ásamt séreignageymslu í jarðhæð.
Glæsileg sameign (miðrými) eru í húsunum með útsýni að Heiðmörk. Miðrýmið skilast fullbúið með tveimur golfhermum, billiard aðstöðu, æfingasal og hlýlegri setustofu sem er hentug fyrir afslöppun, fundi eða óformlega samveru. Einnig verður eldhúsinnrétting, borð og stólar fyrir veislur, spilakvöld eða öðru líkt þar sem notalegt andrúmsloft ræður ríkjum. Auk þess er þvottaaðstaða fyrir bifreiðar í bílakjallara fyrir íbúa.
Íbúð 203: Er glæsileg 127,7 fermetra þriggja herbergja íbúð á 2. hæð með rúmgóðum 11,4 fermetra svölum til suðurs, tveimur baðherbergjum, fataherbergi og þvottaherbergi. Rúmgóð geymsla fylgir íbúðinni sem er 12,3 fermetrar að stærð auk bílastæðis í bílakjallara. Afhending er í febrúar eða mars 2026 með fyrirvara um að öryggisúttekt sé komin á húsið.
Nánari lýsing: Íbúðin skiptist í forstofu, gang, eldhús í alrými með eyju sem er opið við stofu/borðstofu, 2 svefnherbergi (þar af er hjónasvíta með sér baðherbergi og fataherbergi), 2 baðherbergi, fataherbergi og þvottaherbergi. Útgengi á svalir til suðurs frá stofu.
ATH: Ljósmyndir innan úr íbúð eru úr sýningaríbúð og endurspegla ekki skipulag þessarar íbúðar.
Húsið er steinsteypt og útveggir einangraðir að utan, klæddir með álklæðningum sem tryggir lágmarks viðhald húsanna. Gluggar eru ál/tré kerfi og glerjaðir með K-gleri. Innveggir aðrir en steyptir eru úr hleðslusteini.
ALLAR NÁNARI UPPLÝSINGAR VEITA:
Heimir F. Hallgrímsson í síma: 849-0672 / HEIMIR@FASTLIND.IS
Allar nánari upplýsingar á heimasíðu verkefnisins: www.nordurhlid.is
Húsin eru vel staðsett steinsnar við Heiðmörk. Einn besti golfvöllur landsins (Oddur) er í göngufæri og sömuleiðis útivistarsvæðin í Heiðmörk, Vífilstaðarhrauni og við Urriðavatn. Efst á Háholti er gert ráð fyrir blandaðri byggð íbúða og þjónustu s.s verslun, heilsugæslu, skólum og íþróttamannvirkjum.
ÞG Verk hafa yfir 25 ára reynslu á byggingarmarkaði. Fyrirtækið leggur áherslu á vandaðar íbúðir, góða þjónustu og skil íbúða á réttum tíma. Áreiðanleiki, gæði og notagildi eru einkunnarorð ÞG verks og fyrirtækið kappkostar að eiga gott samstarf við viðskiptavini sína.
Ef misræmi er á milli eignaskiptasamnings, söluyfirlits og/eða sölusíðu þá gilda þær upplýsingar sem koma fyrir í eignaskiptasamningi og samþykktum teikningum.