Upplýsingar
Byggt 2024
122,3 m²
4 herb.
1 baðherb.
3 svefnh.
Þvottahús
Bílastæði
Lyfta
Lýsing
BÓKIÐ SKOÐUN - SÝNUM SAMDÆGURS - Einar s 888-7979, Hlynur s. 698-2603, Glódís s. 659-0510, Helgi s. 893-2233
Hraunhamar fasteignasala kynnir: Apalskarð 2, glæsilegar nýjar 3ja-4ra herbergja íbúðir í góðu lyftufjölbýli vel staðsett í göngufjarlægð frá leik- og grunnskóla í Skarðshlíðarhverfinu í Hafnarfirði.
Íbúðirnar skilast allar fullbúnar án gólfefna en votrými verða flísalögð. Öllum íbúðunum fylgir stæði í lokaðri bílageymslu.
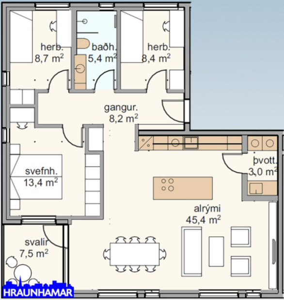
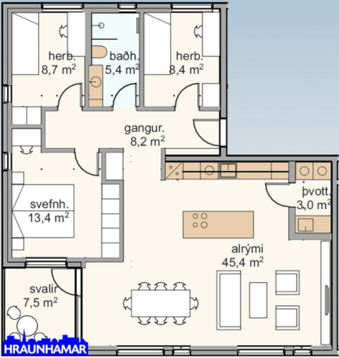
Íbúð 308 er skráð 122,3 fm með geymslu, fjögurra herbergja með svölum.
ÍBÚÐIN ER LAUS STRAX.
Nánari lýsing skv. teikningu:
Forstofa.
Eldhús með smekklegri innréttingu og vönduðum eldunartækjum.
Inn af eldhúsi er þvottahús.
Björt stofa og borðstofa, þaðan er útgengt á svalir.
Hjónaherbergi með fataskápum.
Tvö svefnherbergi með fataskáp.
Flísalagt baðherbergi með innréttingu, upphengdu salerni, ,,walk in" sturtu. Gluggi.
Rúmgóð 11,6 fm sérgeymsla í sameign.
Bílastæði í bílageymslu.
Þetta er falleg og vel skipulögð íbúð með vönduðum innréttingum frá Parka og eldunartækjum frá Electrolux.
Húsið er einstaklega vel staðsett í Skarðshlíðarhverfinu þar sem stutt er í skóla og leikskóla.
Heimasíða verkefnisins, smelltu hér.
Kaupendur greiða skipulagsgjald sem er 0,3% af brunabótamati þegar það verður lagt á.
Bókið skoðun hjá sölumönnum Hraunhamars:
Einar Örn Ágústsson, löggiltur fasteignasali, s. 888-7979, einar@hraunhamar.is
Glódís Helgadóttir, löggiltur fasteignasali, s. 659-0510, glodis@hraunhamar.is
Hlynur Halldórsson, löggiltur fasteignasali, s. 698-2603, hlynur@hraunhamar.is
Helgi Jón Harðarson, sölust. s. 893-2233, helgi@hraunhamar.is
Gjöld sem kaupandi þarf að standa straum af vegna kaupanna:
1. Stimpilgjald af kaupsamningi, fyrstu kaup (0,4%), almenn kaup (0,8%), lögaðilar (1,6%) af heildarfasteignamati.
2. Þinglýsingargjald af kaupsamningi, veðskuldabréfi, mögulegu veðleyfi o.fl. – 3.800 kr. af hverju skjali.
3. Lántökugjald lánastofnunar er skv. verðskrá viðkomandi lánastofnunar.
4. Umsýslugjald til fasteignasölu skv. þjónustusamningi
Hraunhamar er elsta fasteignasala Hafnarfjarðar, stofnuð 1983.
Hraunhamar, í farabroddi í rúm 40 ár – Hraunhamar.is
Smelltu hér til að fá frítt söluverðmat.
Hraunhamar fasteignasala kynnir: Apalskarð 2, glæsilegar nýjar 3ja-4ra herbergja íbúðir í góðu lyftufjölbýli vel staðsett í göngufjarlægð frá leik- og grunnskóla í Skarðshlíðarhverfinu í Hafnarfirði.
Íbúðirnar skilast allar fullbúnar án gólfefna en votrými verða flísalögð. Öllum íbúðunum fylgir stæði í lokaðri bílageymslu.
Íbúð 308 er skráð 122,3 fm með geymslu, fjögurra herbergja með svölum.
ÍBÚÐIN ER LAUS STRAX.
Nánari lýsing skv. teikningu:
Forstofa.
Eldhús með smekklegri innréttingu og vönduðum eldunartækjum.
Inn af eldhúsi er þvottahús.
Björt stofa og borðstofa, þaðan er útgengt á svalir.
Hjónaherbergi með fataskápum.
Tvö svefnherbergi með fataskáp.
Flísalagt baðherbergi með innréttingu, upphengdu salerni, ,,walk in" sturtu. Gluggi.
Rúmgóð 11,6 fm sérgeymsla í sameign.
Bílastæði í bílageymslu.
Þetta er falleg og vel skipulögð íbúð með vönduðum innréttingum frá Parka og eldunartækjum frá Electrolux.
Húsið er einstaklega vel staðsett í Skarðshlíðarhverfinu þar sem stutt er í skóla og leikskóla.
Heimasíða verkefnisins, smelltu hér.
Kaupendur greiða skipulagsgjald sem er 0,3% af brunabótamati þegar það verður lagt á.
Bókið skoðun hjá sölumönnum Hraunhamars:
Einar Örn Ágústsson, löggiltur fasteignasali, s. 888-7979, einar@hraunhamar.is
Glódís Helgadóttir, löggiltur fasteignasali, s. 659-0510, glodis@hraunhamar.is
Hlynur Halldórsson, löggiltur fasteignasali, s. 698-2603, hlynur@hraunhamar.is
Helgi Jón Harðarson, sölust. s. 893-2233, helgi@hraunhamar.is
Gjöld sem kaupandi þarf að standa straum af vegna kaupanna:
1. Stimpilgjald af kaupsamningi, fyrstu kaup (0,4%), almenn kaup (0,8%), lögaðilar (1,6%) af heildarfasteignamati.
2. Þinglýsingargjald af kaupsamningi, veðskuldabréfi, mögulegu veðleyfi o.fl. – 3.800 kr. af hverju skjali.
3. Lántökugjald lánastofnunar er skv. verðskrá viðkomandi lánastofnunar.
4. Umsýslugjald til fasteignasölu skv. þjónustusamningi
Hraunhamar er elsta fasteignasala Hafnarfjarðar, stofnuð 1983.
Hraunhamar, í farabroddi í rúm 40 ár – Hraunhamar.is
Smelltu hér til að fá frítt söluverðmat.