Löggiltir fasteignasalar innan Félags fasteignasala:
Sverrir Kristinsson
Kjartan Hallgeirsson
Guðlaugur Ingi Guðlaugsson
Daði Hafþórsson
Gunnar Helgi Einarsson
Gunnar Bergmann Jónsson
Lilja Guðmundsdóttir
Jenný Sandra Gunnarsdóttir
Kári Sighvatsson
Vista
svg

24

svg

24  Skoðendur

svg

Skráð  2. des. 2025

fjölbýlishús

Garðastræti 6

101 Reykjavík

76.900.000 kr.

998.701 þ.kr./m2
Fasteignanúmer

F2001665

Fasteignamat

62.400.000 kr.

Brunabótamat

37.400.000 kr.

Áhvílandi

0 kr.

Arion banki – Reikna lán
Upplýsingar
Verðsaga
svg
Byggt 1945
svg
77 m²
svg
3 herb.
svg
1 baðherb.
svg
2 svefnh.
svg
Þvottahús
svg
Sameiginl. inngangur

Lýsing

Eignamiðlun kynnir:

Afar björt og rúmgóð, þriggja herbergja íbúð á 2. hæð í fallegu, steinsteyptu fjölbýlishúsi í gamla Vesturbænum. Húsið hefur fengið gott viðhald. Skipt var um alla glugga og gler í september 2025 og skipt var um þak 2024.

**Sækja söluyfirlit**

Lýsing eignar:
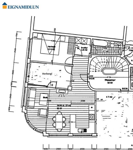
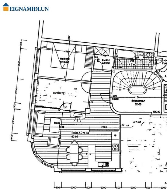
Inngangur: Sameiginlegur inngangur að mjög snyrtilegri sameign.
Forstofa/hol: Rúmgott hol, flisalagt með náttúruflísum og góðu skápaplássi.
Eldhús: Opið með fallegri viðarinnréttingu og parketi á gólfum.
Stofa/borðstofa: Rúmgóð og björt, parketlögð stofa og borðstofa í opnu rými. Einstaklega falleg gluggasetning setur sterkan svip á rýmið.
Baðherbergi: Flísalagt í hólf og gólf með steyptri, stórri sturtu, upphengdu salerni og innréttingu auk ágætis skápapláss. Góður gluggi.
Svefnherbergi: Bjart og rúmgott með parketi og skápum.
Herbergi: Gott herbergi með parketi.
Þvottahús: Staðsett inn af baðherbergi. 
Við hlið hússins er læst port/húsasund þar sem hægt er að geyma t.d. reiðhjól

Framkvæmdir og viðhald:
Skipt var um alla glugga og gler í september 2025. (ATH myndir voru teknar áður en skipt var um glugga).
Þak (járn, pappi og fleira) var endurnýjað 2024.
Hús var endursteinað að utan 2008.
Frárennslislagnir út í götu voru fóðraðar 2005.
Aðalrafmagnstafla var endurnýjuð árið 2005 þegar húsi var breytt úr skrifstofuhúsnæði í íbúðarhúsnæði.
Gólfefni, eldhúsinnrétting og baðherbergi voru standsett á sama tíma.
Veggir íbúðar eru flestir léttir og því auðvelt að breyta skipulagi að vild.

Bílastæðahús er staðsett steinsnar frá húsinu með aðkomu frá Mjóstræti. Íbúapassar í boði til notkunar í almenn stæði. 

Nánari upplýsingar veitir:
Lilja Guðmundsdóttir löggiltur fasteignasali - s. 649-3868 eða lilja@eignamidlun.is
 

***
Ábyrg þjónusta í áratugi. Eignamiðlun var stofnuð 1957 og er elsta starfandi fasteignasala á Íslandi. Reynsla, heiðarleiki og þekking á fasteignamarkaðnum eru grunnur að farsælum viðskiptum. 

Eignamiðlun Grensásvegi 11, 108 Reykjavík - Opið frá kl. 9-17 mánudaga til fimmtudaga og 9-16 á föstudögum.

Heimasíða Eignamiðlunar

Eignamiðlun á Facebook

img
Lilja Guðmundsdóttir
Lögg.fasteignasali innan félags fasteignasala
Eignamiðlun
Grensásvegi 11, 108 Reykjavík
Eignamiðlun

Eignamiðlun

Grensásvegi 11, 108 Reykjavík
img

Lilja Guðmundsdóttir

Grensásvegi 11, 108 Reykjavík
Ár
Fasteignamat
Kaupverð
Stærð
Fermetraverð
6. sep. 2022
46.000.000 kr.
61.900.000 kr.
77 m²
803.896 kr.
9. mar. 2007
15.900.000 kr.
23.450.000 kr.
77 m²
304.545 kr.
Byggt á upplýsingum úr Þjóðskrá Íslands frá 2006-2025
Eignamiðlun

Eignamiðlun

Grensásvegi 11, 108 Reykjavík

Lilja Guðmundsdóttir

Grensásvegi 11, 108 Reykjavík