Löggiltir fasteignasalar innan Félags fasteignasala:
Sverrir Kristinsson
Kjartan Hallgeirsson
Guðlaugur Ingi Guðlaugsson
Daði Hafþórsson
Gunnar Helgi Einarsson
Gunnar Bergmann Jónsson
Lilja Guðmundsdóttir
Jenný Sandra Gunnarsdóttir
Kári Sighvatsson
Upplýsingar
Verðsaga
svg
Byggt 1955
svg
240,1 m²
svg
6 herb.
svg
2 baðherb.
svg
4 svefnh.
svg
Þvottahús
svg
Bílskúr
svg
Sérinngangur

Lýsing

Eignamiðlun kynnir:

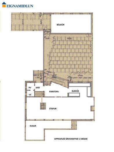
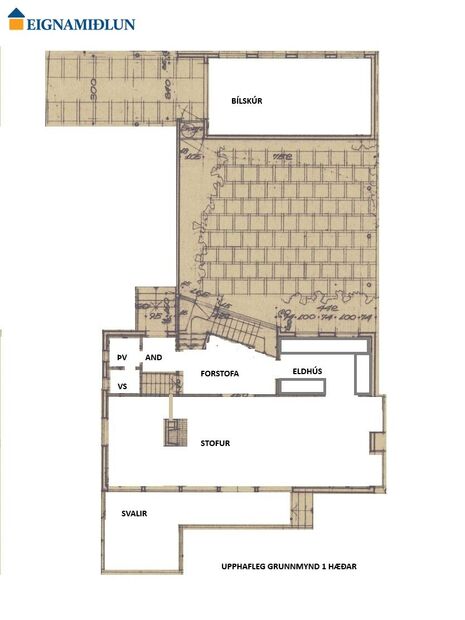
Kleifarvegur 1, mikið endurnýjað og frábærlega staðsett 6-7 herbergja (4-5 svefnherbergi og tvær stofur) 240.1 fm einbýlishús sem er kjallari og tvær hæðir á flottum útsýnisstað í 104. Endurnýjað eldhús, baðherbergi, gólfefni, raflagnir, innihurðir og fleira. Tvennar svalir. 4 svefnherbergi (möguleiki að hafa þau fimm) Stórar stofur, baðherb og gestasnyrting. Arinn í stofu. Bílskúr er skráður 32 fm. Talsvert af bílastæðum við húsið. Húsið stendur á stórri hornlóð með einstaklega góðu útsýni til vesturs yfir bæinn og sundin allt að Snæfellsjökli. Hús teiknað af Sigvalda Thordarsyni. 
Eigendur skoða skipti á minni eign - leitið upplýsinga.
Eignin er skráð sem hér segir hjá Þjóðskrá: Fastanr. 201-9640, nánar tiltekið eign merkt 01-01.  Ibúðarrýmið er skráð 208,1 fm og bílskúrinn er skráður 32,0 fm, birt heildarstærð 240.1 fm. Svalir eru tvennar af aðalhæð og út frá svefnherbergi efri hæðar. Fasteignamat 2026 verður 179,900,000,-
Smelltu hér til að sækja söluyfirlit   * Smelltu hér til að sækja sölubækling með teikningum og fl. !
Eignin skiptist í: AÐALHÆÐ: Forstofa, hol, gestasnyrting, rúmgóðar stofur og eldhús.
EFRI HÆÐ: 4-5 (eitt stórt sameinað úr tveimur)  svefnherbergi, baðherbergi, og línherbergi.
KJALLARI: Þvottahús, geymsla og kyndiklefi.
Nánari lýsing eignarinnar:
MIÐHÆÐ:  FORSTOFA: Flísalögð.   GESTASNYRTING: Endurnýjuð flísalögð og ný hreinlætistæki.   HOL: Með harðparketi. ELDHÚS:  Eldhúsið er nýlega endurnýjað með sprautulakkaðri innréttingu,harðparket, innfelld tæki bæði ísskápur og uppþvottavél. Steinn á borðum.  STOFUR: Rúmgóðar stofur með harðparketi. Flottur arinn sem svínvirkar í stofu, innri stofa eða sjónvarpsherbergi. Gengið út á góðar útsýnissvalir til vesturs með mjög góðu útsýni og þaðan niður í garð. 
EFRI HÆÐ:  HERBERGI I: Skrifstofa eða svefnherbergi með hillum og harðparketi. HERBERGI II: Rúmgott herbergi með skápum, harðparket.  HERBERGI III: Stórt herbergi sem samkvæmt teikningu var áður tvö en búið að sameina og tiltölulega auðvelt að breyta aftur. HERBERGI IIII: Hjónaherbergi með góðum skápum og "fataherbergi" harðparket. Gengið úr svefnherberginu út á vestursvalir með glæsilegu útsýni.   BAÐHERBERGI: Var endurnýjað fyrir þó nokkrum árum, sturtuklefi og nuddbaðkar, flísar á gólfi LÍNHERBERGI:
KJALLARI: Er geymsla, þvottahús og kyndiklefi, innangengt af miðhæð og einnig bakútgangur.
BÍLSKÚR: Er gengt húsinu sérstæður með rafmagni en ekki upphitaður eða með rennandi vatni.
GARÐUR OG BÍLASTÆÐI:  Stórar grasflatir og gróður. Talsvert af bílastæðum við húsið. 

ENDURNÝJUN AÐ INNAN OG UTAN.  Listi eiganda yfir endurbætur. 
Nánari upplýsingar veitir Þórarinn M. Friðgeirsson Löggiltur fasteignasali, í síma 899-1882, tölvupóstur thorarinn@eignamidlun.is eða skrifstofa Eignamiðlunar í síma 588-9090

***
Ábyrg þjónusta í áratugi. Eignamiðlun var stofnuð 1957 og er elsta starfandi fasteignasala á Íslandi. Reynsla, heiðarleiki og þekking á fasteignamarkaðnum eru grunnur að farsælum viðskiptum. 

Eignamiðlun Grensásvegi 11, 108 Reykjavík - Opið frá kl. 9-17 mánudaga til fimmtudaga og 9-16 á föstudögum.

Heimasíða Eignamiðlunar

Eignamiðlun á Facebook

Eignamiðlun

Eignamiðlun

Grensásvegi 11, 108 Reykjavík
Ár
Fasteignamat
Kaupverð
Stærð
Fermetraverð
8. jan. 2016
76.600.000 kr.
65.000.000 kr.
240.1 m²
270.721 kr.
Byggt á upplýsingum úr Þjóðskrá Íslands frá 2006-2026
Eignamiðlun

Eignamiðlun

Grensásvegi 11, 108 Reykjavík