Upplýsingar
Verðsaga
Byggt 1928
53,1 m²
2 herb.
1 baðherb.
1 svefnh.
Þvottahús
Sérinngangur
Lýsing
EINSTÖK MIÐBÆJAR PERLA, MIKIÐ ENDURNÝJUÐ 2JA HERB. ÍBÚÐ MEÐ SÉRINNGANGI - 101 REYKJAVÍK.
Samkvæmt skráningu Þjóðskrár Íslands er birt flatarmál eignarinnar 53,1 fm. - Fyrirhugað fasteignamat 2026 kr. 53.450.000,-
Um er að ræða fallega 2ja herbergja íbúð með sérinngangi í steinhúsi sem var byggt árið 1928, staðsett á mjög góðum stað í miðbæ Reykjavíkur.
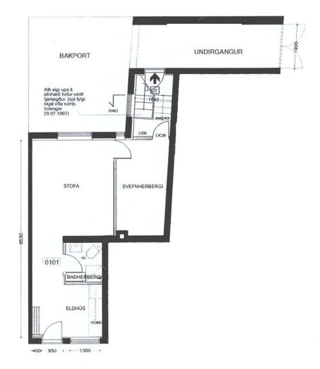
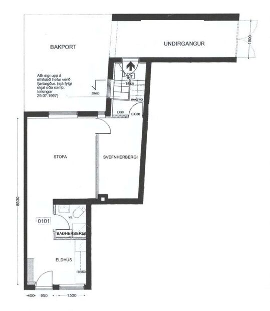
Komið er inn í anddyri með fatahengi. Eldhúsið er þar opið til hægri með nýlegri innréttingu. Gangur liggur úr forstofunni inn að stofunni og er baðherbergið hægra megin í ganginum. Stofan er rúmgóð og parketlögð, gengið er inn í svefnherbergið úr stofunni. Sameiginlegt þvottahús er í kjallara hússins ásamt sér, rúmgóðri 10,2 fm. geymslu sem fylgir íbúðinni. Sameiginlegt, afgirt port er aftan við húsið, þar sem hægt er að geyma m.a. hjól.
Anddyri/gangur: Flísar eru við inngang í anddyrinu, þar er fatahengi og parket er á ganginum.
Eldhús: Opið í anddyrið og ganginn með parketi á gólfi, falleg nýleg innrétting og veggfast borð er í ganginum.
Stofa: Rúmgóð og parketlögð með fallegum glugga út í bakportið.
Baðherbergi: Veggir með hleðslugleri, flísar á gólfi og sturta.
Svefnherbergi: Parket á gólfum og fataskápur, útgangur niður í kjallara og portið.
- Ljósleiðari er kominn inn í íbúðin.
- Prósentuhlutfall eignarinnar í húsinu öllu er 9,70 %
Að sögn eiganda er mikið búið að endurnýja eignina og húsið á undanförnum árum, árið 2020 var sett flasning/þennslulisti á mörk húsanna á Grundarstíg 2 og 2a. Ný Rafmagnstafla tengd og sett í íbúð. og nýjar rafmagnstöflur settar í allt húsið. Ný ljós í sameign og geymslur í kjallara og rafmagnslögn endurnýjuð. Árið 2022 var í íbúðinni sett upp nýtt eldhús, vaskur, blöndunartæki, uppþvottavél, vifta, helluborð, bakaraofn, innrétting og flísar. Parket slípað og lakkað með möttu lakki og sett upp ný vifta á baðherbergi. Árið 2023 var húsið múrviðgerð á mörkum húsanna á Grundarstíg 2 og 2a. (Varnir, múrbrot og hreinsun, inndæling (polyeuretha), múrviðgerð, filtun og málun.) Einnig settir nýir rafmagnsrofar og tenglar í íbúðinni. Árið 2025 voru endurnýjaðir allir gluggar í húsinu fyrir utan geymslu/kjallara. Skipt var einnig um tjörupappír og bárujárn á um helmingi þaks og forskalaður veggur á gafli þaksins klæddur með bárujárni.
ATH! Vinsæl staðsetning í miðbænum í Reykjavík í nálægð við fjölbreytta þjónustu s.s. skóla, leikskóla, verslun, veitingastaði og menningarsvæði, ásamt því að stutt er í miðbæinn með allt sem hann hefur upp á að bjóða ofl.
Allar nánari uppl. og skoðun veitir: Jóhann Friðgeir, lgf GSM: 896-3038 e-mail: johann@hofdi.is
Samkvæmt skráningu Þjóðskrár Íslands er birt flatarmál eignarinnar 53,1 fm. - Fyrirhugað fasteignamat 2026 kr. 53.450.000,-
Um er að ræða fallega 2ja herbergja íbúð með sérinngangi í steinhúsi sem var byggt árið 1928, staðsett á mjög góðum stað í miðbæ Reykjavíkur.
Komið er inn í anddyri með fatahengi. Eldhúsið er þar opið til hægri með nýlegri innréttingu. Gangur liggur úr forstofunni inn að stofunni og er baðherbergið hægra megin í ganginum. Stofan er rúmgóð og parketlögð, gengið er inn í svefnherbergið úr stofunni. Sameiginlegt þvottahús er í kjallara hússins ásamt sér, rúmgóðri 10,2 fm. geymslu sem fylgir íbúðinni. Sameiginlegt, afgirt port er aftan við húsið, þar sem hægt er að geyma m.a. hjól.
Anddyri/gangur: Flísar eru við inngang í anddyrinu, þar er fatahengi og parket er á ganginum.
Eldhús: Opið í anddyrið og ganginn með parketi á gólfi, falleg nýleg innrétting og veggfast borð er í ganginum.
Stofa: Rúmgóð og parketlögð með fallegum glugga út í bakportið.
Baðherbergi: Veggir með hleðslugleri, flísar á gólfi og sturta.
Svefnherbergi: Parket á gólfum og fataskápur, útgangur niður í kjallara og portið.
- Ljósleiðari er kominn inn í íbúðin.
- Prósentuhlutfall eignarinnar í húsinu öllu er 9,70 %
Að sögn eiganda er mikið búið að endurnýja eignina og húsið á undanförnum árum, árið 2020 var sett flasning/þennslulisti á mörk húsanna á Grundarstíg 2 og 2a. Ný Rafmagnstafla tengd og sett í íbúð. og nýjar rafmagnstöflur settar í allt húsið. Ný ljós í sameign og geymslur í kjallara og rafmagnslögn endurnýjuð. Árið 2022 var í íbúðinni sett upp nýtt eldhús, vaskur, blöndunartæki, uppþvottavél, vifta, helluborð, bakaraofn, innrétting og flísar. Parket slípað og lakkað með möttu lakki og sett upp ný vifta á baðherbergi. Árið 2023 var húsið múrviðgerð á mörkum húsanna á Grundarstíg 2 og 2a. (Varnir, múrbrot og hreinsun, inndæling (polyeuretha), múrviðgerð, filtun og málun.) Einnig settir nýir rafmagnsrofar og tenglar í íbúðinni. Árið 2025 voru endurnýjaðir allir gluggar í húsinu fyrir utan geymslu/kjallara. Skipt var einnig um tjörupappír og bárujárn á um helmingi þaks og forskalaður veggur á gafli þaksins klæddur með bárujárni.
ATH! Vinsæl staðsetning í miðbænum í Reykjavík í nálægð við fjölbreytta þjónustu s.s. skóla, leikskóla, verslun, veitingastaði og menningarsvæði, ásamt því að stutt er í miðbæinn með allt sem hann hefur upp á að bjóða ofl.
Allar nánari uppl. og skoðun veitir: Jóhann Friðgeir, lgf GSM: 896-3038 e-mail: johann@hofdi.is
Ár
Fasteignamat
Kaupverð
Stærð
Fermetraverð
28. ágú. 2018
29.600.000 kr.
29.000.000 kr.
53.1 m²
546.139 kr.
21. des. 2012
15.250.000 kr.
15.800.000 kr.
53.1 m²
297.552 kr.
Byggt á upplýsingum úr Þjóðskrá Íslands frá 2006-2025