Upplýsingar
Verðsaga
Byggt 2017
112,2 m²
3 herb.
1 baðherb.
3 svefnh.
Bílskúr
Lyfta
Lýsing
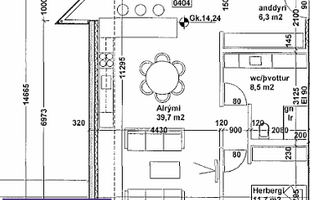
Herjólfsgata 34 - Afar glæsileg íbúð á efstu hæð með tveimur sérmerktum bílastæðum í bílgeymslu og einstöku útsýni. Íbúðin er skráð 112,2 fm að stærð samkvæmt fmr og er 4ra herbergja (sjá teikningu), bjart og opið alrými með innfelldri lýsingu, aukinni lofthæð og golfsíðum gluggum sem gerir mikið fyrir rýmið.
- Sérsmíðað eldhús.
- Útdraganleg markísa yfir svölunum.
- Tvö sérmerkt bílastæði (annað er fyrir hreyfihamlaða og er því afar rúmgott).
- Sér geymsla beint fyrir aftan annað bílastæðið í bílakjallara eignarinnar.
Nánari lýsing:
Forstofa með góðum forstofuskáp, gangur/hol, bjart alrými sem saman stendur af stofu, borðstofu, sjónvarpsstofu og opnu eldhúsi með góðu skápa og vinnuplássi,
útgengt er úr stofunni út á afar skjólgóðar svalir með fallegu útsýni til sjávar, tvö svefnherbergi bæði með fataskápum,
hjónaherbergið er með góðum fataskápum yfir vegg herbergisins og útgengt útá svalir.
Rúmgott flísalagt baðherbergi með "walk in" sturtu, fallegri innréttingu, handklæðaofni, innfelldum blöndunar tækjum og upphengdu klósetti,
sérmerkt geymsla innaf öðru stæði eignarinnar ásamt sameiginlegri hjóla og vagnageymsla, snyrtileg sameign með rafdrifnum hurðum og mjög vel umgengin.
Um er að ræða fallega eign á efstu hæð með mikill lofthæð, golfsíðum gluggum og einstöku útsýni, eign sem vert er að skoða.
Allar nánari upplýsingar veitir:
Stefán Rafn Sigurmannsson, löggiltur fasteignasali, s.655-7000 eða stefan@as.is
Ás fasteignasala er rótgróið fyrirtæki sem hefur veitt alla almenna þjónustu í fasteignaviðskiptum frá árinu 1988.
www.facebook.com/asfasteignasala
www.instagram.com/as_fasteignasala
www.as.is
- Sérsmíðað eldhús.
- Útdraganleg markísa yfir svölunum.
- Tvö sérmerkt bílastæði (annað er fyrir hreyfihamlaða og er því afar rúmgott).
- Sér geymsla beint fyrir aftan annað bílastæðið í bílakjallara eignarinnar.
Nánari lýsing:
Forstofa með góðum forstofuskáp, gangur/hol, bjart alrými sem saman stendur af stofu, borðstofu, sjónvarpsstofu og opnu eldhúsi með góðu skápa og vinnuplássi,
útgengt er úr stofunni út á afar skjólgóðar svalir með fallegu útsýni til sjávar, tvö svefnherbergi bæði með fataskápum,
hjónaherbergið er með góðum fataskápum yfir vegg herbergisins og útgengt útá svalir.
Rúmgott flísalagt baðherbergi með "walk in" sturtu, fallegri innréttingu, handklæðaofni, innfelldum blöndunar tækjum og upphengdu klósetti,
sérmerkt geymsla innaf öðru stæði eignarinnar ásamt sameiginlegri hjóla og vagnageymsla, snyrtileg sameign með rafdrifnum hurðum og mjög vel umgengin.
Um er að ræða fallega eign á efstu hæð með mikill lofthæð, golfsíðum gluggum og einstöku útsýni, eign sem vert er að skoða.
Allar nánari upplýsingar veitir:
Stefán Rafn Sigurmannsson, löggiltur fasteignasali, s.655-7000 eða stefan@as.is
Ás fasteignasala er rótgróið fyrirtæki sem hefur veitt alla almenna þjónustu í fasteignaviðskiptum frá árinu 1988.
www.facebook.com/asfasteignasala
www.instagram.com/as_fasteignasala
www.as.is
Ár
Fasteignamat
Kaupverð
Stærð
Fermetraverð
22. des. 2016
91.600.000 kr.
59.900.000 kr.
10408 m²
5.755 kr.
Byggt á upplýsingum úr Þjóðskrá Íslands frá 2006-2025