Upplýsingar
Byggt 2025
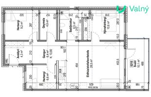
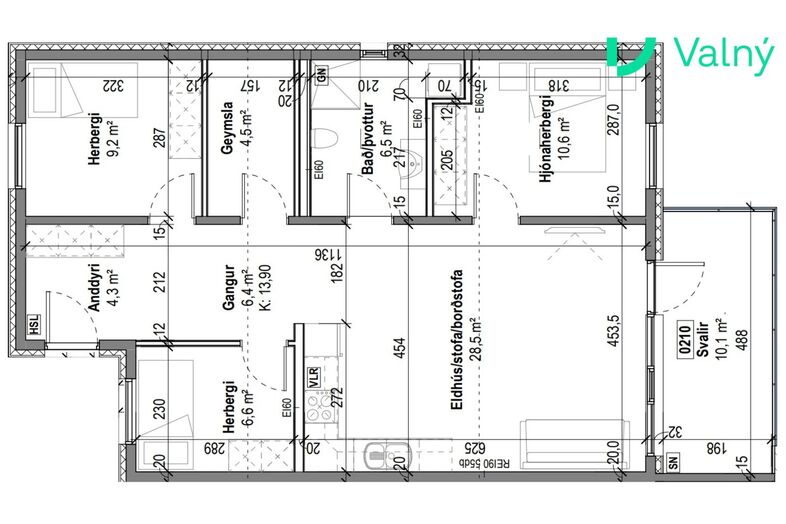
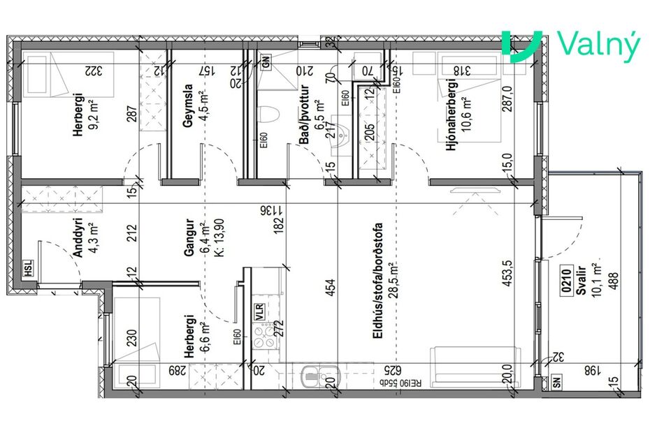
91,3 m²
4 herb.
1 baðherb.
3 svefnh.
Sameiginl. inngangur
Lyfta
Laus strax
Lýsing
Valný fasteignasala og Valgeir Leifur löggiltur fasteignasali kynna:
Tjarnabraut 2, ibúð 201, 260 Reykjanesbær
Glæsileg og vel skipulögð fjögurra herbergja íbúð á annarri hæð í nýju 23 íbúða lyftuhúsi á vinsælum stað í Innri Njarðvík. Íbúðin skilast fullbúin með sérsmíðuðum innréttingum frá Parka, innbyggðum raftækjum frá Electrolux, gólfhita og gólfefnum. Á lóðinni verða tvær uppsettar hleðslustöðvar fyrir rafbíla auk þess sem lagnir fyrir rafhleðslustöðvar verða lagðar í öll stæði við húsið. Eignin er laus við kaupsamning.
Samkvæmt fasteignaskrá HMS er eignin skráð samtals 91.3 m²
Eign merkt 02-01, fastanúmer 253-2522 ásamt öllu því sem eigninni fylgir, þar með talið tilheyrandi lóðar og sameignarréttindi.
Lýsing og skipulag eignar:
Forstofa er með flísum á gólfi og fataskáp.
Eldhús með sérsmíðaðri innréttingu frá Parka, svörtum vaski og svörtum blöndunartækjum. Eldhústæki eru spanhelluborð, bakaraofn og gufugleypir. Innbyggðir kæli- og frystiskápar ásamt innbyggðri uppþvottavél.
Stofa er rúmgóð með harðparketi á gólfi. Útgengt er á svalir.
Þrjú svefnherbergi, öll með harðparketi og fataskápum.
Baðherbergi með flísalögðu gólfi og veggjum að hluta, fallegri innréttingu, upphengdu salerni og walk-in sturtu. Aðstaða fyrir þvottavél og þurrkara er á baðherbergi.
Geymsla (4,5 m²) er innan íbúðar með glugga.
Í loftum eru Rockfon hljóðísogsplötur frá Parka sem tryggja góða hljóðvist. Gólfhiti er í öllum rýmum íbúðarinnar.
Byggingarlýsing:
Húsið er staðsteypt, þriggja hæða lyftuhús, einangrað að utan og klætt með báruðu áli. Svalahurðir og gluggar eru álklæddir timburgluggar. Á svölum er útilýsing og rafmagnstengill. Svalahandrið eru glerhandrið með möguleika á svalalokunum samkvæmt skilalýsingu seljanda. Loftaplata er steypt og þak er viðsnúið með tvöföldu lagi af heilbræddum þakpappa og möl þar ofan á XPS einangrun.
Lóð og aðkoma:
Bílastæði verða malbikuð. Stéttar við innganga eru hellulagðar og með snjóbræðslukerfi. Hjólaskýli er staðsett á lóðinni sem verður þökulögð.
Allar nánari upplýsingar veitir:
Valgeir Leifur / Löggiltur fasteignasali / 780-2575 / valgeir@valny.is
- Fasteignasalan sem opnar dyrnar að þinni eign.
Valný fasteignasala | www.valny.is | Tjarnargötu 2, 230 Reykjanesbær | Opið alla virka daga frá 9:00-16:00
Tjarnabraut 2, ibúð 201, 260 Reykjanesbær
Glæsileg og vel skipulögð fjögurra herbergja íbúð á annarri hæð í nýju 23 íbúða lyftuhúsi á vinsælum stað í Innri Njarðvík. Íbúðin skilast fullbúin með sérsmíðuðum innréttingum frá Parka, innbyggðum raftækjum frá Electrolux, gólfhita og gólfefnum. Á lóðinni verða tvær uppsettar hleðslustöðvar fyrir rafbíla auk þess sem lagnir fyrir rafhleðslustöðvar verða lagðar í öll stæði við húsið. Eignin er laus við kaupsamning.
Samkvæmt fasteignaskrá HMS er eignin skráð samtals 91.3 m²
Eign merkt 02-01, fastanúmer 253-2522 ásamt öllu því sem eigninni fylgir, þar með talið tilheyrandi lóðar og sameignarréttindi.
Lýsing og skipulag eignar:
Forstofa er með flísum á gólfi og fataskáp.
Eldhús með sérsmíðaðri innréttingu frá Parka, svörtum vaski og svörtum blöndunartækjum. Eldhústæki eru spanhelluborð, bakaraofn og gufugleypir. Innbyggðir kæli- og frystiskápar ásamt innbyggðri uppþvottavél.
Stofa er rúmgóð með harðparketi á gólfi. Útgengt er á svalir.
Þrjú svefnherbergi, öll með harðparketi og fataskápum.
Baðherbergi með flísalögðu gólfi og veggjum að hluta, fallegri innréttingu, upphengdu salerni og walk-in sturtu. Aðstaða fyrir þvottavél og þurrkara er á baðherbergi.
Geymsla (4,5 m²) er innan íbúðar með glugga.
Í loftum eru Rockfon hljóðísogsplötur frá Parka sem tryggja góða hljóðvist. Gólfhiti er í öllum rýmum íbúðarinnar.
Byggingarlýsing:
Húsið er staðsteypt, þriggja hæða lyftuhús, einangrað að utan og klætt með báruðu áli. Svalahurðir og gluggar eru álklæddir timburgluggar. Á svölum er útilýsing og rafmagnstengill. Svalahandrið eru glerhandrið með möguleika á svalalokunum samkvæmt skilalýsingu seljanda. Loftaplata er steypt og þak er viðsnúið með tvöföldu lagi af heilbræddum þakpappa og möl þar ofan á XPS einangrun.
Lóð og aðkoma:
Bílastæði verða malbikuð. Stéttar við innganga eru hellulagðar og með snjóbræðslukerfi. Hjólaskýli er staðsett á lóðinni sem verður þökulögð.
Allar nánari upplýsingar veitir:
Valgeir Leifur / Löggiltur fasteignasali / 780-2575 / valgeir@valny.is
- Fasteignasalan sem opnar dyrnar að þinni eign.
Valný fasteignasala | www.valny.is | Tjarnargötu 2, 230 Reykjanesbær | Opið alla virka daga frá 9:00-16:00