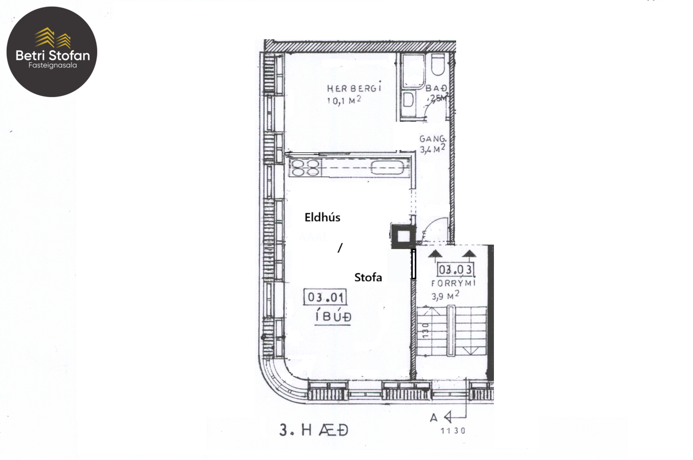
Grundarstígur, 101 Reykjavík