Löggiltir fasteignasalar innan Félags fasteignasala:
Sverrir Kristinsson
Kjartan Hallgeirsson
Guðlaugur Ingi Guðlaugsson
Daði Hafþórsson
Gunnar Helgi Einarsson
Gunnar Bergmann Jónsson
Lilja Guðmundsdóttir
Jenný Sandra Gunnarsdóttir
Kári Sighvatsson
Vista
svg

149

svg

146  Skoðendur

svg

Skráð  4. des. 2025

fjölbýlishús

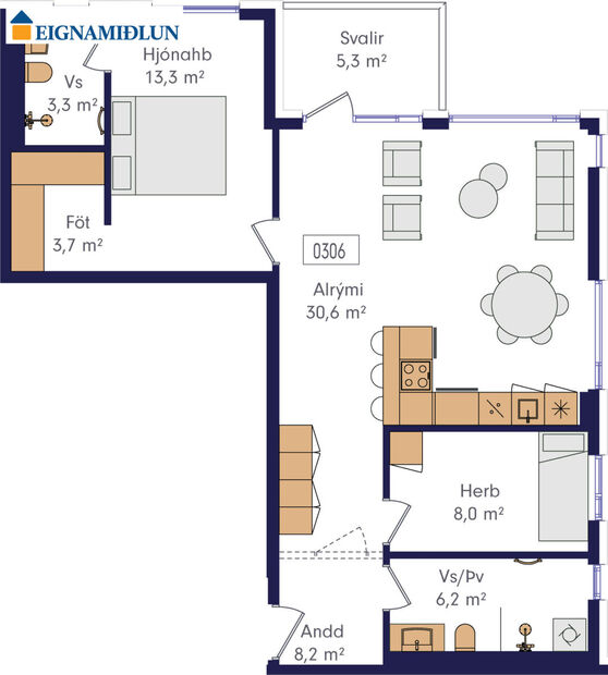
Heklureitur - íbúð 306

105 Reykjavík

107.900.000 kr.

1.110.082 þ.kr./m2
Fasteignanúmer

F2529762

Fasteignamat

8.670.000 kr.

Brunabótamat

0 kr.

Áhvílandi

0 kr.

Arion banki – Reikna lán
Upplýsingar
svg
97,2 m²
svg
3 herb.
svg
2 baðherb.
svg
2 svefnh.
svg
Sameiginl. inngangur
svg
Bílastæði
Opið hús: 17. janúar 2026 kl. 13:00 til 14:00

Opið hús laugardag 17 janúar og sunnudag 18 janúar milli kl 13:00 - 14:00. Sýnum allar óseldar íbúðir. Aðkoma frá Nóatúni.

Lýsing

Eignamiðlun kynnir:

Glæsilegar íbúðir í fjölbreyttum stærðum við Heklureit þar sem áhersla er lög á nútímalega hönnun með vönduðum sérsmíðuðum ítölskum innréttingum og nýjustu Siemens tækjum. Gólfsíðir gluggar hleypa mikilli náttúrulegri birtu inn og auka útsýni. Gólfhiti er í öllum íbúðum. Íbúðir á efri hæðum hafa eigin þakgarða en sameiginlegur þakgarður verður einnig fyrir alla íbúa í húsinu ásamt fallegum inngarði. Frábær staðsetning í miðborginni en þó fjarri skarkala miðbæjarins

NÁNARI UPPLÝSINGAR GEFUR: Brynjar Þór Sumarliðason, Löggiltur fasteignasali í síma 896-1168 eða brynjar@eignamidlun.is

Opinber skráning eignar: 
Íbúð merkt 03-06 við Laugaveg 168, 105 Reykjavík. Fastanúmer eignar: 252-9762. Birt flatarmál er 97.2 fm með svölum og sérgeymslu í sameign. Stæði í bílageymslu merkt B3-04 fylgir íbúðinni. Innréttingaþema Bjarmi, mistral borðplötur. Tölvumyndir eru af sýningaríbúð.

**Sækja söluyfirlit**

**Heimasíða verkefnisins**

Hönnun:
Fágun og gæði voru höfð að leiðarljósi við hönnun íbúðanna. Gluggar nema við gólf og eru hærri til lofts til að hámarka flæði birtu og útsýnis. Gólfhiti er í öllum íbúðum. Studio Homestead komu að hönnun innréttinganna og eru þær sérsmíðaðar af ítalska fyrirtækinu Cubo Design úr Miton línunni þeirra. Borðplötur ásamt bakplötu eru úr Quarts steini sem er sérframleiddur á Ítalíu frá Santamargherita. Íbúðirnar eru búnar vönduðum tækjum frá Siemens. Á baðherbergjum verða innbyggð blöndunartæki og Quartz borðplata á baðinnréttingu. Öll tæki hvort sem er fyrir eldhús eða bað eru valin með tilliti til gæða og endingar. Kaupendur hafa tækfæri á að velja mismunandi innréttingaþema.

Húsið er klætt með mismunandi litaðri álklæðningu ásamt bambus sem gefur því lifandi yfirbragð og þarfnast lítils viðhalds. Aðkeyrsla að bílakjallara er á tveimur stöðum, frá Nóatúni og Laugavegi.

Áætluð afhending er mars 2026

Nánari upplýsingar veita fasteignasalar Eignamiðlunar:
Kjartan Hallgeirsson 824-9093 kjartan@eignamidlun.is
Kári Sighvatsson 899-8815 kari@eignamidlun.is
Gunnar Bergmann Jónsson 839-1600 gunnarbergmann@eignamidlun.is
Brynjar Þ. Sumarliðason 896-1168 brynjar@eignamidlun.is
Rögnvaldur Örn Jónsson 660-3452 rognvaldur@eignamidlun.is
Unnar Kjartansson 867-0968 unnar@eignamidlun.is 
Lilja Guðmundsdóttir 649-3868 lilja@eignamidlun.is

***
Ábyrg þjónusta í áratugi. Eignamiðlun var stofnuð 1957 og er elsta starfandi fasteignasala á Íslandi. Reynsla, heiðarleiki og þekking á fasteignamarkaðnum eru grunnur að farsælum viðskiptum. 

Eignamiðlun Grensásvegi 11, 108 Reykjavík - Opið frá kl. 9-17 mánudaga til fimmtudaga og 9-16 á föstudögum.

Heimasíða Eignamiðlunar

Eignamiðlun á Facebook

Eignamiðlun

Eignamiðlun

Grensásvegi 11, 108 Reykjavík
Eignamiðlun

Eignamiðlun

Grensásvegi 11, 108 Reykjavík