Upplýsingar
Byggt 1936
157,1 m²
5 herb.
2 baðherb.
4 svefnh.
Þvottahús
Útsýni
Lýsing
Fasteignasalan Hvammur 466 1600
Oddeyrargata 24b - Skemmtileg 5 herbergja íbúð í tvíbýlishúsi á neðri Brekkunni á horni Oddeyrargötu og Hamarstígs - stærð 157,1 m²
Eignin skiptist með eftirtöldum hætti,
Kjallari 28,3 m² : Þvottahús/bakinngangur og tvær geymslur.
Inngangshæð 43,1 m² : Forstofa, tvö svefnherbergi og baðherbergi.
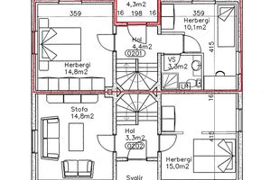
Miðhæð 40,7 m² : Hol, tvö svefnherbergi og baðherbergi.
Ris 45,0 m² : Eldhús, borðstofa og stofa/sjónvarpshol. Geymslurými eru undir súð.
Inngangshæð
Forstofa er með flísum á gólfi. Gengið er inn um sér inngang á vesturhlið hússins.
Svefnherbergin eru tvö á hæðinni og annað ágætlega rúmgott. Viðar fjalir og plast parket á gólfum.
Baðherbergi er með lökkuðu gólfi og flísum á hluta veggja, hvít innrétting, upphengt wc og baðkar með sturtutækjum og glervæng.
Lakkaður timbur stigi er upp á miðhæðina.
Miðhæð
Hol er með plast parketi á gólfi og hurð til vesturs út á svalir. Ný svalahurð verður sett upp fyrir afhendingu eignar.
Svefnherbergin eru tvö og bæði með fataskápum. Korkur er á gólfi í öðru herberginu og parket á hinu.
Baðherbergi er með flísum á gólfi svart lakkaðri innréttingu, wc og sturtu. Flísar og málaður panill eru á veggjum.
Parketlagður timbur stigi er upp í risið.
Ris
Hvíttað parket er á öllum gólfum í risinu og loft tekin upp.
Eldhús, grá og hvít máluð innrétting með flísalagðri bekkplötu og á milli skápa. Nýleg tæki og nýlegur vaskur og blöndunartæki. Skemmtilegur útsýnisgluggi til norðurs.
Borðstofa er undir kvisti sem snýr til vesturs.
Stofa/Sjónvarpshol er undir kvisti sem snýrt til austurs. Á milli borðstofu og stofu er kvistur til suðurs og hurð út á svalir. Ný svalahurð verður sett upp fyrir afhendingu eignar.
Þrjú góð geymslurými eru undir súð.
Kjallari
Gengið er niður steyptan og lakkaðan stiga þegar farið er niður í kjallara sem skiptist í þvottahús/bakinngang og tvær geymslur. Öll gólf eru lökkuð.
Ekki er full lofthæð í kjallaranum.
Annað
- Frárennslislagnir voru endurnýjaðar árið 2025
- Búið er að endurnýja hluta af vatnslögnum.
- Lóð er skipt í sér afnotahluta.
- Sér bílplan, steypt.
- Timbur verönd.
- Eignin er í einkasölu
Um skoðunar- og aðgæsluskyldu:
Í lögum um fasteignakaup nr. 40/2002 er kveðið á um ríka skoðunarskyldu kaupenda á fasteignum. Fasteignasalan Hvammur skorar því á væntanlega kaupendur að kynna sér vel ástand fasteigna fyrir kauptilboðsgerð og leita til þar til bærra sérfræðinga um nánari skoðun ef með þarf.
Forsendur söluyfirlits:
Söluyfirlit er samið af fasteignasala í samræmi við ákvæði laga nr. 70/2015. Þær upplýsingar sem fram koma í söluyfirliti þessu eru sóttar í opinberar skrár, til seljanda sjálfs og eftir atvikum til húsfélags. Seljandi veitir upplýsingar um eign í samræmi við upplýsingaskyldu laga um fasteignakaup nr. 40/2002. Fasteignasali sannreynir að þær upplýsingar séu réttar með sjónskoðun á eigninni. Fasteignasali getur ekki fullyrt um ástand og eiginleika þeirra hluta fasteigna sem ekki eru aðgengilegir og sjást ekki berum augum, t.d. lagnir, dren, skólp og þak.
Oddeyrargata 24b - Skemmtileg 5 herbergja íbúð í tvíbýlishúsi á neðri Brekkunni á horni Oddeyrargötu og Hamarstígs - stærð 157,1 m²
Eignin skiptist með eftirtöldum hætti,
Kjallari 28,3 m² : Þvottahús/bakinngangur og tvær geymslur.
Inngangshæð 43,1 m² : Forstofa, tvö svefnherbergi og baðherbergi.
Miðhæð 40,7 m² : Hol, tvö svefnherbergi og baðherbergi.
Ris 45,0 m² : Eldhús, borðstofa og stofa/sjónvarpshol. Geymslurými eru undir súð.
Inngangshæð
Forstofa er með flísum á gólfi. Gengið er inn um sér inngang á vesturhlið hússins.
Svefnherbergin eru tvö á hæðinni og annað ágætlega rúmgott. Viðar fjalir og plast parket á gólfum.
Baðherbergi er með lökkuðu gólfi og flísum á hluta veggja, hvít innrétting, upphengt wc og baðkar með sturtutækjum og glervæng.
Lakkaður timbur stigi er upp á miðhæðina.
Miðhæð
Hol er með plast parketi á gólfi og hurð til vesturs út á svalir. Ný svalahurð verður sett upp fyrir afhendingu eignar.
Svefnherbergin eru tvö og bæði með fataskápum. Korkur er á gólfi í öðru herberginu og parket á hinu.
Baðherbergi er með flísum á gólfi svart lakkaðri innréttingu, wc og sturtu. Flísar og málaður panill eru á veggjum.
Parketlagður timbur stigi er upp í risið.
Ris
Hvíttað parket er á öllum gólfum í risinu og loft tekin upp.
Eldhús, grá og hvít máluð innrétting með flísalagðri bekkplötu og á milli skápa. Nýleg tæki og nýlegur vaskur og blöndunartæki. Skemmtilegur útsýnisgluggi til norðurs.
Borðstofa er undir kvisti sem snýr til vesturs.
Stofa/Sjónvarpshol er undir kvisti sem snýrt til austurs. Á milli borðstofu og stofu er kvistur til suðurs og hurð út á svalir. Ný svalahurð verður sett upp fyrir afhendingu eignar.
Þrjú góð geymslurými eru undir súð.
Kjallari
Gengið er niður steyptan og lakkaðan stiga þegar farið er niður í kjallara sem skiptist í þvottahús/bakinngang og tvær geymslur. Öll gólf eru lökkuð.
Ekki er full lofthæð í kjallaranum.
Annað
- Frárennslislagnir voru endurnýjaðar árið 2025
- Búið er að endurnýja hluta af vatnslögnum.
- Lóð er skipt í sér afnotahluta.
- Sér bílplan, steypt.
- Timbur verönd.
- Eignin er í einkasölu
Um skoðunar- og aðgæsluskyldu:
Í lögum um fasteignakaup nr. 40/2002 er kveðið á um ríka skoðunarskyldu kaupenda á fasteignum. Fasteignasalan Hvammur skorar því á væntanlega kaupendur að kynna sér vel ástand fasteigna fyrir kauptilboðsgerð og leita til þar til bærra sérfræðinga um nánari skoðun ef með þarf.
Forsendur söluyfirlits:
Söluyfirlit er samið af fasteignasala í samræmi við ákvæði laga nr. 70/2015. Þær upplýsingar sem fram koma í söluyfirliti þessu eru sóttar í opinberar skrár, til seljanda sjálfs og eftir atvikum til húsfélags. Seljandi veitir upplýsingar um eign í samræmi við upplýsingaskyldu laga um fasteignakaup nr. 40/2002. Fasteignasali sannreynir að þær upplýsingar séu réttar með sjónskoðun á eigninni. Fasteignasali getur ekki fullyrt um ástand og eiginleika þeirra hluta fasteigna sem ekki eru aðgengilegir og sjást ekki berum augum, t.d. lagnir, dren, skólp og þak.