Löggiltir fasteignasalar innan Félags fasteignasala:
Sverrir Kristinsson
Kjartan Hallgeirsson
Guðlaugur Ingi Guðlaugsson
Daði Hafþórsson
Gunnar Helgi Einarsson
Gunnar Bergmann Jónsson
Lilja Guðmundsdóttir
Jenný Sandra Gunnarsdóttir
Kári Sighvatsson
Vista
fjölbýlishús

Vetrarbraut 4 - íbúð 410

210 Garðabær

259.900.000 kr.

1.343.847 þ.kr./m2
Fasteignanúmer

F2534912

Fasteignamat

0 kr.

Brunabótamat

0 kr.

Áhvílandi

0 kr.

Arion banki – Reikna lán
Upplýsingar
svg
Byggt 2025
svg
193,4 m²
svg
4 herb.
svg
1 baðherb.
svg
3 svefnh.
svg
Þvottahús
svg
Útsýni
svg
Sameiginl. inngangur
svg
Bílastæði
svg
Lyfta

Lýsing

Eignamiðlun kynnir:

Vetrarmýri er nýtt og heillandi hverfi sem rís miðsvæðis á höfuðborgarsvæðinu í nánd við Vífilsstaði, golfvöll GKG, Heiðmörk og nýja íþróttaaðstöðu í Miðgarði. Íbúðirnar eru einstaklega vel hannaðar, svansvottaðar með gæði og þægindi í fyrirrúmi. Innréttingar eru vandaðar og allt efnisval smekklegt og tímalaust. Í hverri íbúð er loftskiptikerfi sem eykur loftgæði, stuðlar að heilnæmu innilofti og bætir líðan íbúa. Í bílakjallara fylgir öllum íbúðum eitt til tvö bílastæði og sumum þeirra fylgir einnig frístundaskúr eða bílskúr. Hverfið nýtur sterkra innviða Garðabæjar auk þess sem stutt er í marga af stærstu verslunarkjörnum höfuðborgarsvæðisins og fjölbreytta þjónustu. Góðar tengingar eru við stofnbrautir. Skipulag svæðisins hefur hlotið alþjóðlegu umhverfisvottunina BREEAM.

Nánari upplýsingar gefur: Brynjar Þór Sumarliðason, löggiltur fasteignasali í síma 896-1168 eða brynjar@eignamidlun.is

Opinber skráning eignar: 
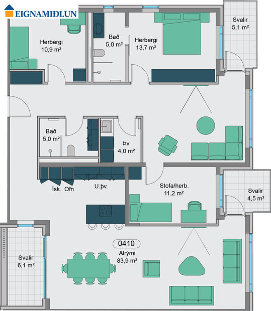
Íbúð merkt 04-10 er vönduð fjögurra herbergja íbúð. Fastanúmer eignar: 253-4912. Birt flatarmál er 193.4 fm með sérgeymslu í sameign og bílskúr. Íbúðinni fylgja tvö stæði í bílageymslu.
Íbúðin skiptist í stórt opið alrými sem hýsir eldhús, borðstofu og stofu. Sjónvarpsstofu, þrjú svefnherbergi tvö baðherbergi og þvottahús. Þrennar svalir eru á íbúðinni. Tölvumyndir eru af sýningaríbúðum.

**Sækja söluyfirlit**
**Heimasíða verkefnis**

Afhending miðast við sumar/haust 2025

Nánari upplýsingar veita fasteignasalar Eignamiðlunar:
Guðlaugur Ingi Guðlaugsson 864-5464 gudlaugur@eignamidlun.is
Magnús Þórir Matthíasson 895-1427 magnus@eignamidlun.is
Gunnar Bergmann Jónsson 839-1600 gunnarbergmann@eignamidlun.is
Brynjar Þ. Sumarliðason 896-1168 brynjar@eignamidlun.is
Lilja Guðmundsdóttir 649-3868 lilja@eignamidlun.is

***
Ábyrg þjónusta í áratugi. Eignamiðlun var stofnuð 1957 og er elsta starfandi fasteignasala á Íslandi. Reynsla, heiðarleiki og þekking á fasteignamarkaðnum eru grunnur að farsælum viðskiptum. 

Eignamiðlun Grensásvegi 11, 108 Reykjavík - Opið frá kl. 9-17 mánudaga til fimmtudaga og 9-16 á föstudögum.

Heimasíða Eignamiðlunar

Eignamiðlun á Facebook

Eignamiðlun

Eignamiðlun

Grensásvegi 11, 108 Reykjavík
Eignamiðlun

Eignamiðlun

Grensásvegi 11, 108 Reykjavík