Upplýsingar
Verðsaga
Byggt 1985
96 m²
4 herb.
2 baðherb.
3 svefnh.
Þvottahús
Lýsing
Jón Smári Einarsson lgf. s. 860-6400 og Fasteignaland kynna í einkasölu eignina Selhóll 2 í landi Hæðarenda, 805 Selfoss, glæsilegt sumarhús á stórri eignalóð í Grímsnesinu, nánar tiltekið eign merkt 01-01, fastanúmer 220-7632 ásamt öllu því sem eigninni fylgir, þar með talið tilheyrandi lóðar og sameignarréttindi.
Mikið endurnýjað 96 fm sumarhús á 12.000 fm eignarlóð með gestahúsi, heitum potti og saunu. Svefnaðstaða fyrir allt að 9 manns. Vandaðar innréttingar, sérsmíðað eldhús, björt stofa með útgengi á sólpall og ný kamína.
Sumarhús 63,1 fm, gestahús (14 fm) með sér sólpalli, rúmgott þvottahús (15,4 fm), sauna (3.5 fm), svefnloft (15,4 fm gólfrými, er ekki inni í fm tölu). Rúmgott geymslurými eru undir hluta hússins og sólpalls. Við húsið er hleðslustöð fyrir rafbíl sem fylgir með. Eignin selst fullbúin með húsgögnum og búnaði – tilbúin til notkunar strax!
Draumaeign fyrir vandláta
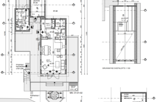
Til sölu er glæsileg og mikið endurnýjuð eign þar sem hvergi hefur verið til sparað í vali á efnum og innréttingum. Innanhússhönnun er eftir Leif Welding og er húsið einstaklega smekklegt og vel skipulagt. Aðalhúsið skiptist í tvö svefnherbergi, baðherbergi, eldhús, stofu og geymslu sem nýtt er sem svefnloft. Af sólpallinum er gengið inn í rúmgott þvottahús með góðri innréttingu, og þar má einnig finna heitan pott og sérsmíðaða saunu. Við húsið stendur gestahús með baðherbergi og sér sólpalli. Húsin eru tengd hitaveitu með lokuðu ofnakerfi. Svefnaðstaða fyrir allt að níu manns. Eignin selst fullbúin með öllum húsgögnum og búnaði og hentar því vel sem draumaheimili eða sumarhús fyrir vandláta kaupendur.
Innandyra er viðarparket frá Planka lagt í síldarbeinamunstri, en votrými eru flísalögð. Í forstofu er sérsmíðaður skápur frá Inn-Gó. Stofan er björt og opin með stórum suðurgluggum og rennihurð út á sólpall. Þar er ný kamína sem skapar notalega stemningu ásamt vegghengdu sjónvarpi. Eldhúsið er sérhannað með sérsmíðaðri innréttingu frá Inn-Gó, steinborðplötu frá S. Helgason og vönduðum tækjum. Allur eldhúsbúnaður og borðbúnaður frá Expert fylgir, ásamt sérlituðu borði úr gegnheilum við frá Efnisveitunni. Í hjónaherbergi er Jensen rúm frá Epal og í barnaherbergi er tvíbreitt rúm með einbreiðri efri koju. Svefnloftið er aðgengilegt með niðurdraganlegum stiga og er þar tvíbreitt rúm. Baðherbergið er rúmgott og snyrtilegt með flísalagðri sturtu, sérsmíðuðum skáp frá Inn-Gó og steinvaski.
Gestahúsið býður upp á gott svefnherbergi með útgengi á sér sólpall, sjónvarp með veggfestingu og sama vandaða parketgólfefnið og í aðalhúsinu. Baðherbergi gestahússins er með flísalögðu gólfi, upphengdu salerni og vask. Þvottahúsið er rúmgott með hvítri innréttingu, miklu skápaplássi, þvottavél, þurrkara og stórum tvöföldum amerískum ísskáp. Þar eru flísar á gólfi.
Eignin hefur verið endurnýjuð í heild sinni á síðustu árum. Allt innvols í aðalhúsi er nýtt, þar á meðal tvær rafmagnstöflur, ný lagnagrind og ofnar. Sett hefur verið upp ný pottastýring og heitur pottur frá NormX, auk sérsmíðaðrar saunu með 9,5 KW hitara. Ytra byrði hússins hefur verið málað að nýju og sólpallur slípaður og málaður. Einnig hefur verið komið fyrir hleðslustöð fyrir rafbíla, nýrri útilýsingu og loftaklæðningu frá Agli Árnasyni. Gardínur eru frá Euro Blinds og öll blöndunartæki eru ný. Undir hluta hússins er stórt geymslurými.
Húsið hefur fengið gott viðhald í gegnum tíðina, en fá ár er síðan heitavatnsheimtaug, rotþró og þak á húsinu var endurnýjað og var um leið bætt í einangrun þakið.
Heimkeyrslan er upplýst, mjög falleg, með nægum bílastæðum og lokuð með hliði.
Möguleiki er á að byggja annað sumarhúshús á lóðinni svo framarlega að sveitarfélagið gefi leyfi.
Hér er á ferðinni einstaklega vönduð eign sem býður upp á alla helstu nútímaþægindi í fallegu og notalegu umhverfi.
Sumarhúsið er tilbúið til afhendingar með húsgögnum og búnaði og hentar jafnt sem fallegt orlofshús eða heimili fyrir kröfuhart fólk.
Sumarhússvæðið er lokað með rafstýrðu innkeyrsluhliði (símahlið).
Möguleiki er að innbú fylgi með við sölu, utan persónulegra muna.
Eignin Selhóll 2 er skráð sem hér segir hjá FMR: Eign 220-7632, birt stærð 96,0 fm.
Staðsetning og nærumhverfi:
Eignin er vel staðsett miðsvæðis á Suðurlandi, með stuttu aðgengi að náttúruperlum á borð við Þingvelli, Kerið, Gullfoss, Geysi, Skálholt og Laugarvatn. Þá er stutt í fjölbreytta þjónustu og afþreyingu s.s. veiði, sundlaugar, golf, frisbígolf og gönguleiðir. Selfoss er í u.þ.b. 20 km fjarlægð og um 65 km eru til Reykjavíkur um Hellisheiði.
Nánari upplýsingar veitir:
Jón Smári Einarsson
Löggiltur fasteignasali / MPM, viðskiptafræðingur.
jonsmari@fasteignaland.is
860-6400
Skoðunarskylda kaupanda:
Í lögum um fasteignakaup nr. 40/2002 er kveðið á um ríka skoðunarskyldu kaupenda á fasteignum. Fasteignaland fasteignasala bendir væntanlegum kaupendum á að kynna sér vel ástand fasteigna við skoðun og fyrir tilboðsgerð og ef þurfa þykir að leita til sérfræðinga um nánari ástandsskoðun.
Forsendur söluyfirlits:
Söluyfirlit er samið af fasteignasala í samræmi við ákvæði laga nr. 70/2015. Þær upplýsingar sem fram koma í söluyfirliti þessu eru sóttar í opinberar skrár, til seljanda sjálfs og eftir atvikum til húsfélags. Seljandi veitir upplýsingar um eign í samræmi við upplýsingaskyldu laga um fasteignakaup nr. 40/2002. Fasteignasali sannreynir að þær upplýsingar séu réttar með sjónskoðun á eigninni.
Fasteignasali getur ekki fullyrt um ástand og eiginleika þeirra hluta fasteigna sem ekki eru aðgengilegir og sjást ekki berum augum, t.d. lagnir, dren, skólp og þak.
Gjöld sem kaupandi þarf að standa straum af vegna kaupanna:
1. Stimpilgjald af kaupsamningi sem er hlutfall af fasteignamati. Stimpilgjald er 0,8% fyrir einstaklinga (0,4% við fyrstu kaup á íbúðarhúsnæði) og 1,6% fyrir lögaðila.
2. Þinglýsingargjald af kaupsamningi, veðskuldabréfum, veðleyfum o.fl. Þinglýsingargjald er kr. 2.700,- fyrir hvert skjal.
3. Lántökugjald lánastofnunar. Um lántökugjald vísast í gjaldskrá viðkomandi lánveitanda.
4. Umsýslugjald kaupanda kr. 69.900 .
5. Þegar um nýbyggingu er að ræða greiðir kaupandi skipulagsgjald, 0,3% af endanlegu brunabótamáti, þegar það er lagt á.
Mikið endurnýjað 96 fm sumarhús á 12.000 fm eignarlóð með gestahúsi, heitum potti og saunu. Svefnaðstaða fyrir allt að 9 manns. Vandaðar innréttingar, sérsmíðað eldhús, björt stofa með útgengi á sólpall og ný kamína.
Sumarhús 63,1 fm, gestahús (14 fm) með sér sólpalli, rúmgott þvottahús (15,4 fm), sauna (3.5 fm), svefnloft (15,4 fm gólfrými, er ekki inni í fm tölu). Rúmgott geymslurými eru undir hluta hússins og sólpalls. Við húsið er hleðslustöð fyrir rafbíl sem fylgir með. Eignin selst fullbúin með húsgögnum og búnaði – tilbúin til notkunar strax!
Draumaeign fyrir vandláta
Til sölu er glæsileg og mikið endurnýjuð eign þar sem hvergi hefur verið til sparað í vali á efnum og innréttingum. Innanhússhönnun er eftir Leif Welding og er húsið einstaklega smekklegt og vel skipulagt. Aðalhúsið skiptist í tvö svefnherbergi, baðherbergi, eldhús, stofu og geymslu sem nýtt er sem svefnloft. Af sólpallinum er gengið inn í rúmgott þvottahús með góðri innréttingu, og þar má einnig finna heitan pott og sérsmíðaða saunu. Við húsið stendur gestahús með baðherbergi og sér sólpalli. Húsin eru tengd hitaveitu með lokuðu ofnakerfi. Svefnaðstaða fyrir allt að níu manns. Eignin selst fullbúin með öllum húsgögnum og búnaði og hentar því vel sem draumaheimili eða sumarhús fyrir vandláta kaupendur.
Innandyra er viðarparket frá Planka lagt í síldarbeinamunstri, en votrými eru flísalögð. Í forstofu er sérsmíðaður skápur frá Inn-Gó. Stofan er björt og opin með stórum suðurgluggum og rennihurð út á sólpall. Þar er ný kamína sem skapar notalega stemningu ásamt vegghengdu sjónvarpi. Eldhúsið er sérhannað með sérsmíðaðri innréttingu frá Inn-Gó, steinborðplötu frá S. Helgason og vönduðum tækjum. Allur eldhúsbúnaður og borðbúnaður frá Expert fylgir, ásamt sérlituðu borði úr gegnheilum við frá Efnisveitunni. Í hjónaherbergi er Jensen rúm frá Epal og í barnaherbergi er tvíbreitt rúm með einbreiðri efri koju. Svefnloftið er aðgengilegt með niðurdraganlegum stiga og er þar tvíbreitt rúm. Baðherbergið er rúmgott og snyrtilegt með flísalagðri sturtu, sérsmíðuðum skáp frá Inn-Gó og steinvaski.
Gestahúsið býður upp á gott svefnherbergi með útgengi á sér sólpall, sjónvarp með veggfestingu og sama vandaða parketgólfefnið og í aðalhúsinu. Baðherbergi gestahússins er með flísalögðu gólfi, upphengdu salerni og vask. Þvottahúsið er rúmgott með hvítri innréttingu, miklu skápaplássi, þvottavél, þurrkara og stórum tvöföldum amerískum ísskáp. Þar eru flísar á gólfi.
Eignin hefur verið endurnýjuð í heild sinni á síðustu árum. Allt innvols í aðalhúsi er nýtt, þar á meðal tvær rafmagnstöflur, ný lagnagrind og ofnar. Sett hefur verið upp ný pottastýring og heitur pottur frá NormX, auk sérsmíðaðrar saunu með 9,5 KW hitara. Ytra byrði hússins hefur verið málað að nýju og sólpallur slípaður og málaður. Einnig hefur verið komið fyrir hleðslustöð fyrir rafbíla, nýrri útilýsingu og loftaklæðningu frá Agli Árnasyni. Gardínur eru frá Euro Blinds og öll blöndunartæki eru ný. Undir hluta hússins er stórt geymslurými.
Húsið hefur fengið gott viðhald í gegnum tíðina, en fá ár er síðan heitavatnsheimtaug, rotþró og þak á húsinu var endurnýjað og var um leið bætt í einangrun þakið.
Heimkeyrslan er upplýst, mjög falleg, með nægum bílastæðum og lokuð með hliði.
Möguleiki er á að byggja annað sumarhúshús á lóðinni svo framarlega að sveitarfélagið gefi leyfi.
Hér er á ferðinni einstaklega vönduð eign sem býður upp á alla helstu nútímaþægindi í fallegu og notalegu umhverfi.
Sumarhúsið er tilbúið til afhendingar með húsgögnum og búnaði og hentar jafnt sem fallegt orlofshús eða heimili fyrir kröfuhart fólk.
Sumarhússvæðið er lokað með rafstýrðu innkeyrsluhliði (símahlið).
Möguleiki er að innbú fylgi með við sölu, utan persónulegra muna.
Eignin Selhóll 2 er skráð sem hér segir hjá FMR: Eign 220-7632, birt stærð 96,0 fm.
Staðsetning og nærumhverfi:
Eignin er vel staðsett miðsvæðis á Suðurlandi, með stuttu aðgengi að náttúruperlum á borð við Þingvelli, Kerið, Gullfoss, Geysi, Skálholt og Laugarvatn. Þá er stutt í fjölbreytta þjónustu og afþreyingu s.s. veiði, sundlaugar, golf, frisbígolf og gönguleiðir. Selfoss er í u.þ.b. 20 km fjarlægð og um 65 km eru til Reykjavíkur um Hellisheiði.
Nánari upplýsingar veitir:
Jón Smári Einarsson
Löggiltur fasteignasali / MPM, viðskiptafræðingur.
jonsmari@fasteignaland.is
860-6400
Skoðunarskylda kaupanda:
Í lögum um fasteignakaup nr. 40/2002 er kveðið á um ríka skoðunarskyldu kaupenda á fasteignum. Fasteignaland fasteignasala bendir væntanlegum kaupendum á að kynna sér vel ástand fasteigna við skoðun og fyrir tilboðsgerð og ef þurfa þykir að leita til sérfræðinga um nánari ástandsskoðun.
Forsendur söluyfirlits:
Söluyfirlit er samið af fasteignasala í samræmi við ákvæði laga nr. 70/2015. Þær upplýsingar sem fram koma í söluyfirliti þessu eru sóttar í opinberar skrár, til seljanda sjálfs og eftir atvikum til húsfélags. Seljandi veitir upplýsingar um eign í samræmi við upplýsingaskyldu laga um fasteignakaup nr. 40/2002. Fasteignasali sannreynir að þær upplýsingar séu réttar með sjónskoðun á eigninni.
Fasteignasali getur ekki fullyrt um ástand og eiginleika þeirra hluta fasteigna sem ekki eru aðgengilegir og sjást ekki berum augum, t.d. lagnir, dren, skólp og þak.
Gjöld sem kaupandi þarf að standa straum af vegna kaupanna:
1. Stimpilgjald af kaupsamningi sem er hlutfall af fasteignamati. Stimpilgjald er 0,8% fyrir einstaklinga (0,4% við fyrstu kaup á íbúðarhúsnæði) og 1,6% fyrir lögaðila.
2. Þinglýsingargjald af kaupsamningi, veðskuldabréfum, veðleyfum o.fl. Þinglýsingargjald er kr. 2.700,- fyrir hvert skjal.
3. Lántökugjald lánastofnunar. Um lántökugjald vísast í gjaldskrá viðkomandi lánveitanda.
4. Umsýslugjald kaupanda kr. 69.900 .
5. Þegar um nýbyggingu er að ræða greiðir kaupandi skipulagsgjald, 0,3% af endanlegu brunabótamáti, þegar það er lagt á.
Ár
Fasteignamat
Kaupverð
Stærð
Fermetraverð
15. ágú. 2023
19.800.000 kr.
36.700.000 kr.
43.9 m²
835.991 kr.
Byggt á upplýsingum úr Þjóðskrá Íslands frá 2006-2025