Upplýsingar
Byggt 2023
57,9 m²
2 herb.
1 baðherb.
1 svefnh.
Sérinngangur
Bílastæði
Lyfta
Lýsing
Björt og vel skipulögð 2ja herb. íbúð á 4. og efstu hæð í glæsilegri og vandaðri nýbyggingu í rólegu hverfi á Akranesi. Aðeins þrjár íbúðir á hæðinni.
EIGNIN ER TILBÚIN TIL AFHENDINGAR
*** BÓKIÐ SKOÐUN - SÝNUM SAMDÆGURS ***
Bergþóra Lárusdóttir löggiltur fasteignasali / s.8953868 / bergthora@domusnova.is
Sjöfn Hilmarsdóttir, lgf., s. 6914591 // sjofn@domusnova.is
Domusnova Borgarnesi hefur til sölu 2ja - 5 herbergja íbúðir við Asparskóga 18 á Akranesi. Þriðji og síðasti hluti byggingar er nú kominn í sölu og eru tilbúnar til afhendingar 16 glæsilegar eignir, stærðir frá 56,8 - 130,1 fm.
Asparskógar 18 er virkilega vandað og vel skipulagt 40 íbúða fjöleignarhús á 2-5 hæðum. Húsið er byggt upp með forsteyptum einingum, einangrað og klætt að utan með ál- og timburklæðningu. Þak er steinsteypt með ásoðnum tjörupappa, einangrað og með PVC dúk. Lyftur eru í tveimur opnum stigahúsum, bílastæði og sérgeymslur er í kjallara hússins sem fylgir völdum eignum hússins. Innan lóðar eru 32 bílastæði og þar af eru 14 hleðslustæði. Íbúðir skilast fullbúnar að innan með vönduðum innréttingum ásamt gólfefnum. Ljós eru innbyggð að hluta.
Ýtið hér til að skoða og sjá nánar um eignir: Heimasíða - Asparskogar.is
Ýtið hér til að skoða skilalýsingu eigna: Skilalýsing - Asparskógar 18
Húsbyggjandi: Ferrum fasteignafélag
Aðalhönnuður: Al-Hönnun ehf.
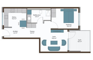
Íbúð 402 er skráð 57.9 fm.,þar af geymsla 4,6 fm. Sérinngangur er inn í eignina og svalir til norðurausturs. Innan eignar er anddyri, stofa, eldhús, eitt herbergi og baðherbergi þar sem einnig er þvottarými.
* 2ja herbergja íbúð á 4. og efstu hæð með sérinngang
* Stærð 57,9 fm., þar af 4,6 fm. geymsla
* Svalir, 8,5 fm. í norðaustur
* Sameiginleg hjóla-og vagnageymsla
* Bílastæði merkt B-19 í bílakjallara
Nánari lýsing:
Anddyri: Flísar á gólfi.
Gangur: Fataskápur frá GKS. Harðparket á gólfi.
Eldhús: Vönduð brún Nobilia innréttingar með hvítum efri skápum frá GKS innréttingum. Raftæki frá AEG, veggofn, spanhelluborð, innbyggð uppþvottavél og innbyggður kæliskápur með frysti. Vifta er frá Elica. Eldhúsvaskur og blöndunartæki er svart að lit og er frá Tengi. Harðparket á gólfi.
Stofa: Útgegnt út á 8,5 fm svalir. Harðparket á gólfi.
Svefnherbergi: Fataskápur frá GKS. Harðparket á gólfi.
Baðherbergi: Hvít innrétting með brúnni borðplötu og hvítri handlaug. Speglaskápur yfir handlaug. Upphengt salerni með hæglokandi setu, WALK IN sturta og handklæðaofn. Hitastýrð blöndunartækin frá Tengi. Aðstaða fyrir þvottavél og þurrkara. Veggflísar og gegnheilar flísar á gólfi.
Svalir: Snúa í norðaustur og eru 8,5 fm. Útiljós á svölum. Vatnsvarinn tengill.
Geymsla: Sérgeymsla eignar er í kjallara, stærð 4,6 fm. Stúkuð af með möskaveggjum frá Rými Ofnasmiðjunni ehf. Gólf er lakkað.
Bílageymsla: er í kjallara hússins. Aðkoma bifreiða um akstursramp og aðkoma gangandi frá sitthvorum enda stigahúss og um gönguhurð við ramp. Upphituð með lágu hitastigi/frostlaus. Vélræn loftræstingu og sjálfvirkt springler kerfi. Sjálfvirkur hurðaropnari er á hurð. Ein fjarstýring fylgir hverju bílastæði. LED lýsing í lofti
Sameign: Á 1. hæð er sameiginleg hjóla- og vagnageymsla. Rafmagnstöflur og rafmagnsmælar íbúða er staðsett í sameigninni.
Lóð/bílastæði: Lóðin er 3325,0 fm. Innan lóðar eru 32 bílastæði, þar af eru 14 sérmerkt f. rafmagnsbíla og 3 fyrir hreyfihamlaða. Lóðin verður afhent fullbúin í lok byggingartímans. Bílastæði við götu eru malbikuð. Tengibúnaður (ídráttarrör) vegna hleðslu rafbíla er aðgengilegt við bílastæði. Milli húss og bílastæða við götu eru hellulagðar stéttar.
Annað: Ljósleiðari er tengdur inn í húsið og endar í tengikassa hverrar íbúðar. Netdreifikerfi er í íbúðinni. Ljósbreytir við tengikassa kemur frá símafélagi íbúans.
Sorpgeymslur eru niðurfelldar á lóð (djúpgámar)
EIGNIN ER TILBÚIN TIL AFHENDINGAR
Nánari upplýsingar veita:
Bergþóra Lárusdóttir löggiltur fasteignasali / s.8953868 / bergthora@domusnova.is
Sjöfn Hilmarsdóttir, löggiltur fasteignasali / s.691 4591 / sjofn@domusnova.is
Skrifstofa Domusnova / s.527-1717 / eignir@domusnova.is
EIGNIN ER TILBÚIN TIL AFHENDINGAR
*** BÓKIÐ SKOÐUN - SÝNUM SAMDÆGURS ***
Bergþóra Lárusdóttir löggiltur fasteignasali / s.8953868 / bergthora@domusnova.is
Sjöfn Hilmarsdóttir, lgf., s. 6914591 // sjofn@domusnova.is
Domusnova Borgarnesi hefur til sölu 2ja - 5 herbergja íbúðir við Asparskóga 18 á Akranesi. Þriðji og síðasti hluti byggingar er nú kominn í sölu og eru tilbúnar til afhendingar 16 glæsilegar eignir, stærðir frá 56,8 - 130,1 fm.
Asparskógar 18 er virkilega vandað og vel skipulagt 40 íbúða fjöleignarhús á 2-5 hæðum. Húsið er byggt upp með forsteyptum einingum, einangrað og klætt að utan með ál- og timburklæðningu. Þak er steinsteypt með ásoðnum tjörupappa, einangrað og með PVC dúk. Lyftur eru í tveimur opnum stigahúsum, bílastæði og sérgeymslur er í kjallara hússins sem fylgir völdum eignum hússins. Innan lóðar eru 32 bílastæði og þar af eru 14 hleðslustæði. Íbúðir skilast fullbúnar að innan með vönduðum innréttingum ásamt gólfefnum. Ljós eru innbyggð að hluta.
Ýtið hér til að skoða og sjá nánar um eignir: Heimasíða - Asparskogar.is
Ýtið hér til að skoða skilalýsingu eigna: Skilalýsing - Asparskógar 18
Húsbyggjandi: Ferrum fasteignafélag
Aðalhönnuður: Al-Hönnun ehf.
Íbúð 402 er skráð 57.9 fm.,þar af geymsla 4,6 fm. Sérinngangur er inn í eignina og svalir til norðurausturs. Innan eignar er anddyri, stofa, eldhús, eitt herbergi og baðherbergi þar sem einnig er þvottarými.
* 2ja herbergja íbúð á 4. og efstu hæð með sérinngang
* Stærð 57,9 fm., þar af 4,6 fm. geymsla
* Svalir, 8,5 fm. í norðaustur
* Sameiginleg hjóla-og vagnageymsla
* Bílastæði merkt B-19 í bílakjallara
Nánari lýsing:
Anddyri: Flísar á gólfi.
Gangur: Fataskápur frá GKS. Harðparket á gólfi.
Eldhús: Vönduð brún Nobilia innréttingar með hvítum efri skápum frá GKS innréttingum. Raftæki frá AEG, veggofn, spanhelluborð, innbyggð uppþvottavél og innbyggður kæliskápur með frysti. Vifta er frá Elica. Eldhúsvaskur og blöndunartæki er svart að lit og er frá Tengi. Harðparket á gólfi.
Stofa: Útgegnt út á 8,5 fm svalir. Harðparket á gólfi.
Svefnherbergi: Fataskápur frá GKS. Harðparket á gólfi.
Baðherbergi: Hvít innrétting með brúnni borðplötu og hvítri handlaug. Speglaskápur yfir handlaug. Upphengt salerni með hæglokandi setu, WALK IN sturta og handklæðaofn. Hitastýrð blöndunartækin frá Tengi. Aðstaða fyrir þvottavél og þurrkara. Veggflísar og gegnheilar flísar á gólfi.
Svalir: Snúa í norðaustur og eru 8,5 fm. Útiljós á svölum. Vatnsvarinn tengill.
Geymsla: Sérgeymsla eignar er í kjallara, stærð 4,6 fm. Stúkuð af með möskaveggjum frá Rými Ofnasmiðjunni ehf. Gólf er lakkað.
Bílageymsla: er í kjallara hússins. Aðkoma bifreiða um akstursramp og aðkoma gangandi frá sitthvorum enda stigahúss og um gönguhurð við ramp. Upphituð með lágu hitastigi/frostlaus. Vélræn loftræstingu og sjálfvirkt springler kerfi. Sjálfvirkur hurðaropnari er á hurð. Ein fjarstýring fylgir hverju bílastæði. LED lýsing í lofti
Sameign: Á 1. hæð er sameiginleg hjóla- og vagnageymsla. Rafmagnstöflur og rafmagnsmælar íbúða er staðsett í sameigninni.
Lóð/bílastæði: Lóðin er 3325,0 fm. Innan lóðar eru 32 bílastæði, þar af eru 14 sérmerkt f. rafmagnsbíla og 3 fyrir hreyfihamlaða. Lóðin verður afhent fullbúin í lok byggingartímans. Bílastæði við götu eru malbikuð. Tengibúnaður (ídráttarrör) vegna hleðslu rafbíla er aðgengilegt við bílastæði. Milli húss og bílastæða við götu eru hellulagðar stéttar.
Annað: Ljósleiðari er tengdur inn í húsið og endar í tengikassa hverrar íbúðar. Netdreifikerfi er í íbúðinni. Ljósbreytir við tengikassa kemur frá símafélagi íbúans.
Sorpgeymslur eru niðurfelldar á lóð (djúpgámar)
EIGNIN ER TILBÚIN TIL AFHENDINGAR
Nánari upplýsingar veita:
Bergþóra Lárusdóttir löggiltur fasteignasali / s.8953868 / bergthora@domusnova.is
Sjöfn Hilmarsdóttir, löggiltur fasteignasali / s.691 4591 / sjofn@domusnova.is
Skrifstofa Domusnova / s.527-1717 / eignir@domusnova.is