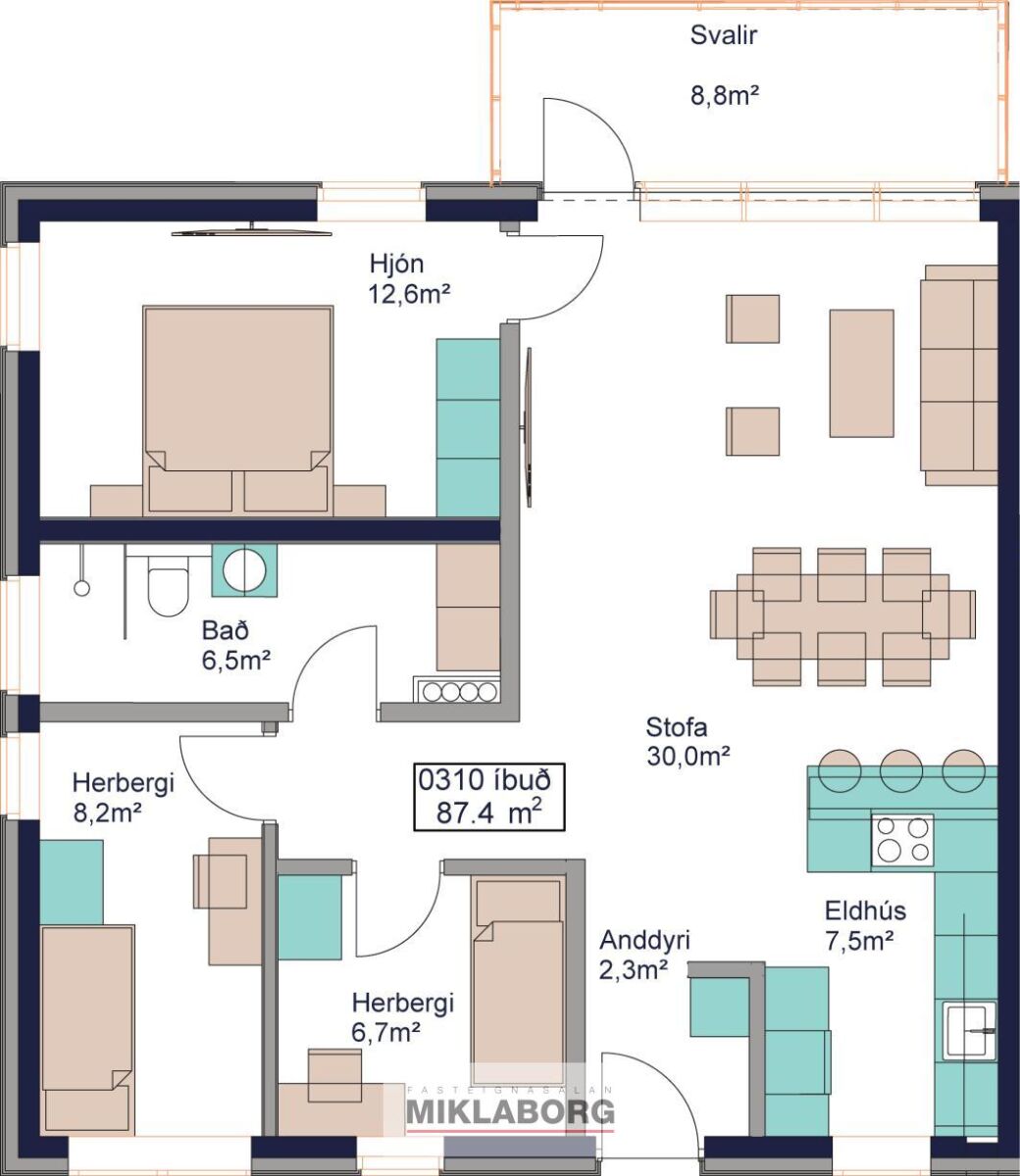
Áshamar, 221 Hafnarfjörður