Löggiltir fasteignasalar innan Félags fasteignasala:
Aðalheiður Karlsdóttir
Upplýsingar
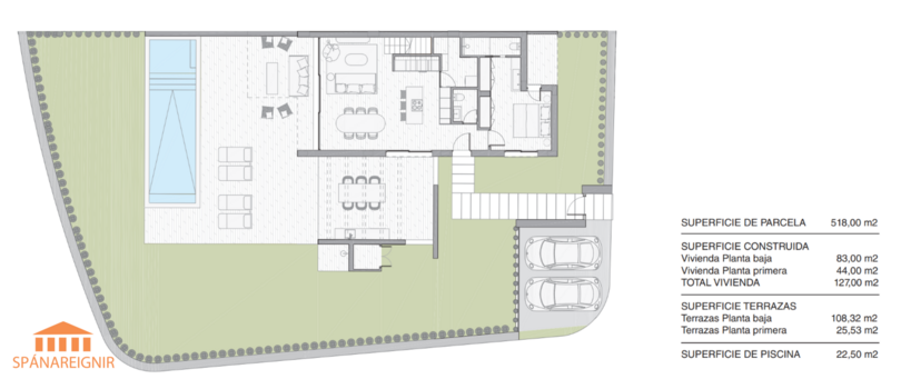
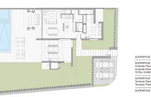
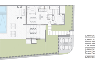
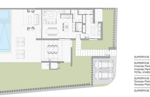
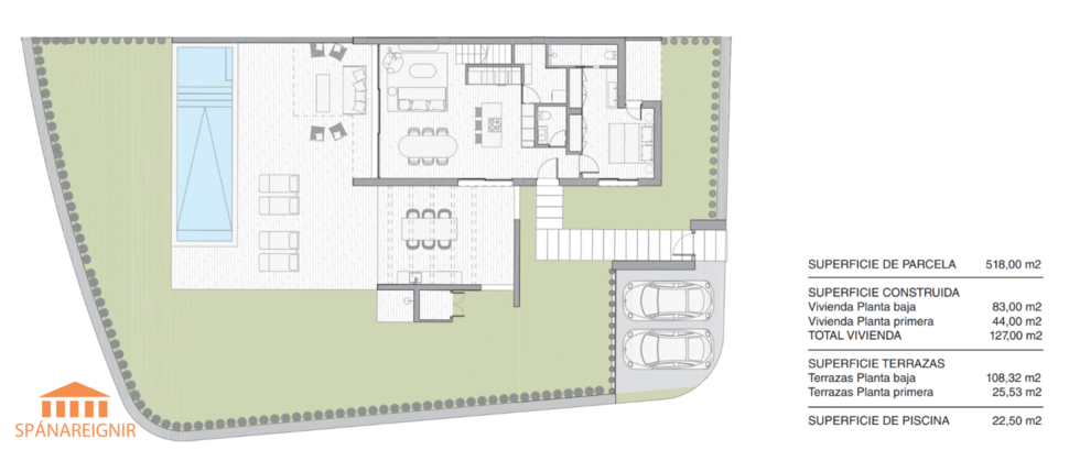
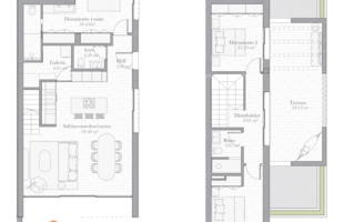
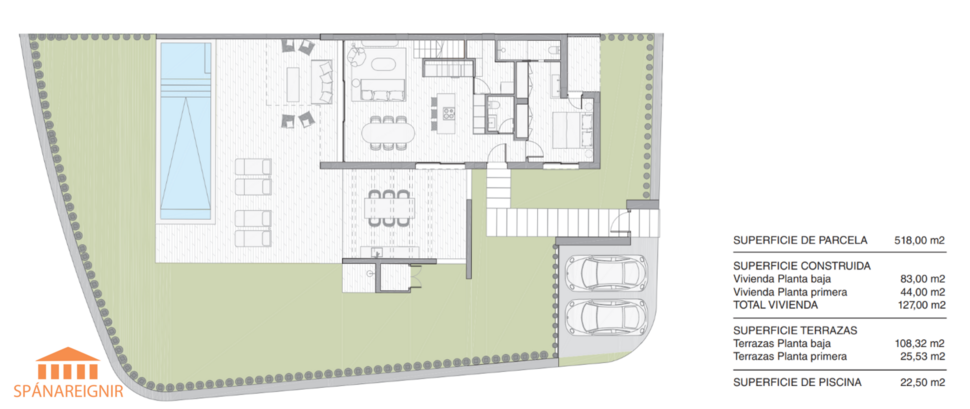
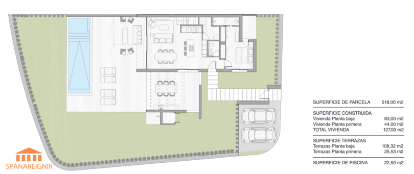
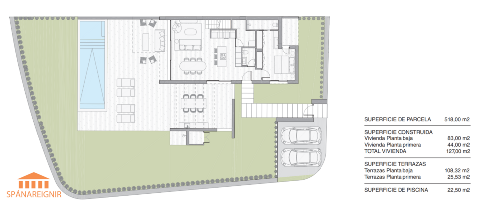
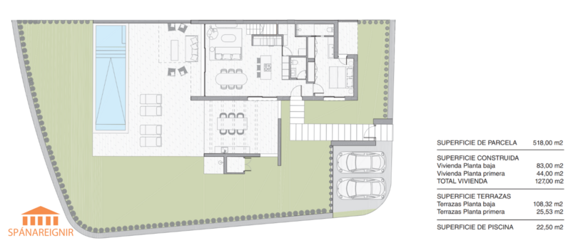
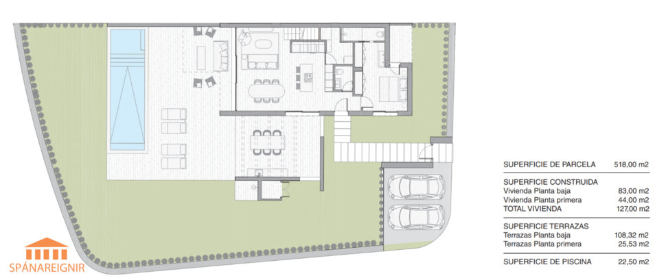
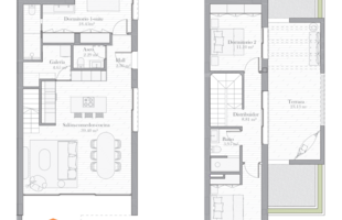
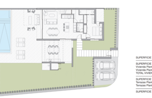
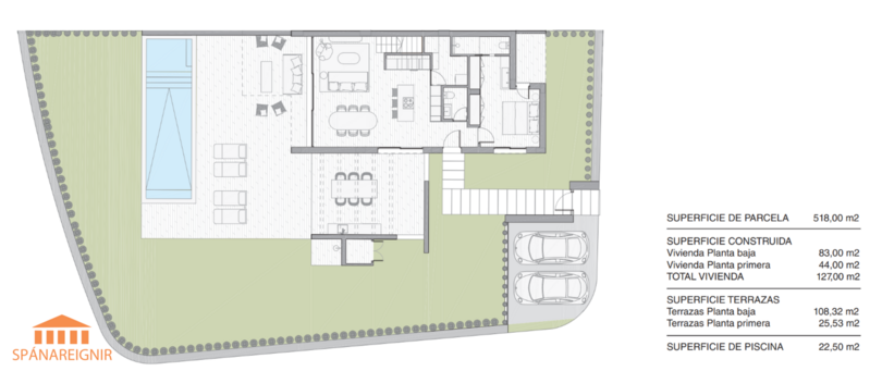
127 m²
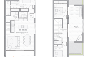
4 herb.
3 baðherb.
3 svefnh.
Þvottahús
Sérinngangur
Lýsing
SPÁNAREIGNIR KYNNIR:
GLÆSILEG PARHÚS Á BESTA STAÐ Á FRÁBÆRUM GOLFVELLI
Glæsileg og vel hönnuð ný parhús á tveimur hæðum í LIMA, nýju hverfi í örstuttu göngufæri frá klúbbhúsinu á Las Colinas golfvellinum, æfingasvæðinu og fyrsta teig. Góður einkagarður með einkasundlaug á móti suðri. Frábær staðsetning alveg við golfvöllinn. Tennis- og boltavellir í næsta nágrenni og auk þess ráðgert að reisa þar lúxushótel, litla verslana- og þjónustu miðstöð og lítinn almenningsgarð þar sem hægt er að njóta útiveru. Um 1 klst. akstur suður af Alicante.
Las Colinas golfvallasvæðið hefur verið valið besta golfsvæðið á Spáni nokkur undanfarin ár og er talið eitt besta golfvallasvæði í Evrópu og er svæðinu best lýst með orðunum "A World Apart" eða heimur út af fyrir sig.
Allar upplýsingar gefa:
Aðalheiður Karlsdóttir, löggiltur fasteignasali. adalheidur@spanareignir.is. 00354 893 2495.
Berta Hawkins, löggiltur fasteignasali, berta@spanareignir.is. 0034 615 112 869.
FRÁBÆRT SKIPULAG: á neðri hæð er svefnherbergis svíta með sérbaðherbergi og góðum fataskápum og auk þess gestasnyrting. Rúmgóð og björt stofa, eldhús opið við borðstofu. Þvottahús inn af eldhúsi. Á efri hæð eru tvö svefnherbergi til viðbótar og baðherbergi. Tvennar svalir. Útgengi út á svalir frá svefnherbergjum. Góð verönd er fyrir framan við húsið og stór sér garður með einkasundlaug og sólbaðsaðstöðu fylgir, vel tengt stofu og eldhúsi. Útieldhús og frábær útiaðstaða. Allt rými er sérlega vel skipulagt og nýtist vel.
Einstakt gróið umhverfi, með Las Colinas golfvöllinn rétt við þröskuldinn. Skemmtilegar göngu- og skokkleiðir í grónu umhverfi og ca. 10 mín akstur á Campoamor ströndina.
Umhverfið á Las Colinas er einstakt. Íbúar hafa einnig aðgang að einkastrandklúbb á Campoamor ströndinni, ca. 10 mín í ca. 10 mín akstursfjarlægð.
Örstutt göngufæri í Las Colinas klúbbhúsið, þar sem eru glæsilegir veitingastaðir og fallegt umhverfi, líkamsræktarstöð ofl.
Góðir golfvellir eru í næsta nágrenni auk Las Colinas golvallarins, t.d. La Finca, Las Ramblas, Campoamor og Villamartin.
Ca. 10-15 mín. akstur í nýju verslunarmiðstöðina La Zenia Boulevard.
Hér er um að ræða glæsilega eign á góðum stað fyrir fólk sem vill njóta lífsins, spila golf og eiga góðar stundir með fjölskyldu og vinum í fallegu umhverfi.
Verð frá 755.000 evrur (109.400.000ISK) + 10% skattur og ca. 3% kostn. við kaupin.
(gengi 1Evra=145ISK.)
Til afhendingar strax, og á næstu mánuðum.
Aðeins örfá hús í boði.
Góður kaupauki í boði. Hafið samband og kynnið ykkur málið.
EIN BESTA STAÐSETNINGIN Á LAS COLINAS GOLF SVÆÐINU.
SKOÐUNARFERÐIR:
Við aðstoðum kaupendur við að skipuleggja skoðunarferðir og tökum þátt í kostnaði vegna þeirra, ef af viðskiptum verður.
Bein kaup frá traustum og öruggum byggingaraðila.
Hægt er að fá húsin afhent fullbúin húsgögnum, gegn aukagjaldi.
Við höfum selt fasteignir á Spáni frá 2001. Tryggir þekkingu, öryggi og reynslu.
Sjá nánar um fasteignakaup á Spáni á heimasíðunni okkar: www.spanareignir.is
Kostnaður við kaupin:
10% IVA (spænskur söluskattur) af kaupverði eignarinnar. Auk þess má gera ráð fyrir ca. 3% kostnaði vegna stimpilgjalda og annars kostnaðar við kaupin, þ.e. samtals getur kostnaður vegna kaupa á fasteign á Spáni því farið upp í ca.13%.
Eiginleikar: golf, sér garður, einkasundlaug, air con, bílastæði, BBQ,
Svæði: Costa Blanca, Las Colinas,
GLÆSILEG PARHÚS Á BESTA STAÐ Á FRÁBÆRUM GOLFVELLI
Glæsileg og vel hönnuð ný parhús á tveimur hæðum í LIMA, nýju hverfi í örstuttu göngufæri frá klúbbhúsinu á Las Colinas golfvellinum, æfingasvæðinu og fyrsta teig. Góður einkagarður með einkasundlaug á móti suðri. Frábær staðsetning alveg við golfvöllinn. Tennis- og boltavellir í næsta nágrenni og auk þess ráðgert að reisa þar lúxushótel, litla verslana- og þjónustu miðstöð og lítinn almenningsgarð þar sem hægt er að njóta útiveru. Um 1 klst. akstur suður af Alicante.
Las Colinas golfvallasvæðið hefur verið valið besta golfsvæðið á Spáni nokkur undanfarin ár og er talið eitt besta golfvallasvæði í Evrópu og er svæðinu best lýst með orðunum "A World Apart" eða heimur út af fyrir sig.
Allar upplýsingar gefa:
Aðalheiður Karlsdóttir, löggiltur fasteignasali. adalheidur@spanareignir.is. 00354 893 2495.
Berta Hawkins, löggiltur fasteignasali, berta@spanareignir.is. 0034 615 112 869.
FRÁBÆRT SKIPULAG: á neðri hæð er svefnherbergis svíta með sérbaðherbergi og góðum fataskápum og auk þess gestasnyrting. Rúmgóð og björt stofa, eldhús opið við borðstofu. Þvottahús inn af eldhúsi. Á efri hæð eru tvö svefnherbergi til viðbótar og baðherbergi. Tvennar svalir. Útgengi út á svalir frá svefnherbergjum. Góð verönd er fyrir framan við húsið og stór sér garður með einkasundlaug og sólbaðsaðstöðu fylgir, vel tengt stofu og eldhúsi. Útieldhús og frábær útiaðstaða. Allt rými er sérlega vel skipulagt og nýtist vel.
Einstakt gróið umhverfi, með Las Colinas golfvöllinn rétt við þröskuldinn. Skemmtilegar göngu- og skokkleiðir í grónu umhverfi og ca. 10 mín akstur á Campoamor ströndina.
Umhverfið á Las Colinas er einstakt. Íbúar hafa einnig aðgang að einkastrandklúbb á Campoamor ströndinni, ca. 10 mín í ca. 10 mín akstursfjarlægð.
Örstutt göngufæri í Las Colinas klúbbhúsið, þar sem eru glæsilegir veitingastaðir og fallegt umhverfi, líkamsræktarstöð ofl.
Góðir golfvellir eru í næsta nágrenni auk Las Colinas golvallarins, t.d. La Finca, Las Ramblas, Campoamor og Villamartin.
Ca. 10-15 mín. akstur í nýju verslunarmiðstöðina La Zenia Boulevard.
Hér er um að ræða glæsilega eign á góðum stað fyrir fólk sem vill njóta lífsins, spila golf og eiga góðar stundir með fjölskyldu og vinum í fallegu umhverfi.
Verð frá 755.000 evrur (109.400.000ISK) + 10% skattur og ca. 3% kostn. við kaupin.
(gengi 1Evra=145ISK.)
Til afhendingar strax, og á næstu mánuðum.
Aðeins örfá hús í boði.
Góður kaupauki í boði. Hafið samband og kynnið ykkur málið.
EIN BESTA STAÐSETNINGIN Á LAS COLINAS GOLF SVÆÐINU.
SKOÐUNARFERÐIR:
Við aðstoðum kaupendur við að skipuleggja skoðunarferðir og tökum þátt í kostnaði vegna þeirra, ef af viðskiptum verður.
Bein kaup frá traustum og öruggum byggingaraðila.
Hægt er að fá húsin afhent fullbúin húsgögnum, gegn aukagjaldi.
Við höfum selt fasteignir á Spáni frá 2001. Tryggir þekkingu, öryggi og reynslu.
Sjá nánar um fasteignakaup á Spáni á heimasíðunni okkar: www.spanareignir.is
Kostnaður við kaupin:
10% IVA (spænskur söluskattur) af kaupverði eignarinnar. Auk þess má gera ráð fyrir ca. 3% kostnaði vegna stimpilgjalda og annars kostnaðar við kaupin, þ.e. samtals getur kostnaður vegna kaupa á fasteign á Spáni því farið upp í ca.13%.
Eiginleikar: golf, sér garður, einkasundlaug, air con, bílastæði, BBQ,
Svæði: Costa Blanca, Las Colinas,