Upplýsingar
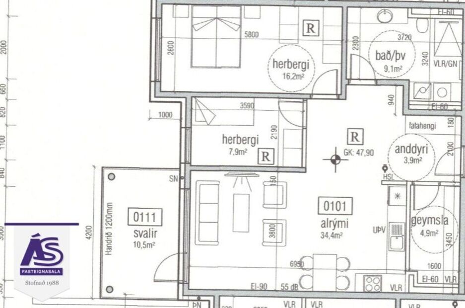
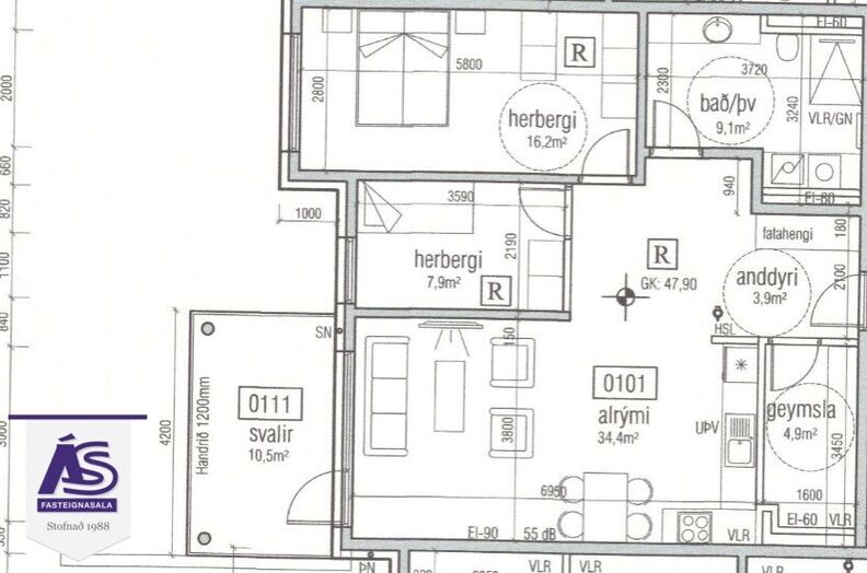
88 m²
3 herb.
1 baðherb.
2 svefnh.
Lyfta
Lýsing
Nýjar og glæsilegar íbúðir í 10 íbúða lyftufjölbýli á útsýnislóð við Lautargötu 5 í Urriðaholti, 210 Garðabæ.
Byggingin er einstaklega vel staðsett í enda á botnlangagötu með útsýni yfir friðað svæði, Vífilstaðarhraun.
Stærð: 88,0 - 139,7 fm.
Herbergi: 3ja - 4ra
Verð: 81,9 - 142,9 mkr.
Smelltu hér til að skoða sölusíðu verkefnisins.
Smelltu hér til að skoða skilalýsingu verktakans.
- Húsið skilast fullbúið að innan sem og að utan.
- Loftskiptakerfi er í öllum íbúðum.
- Íbúðirnar eru afhentar með flísum á gólfum baðherbergja og þvottahúsa (þar sem við á). Önnur gólf eru afhent með (Light Cracked Oak) 8 mm harðparketi og undirleggi af viðurkenndri gerð.
- Innréttingar eru frá HTH.
- Borðplötur í eldhúsi og baðherbergi eru úr kvarts stein (Calacatta Gold) frá HQ steinsmíði.
- Raftæki í eldhúsi eru frá Ormsson, spanhelluborð, bakaraofn, combi-ofn, uppþvottavél og ískápur eru af gerðinni AEG en vifta Elica.
- Innbyggður ísskápur með frysti og innbyggð uppþvottavél fylgja með öllum íbúðum.
- Baðherbergi er með upphengdu salerni, handlaug úr hvítu postulíni með svörtum blöndunartækjum, handklæðaofni og walk-in sturtu með innbyggðum blöndnartækjum.
- Fataskápar í öllum svefnherbergjum og forstofu.
- Aukin lofthæð er í íbúðunum.
- Allir veggir eru sandsparslaðir, grunnaðir og málaðir í ljósum lit.
- Á baðherbergjum eru veggir flísalagðir með 60 x 60 cm (Betonico Grey). Þeir veggir sem bera flísar eru flísalagðir upp í loft.
- 15 sameiginleg bílastæði.
- Burðarvirki hússins er staðsteypt.
- Útveggir einangraðir að utan og klæddir með álklæðningu frá Áltak.
- Gluggar eru úr timbri, málaðir að innan en álklæddir að utan.
- Lóð skilast fullfrágengin með hellum, gróðri og lýsingu.
- Snjóbræðsla er á göngusvæði niður með húsinu, á göngustíg að aðal inngangi, út í sorptunnu skýli og einnig í stæði fyrir hreyfihamlaða.
- Við bílastæðin eru ídráttarrör í jörðu fyrir rafmagn í rafhleðslustöðvar.
- Geymslur og sameiginleg hjóla- og vagnageymsla á 1. hæð.
Nánari upplýsingar má finna í skilalýsingu verktaka.
Verktaki verkefnisins er traustur verktaki: NR 5 ehf.
Um er að ræða vandaðar og fallegar íbúðir á eftirsóttum stað í Urriðaholti, Garðabæ, þar sem stutt er í alla helstu þjónustu.
Fáðu nánari upplýsingar og bókaðu skoðun hjá sölumönnum Ás fasteignasölu:
Arnór Daði Eiríksson löggiltur fasteignasali s. 777-0939 / arnor@as.is
Stefán Rafn Sigurmannsson löggiltur fasteignasali s. 655-7000 / stefan@as.is
Aron Freyr Eiríksson löggiltur fasteignasali s. 772-7376 / aron@as.is
Svala Haraldsdóttir löggiltur fasteignasali s. 820-9699 / svala@as.is
Eiríkur Svanur Sigfússon lgfs. s. 862-3377 / eirikur@as.is
Ás fasteignasala er rótgróið fyrirtæki sem hefur veitt alla almenna þjónustu í fasteignaviðskiptum frá árinu 1988.
www.facebook.com/asfasteignasala
www.instagram.com/as_fasteignasala
www.as.is
Byggingin er einstaklega vel staðsett í enda á botnlangagötu með útsýni yfir friðað svæði, Vífilstaðarhraun.
Stærð: 88,0 - 139,7 fm.
Herbergi: 3ja - 4ra
Verð: 81,9 - 142,9 mkr.
Smelltu hér til að skoða sölusíðu verkefnisins.
Smelltu hér til að skoða skilalýsingu verktakans.
- Húsið skilast fullbúið að innan sem og að utan.
- Loftskiptakerfi er í öllum íbúðum.
- Íbúðirnar eru afhentar með flísum á gólfum baðherbergja og þvottahúsa (þar sem við á). Önnur gólf eru afhent með (Light Cracked Oak) 8 mm harðparketi og undirleggi af viðurkenndri gerð.
- Innréttingar eru frá HTH.
- Borðplötur í eldhúsi og baðherbergi eru úr kvarts stein (Calacatta Gold) frá HQ steinsmíði.
- Raftæki í eldhúsi eru frá Ormsson, spanhelluborð, bakaraofn, combi-ofn, uppþvottavél og ískápur eru af gerðinni AEG en vifta Elica.
- Innbyggður ísskápur með frysti og innbyggð uppþvottavél fylgja með öllum íbúðum.
- Baðherbergi er með upphengdu salerni, handlaug úr hvítu postulíni með svörtum blöndunartækjum, handklæðaofni og walk-in sturtu með innbyggðum blöndnartækjum.
- Fataskápar í öllum svefnherbergjum og forstofu.
- Aukin lofthæð er í íbúðunum.
- Allir veggir eru sandsparslaðir, grunnaðir og málaðir í ljósum lit.
- Á baðherbergjum eru veggir flísalagðir með 60 x 60 cm (Betonico Grey). Þeir veggir sem bera flísar eru flísalagðir upp í loft.
- 15 sameiginleg bílastæði.
- Burðarvirki hússins er staðsteypt.
- Útveggir einangraðir að utan og klæddir með álklæðningu frá Áltak.
- Gluggar eru úr timbri, málaðir að innan en álklæddir að utan.
- Lóð skilast fullfrágengin með hellum, gróðri og lýsingu.
- Snjóbræðsla er á göngusvæði niður með húsinu, á göngustíg að aðal inngangi, út í sorptunnu skýli og einnig í stæði fyrir hreyfihamlaða.
- Við bílastæðin eru ídráttarrör í jörðu fyrir rafmagn í rafhleðslustöðvar.
- Geymslur og sameiginleg hjóla- og vagnageymsla á 1. hæð.
Nánari upplýsingar má finna í skilalýsingu verktaka.
Verktaki verkefnisins er traustur verktaki: NR 5 ehf.
Um er að ræða vandaðar og fallegar íbúðir á eftirsóttum stað í Urriðaholti, Garðabæ, þar sem stutt er í alla helstu þjónustu.
Fáðu nánari upplýsingar og bókaðu skoðun hjá sölumönnum Ás fasteignasölu:
Arnór Daði Eiríksson löggiltur fasteignasali s. 777-0939 / arnor@as.is
Stefán Rafn Sigurmannsson löggiltur fasteignasali s. 655-7000 / stefan@as.is
Aron Freyr Eiríksson löggiltur fasteignasali s. 772-7376 / aron@as.is
Svala Haraldsdóttir löggiltur fasteignasali s. 820-9699 / svala@as.is
Eiríkur Svanur Sigfússon lgfs. s. 862-3377 / eirikur@as.is
Ás fasteignasala er rótgróið fyrirtæki sem hefur veitt alla almenna þjónustu í fasteignaviðskiptum frá árinu 1988.
www.facebook.com/asfasteignasala
www.instagram.com/as_fasteignasala
www.as.is