Upplýsingar
Verðsaga
Byggt 2018
88,2 m²
3 herb.
2 baðherb.
2 svefnh.
Þvottahús
Lyfta
Lýsing
**EIGNIN GETUR AFHENDST FLJÓTLEGA TÓM EÐA MEÐ LEIGUSAMNING** - SÆKJA SÖLUYFIRLIT HÉR
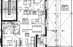
TORG FASTEIGNASALA KYNNIR Í SÖLU: Einstaklega falleg og björt, þriggja herbergja íbúð á 2. hæð í hjarta miðborgarinnar. Íbúðin er í göngufjarlægð í í alla þá þjónustu og afþreyingu sem miðborgin hefur upp á að bjóða. Eignin skiptist í anddyrisgang, stofu, borðstofu og eldhús í alrými, svefnherbergi með sér baðherbergi, barnaherbergi, gestasalerni, þvottahús, 5,9 fm svalir og 54,0 fm þakgarð sem gengið er út á frá stofu og geymslu í kjallara. Íbúum Hafnartorgs stendur til boða að leigja bílastæðakort samkvæmt verðskrá. Allar nánari upplýsingar veitir Matthildur Sunna Þorláksdóttir, lögfræðingur og löggiltur fasteignasali, í síma 690-4966 eða matthildur@fstorg.is
Nánari lýsing:
Tvö rúmgóð svefnherbergi með skápum, annað er með baðherbergi inn af. Innrétting í eldhúsi er háglans með matta, grynnri efri skápa til að brjóta upp útlitið. Borðplata og klæðning er úr Meganite Carrara efni með eldhúsvaski úr sama efni sem felldur er í borðplötuna. Eldhústæki eru frá Simens og gufugleypir frá Elica. Ljúflokun er á skúffum og skápum. Blöndunartæki er frá Vola. Tvö baðherbergi eru í íbúð, þau eru flísalögð með flísum með marmaramynstri, bæði gólf og veggir. Innrétting er frá Noblessa, með Meganite borðplötu og innbyggðum vaski úr sama efni. Speglalýsing á baðherbergjum er Mini Glo Ball frá Flos. Hreinlætistæki eru frá Vola. Salerni eru upphengd með innbyggðum vatnskassa. Þvottaherbergi innan íbúðar. 54 fm þaksvalir fylgjan íbúð ásamt 5,9 fm svölum með skjóli frá efri svölum. Gólfefni eru parket fyrir utan votrými, þar eru flísar. Íbúum Hafnartorgs stendur til boða að leigja bílastæðakort samkvæmt verðskrá.
Allar nánari upplýsingar veitir Matthildur Sunna Þorláksdóttir, lögfræðingur og löggiltur fasteignasali, í síma 690-4966 eða matthildur@fstorg.is
Forsendur söluyfirlits:
Söluyfirlit er samið af fasteignasala í samræmi við ákvæði laga nr. 70/2015. Þær upplýsingar sem fram koma í söluyfirliti þessu eru sóttar í opinberar skrár, til seljanda sjálfs og eftir atvikum til húsfélags. Seljandi veitir upplýsingar um eign í samræmi við upplýsingaskyldu laga um fasteignakaup nr. 40/2002. Fasteignasali sannreynir að þær upplýsingar séu réttar með sjónskoðun á eigninni. Fasteignasali getur ekki fullyrt um ástand og eiginleika þeirra hluta fasteigna sem ekki eru aðgengilegir og sjást ekki berum augum, t.d. lagnir, dren, skólp og þak.
Gjöld sem kaupandi þarf að standa straum af vegna kaupanna:
Stimpilgjald af kaupsamningi sem er hlutfall af fasteignamati. Stimpilgjald er 0,8% fyrir einstaklinga (0,4% við fyrstu kaup m.v. að lágmarki 50% eignarhlut) og 1,6% fyrir lögaðila.Þinglýsingargjald hvers skjals er kr. 2.700,- .Lántökugjald lánastofnunar skv. gjaldskrá viðkomandi lánveitanda.Umsýsluþóknun fasteignasölu skv. gjaldskrá. Ef um nýbyggingu er að ræða greiðir kaupandi skipulagsgjald, 0,3% af brunabótamati, þegar það er lagt á.
TORG fasteignasala bendir fasteignakaupendum á ríka skoðunarskyldu kaupenda sem kveðið er á í lögum um fasteignakaup nr.40/2002. Skorað er á kaupendur að kynna sér vandlega ástand fasteigna og nýta til þess aðstoð sérfræðinga. Sömuleiðis er bent á upplýsingaskyldu seljanda samanber 26.gr. Laga nr.40/2002 um fasteignakaup og 25.gr. laga nr.26/1994 um fjöleignarhús. Seljanda er bent á að kynna sér tilvitnaðar lagagreinar.
eignarhús.
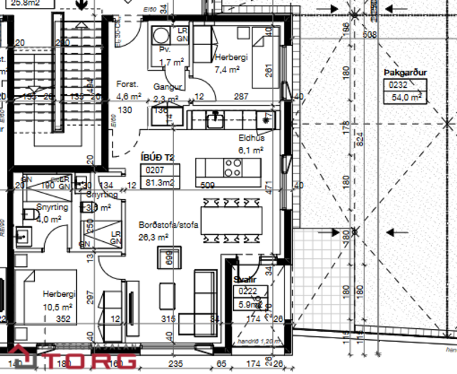
TORG FASTEIGNASALA KYNNIR Í SÖLU: Einstaklega falleg og björt, þriggja herbergja íbúð á 2. hæð í hjarta miðborgarinnar. Íbúðin er í göngufjarlægð í í alla þá þjónustu og afþreyingu sem miðborgin hefur upp á að bjóða. Eignin skiptist í anddyrisgang, stofu, borðstofu og eldhús í alrými, svefnherbergi með sér baðherbergi, barnaherbergi, gestasalerni, þvottahús, 5,9 fm svalir og 54,0 fm þakgarð sem gengið er út á frá stofu og geymslu í kjallara. Íbúum Hafnartorgs stendur til boða að leigja bílastæðakort samkvæmt verðskrá. Allar nánari upplýsingar veitir Matthildur Sunna Þorláksdóttir, lögfræðingur og löggiltur fasteignasali, í síma 690-4966 eða matthildur@fstorg.is
Nánari lýsing:
Tvö rúmgóð svefnherbergi með skápum, annað er með baðherbergi inn af. Innrétting í eldhúsi er háglans með matta, grynnri efri skápa til að brjóta upp útlitið. Borðplata og klæðning er úr Meganite Carrara efni með eldhúsvaski úr sama efni sem felldur er í borðplötuna. Eldhústæki eru frá Simens og gufugleypir frá Elica. Ljúflokun er á skúffum og skápum. Blöndunartæki er frá Vola. Tvö baðherbergi eru í íbúð, þau eru flísalögð með flísum með marmaramynstri, bæði gólf og veggir. Innrétting er frá Noblessa, með Meganite borðplötu og innbyggðum vaski úr sama efni. Speglalýsing á baðherbergjum er Mini Glo Ball frá Flos. Hreinlætistæki eru frá Vola. Salerni eru upphengd með innbyggðum vatnskassa. Þvottaherbergi innan íbúðar. 54 fm þaksvalir fylgjan íbúð ásamt 5,9 fm svölum með skjóli frá efri svölum. Gólfefni eru parket fyrir utan votrými, þar eru flísar. Íbúum Hafnartorgs stendur til boða að leigja bílastæðakort samkvæmt verðskrá.
Allar nánari upplýsingar veitir Matthildur Sunna Þorláksdóttir, lögfræðingur og löggiltur fasteignasali, í síma 690-4966 eða matthildur@fstorg.is
Forsendur söluyfirlits:
Söluyfirlit er samið af fasteignasala í samræmi við ákvæði laga nr. 70/2015. Þær upplýsingar sem fram koma í söluyfirliti þessu eru sóttar í opinberar skrár, til seljanda sjálfs og eftir atvikum til húsfélags. Seljandi veitir upplýsingar um eign í samræmi við upplýsingaskyldu laga um fasteignakaup nr. 40/2002. Fasteignasali sannreynir að þær upplýsingar séu réttar með sjónskoðun á eigninni. Fasteignasali getur ekki fullyrt um ástand og eiginleika þeirra hluta fasteigna sem ekki eru aðgengilegir og sjást ekki berum augum, t.d. lagnir, dren, skólp og þak.
Gjöld sem kaupandi þarf að standa straum af vegna kaupanna:
Stimpilgjald af kaupsamningi sem er hlutfall af fasteignamati. Stimpilgjald er 0,8% fyrir einstaklinga (0,4% við fyrstu kaup m.v. að lágmarki 50% eignarhlut) og 1,6% fyrir lögaðila.Þinglýsingargjald hvers skjals er kr. 2.700,- .Lántökugjald lánastofnunar skv. gjaldskrá viðkomandi lánveitanda.Umsýsluþóknun fasteignasölu skv. gjaldskrá. Ef um nýbyggingu er að ræða greiðir kaupandi skipulagsgjald, 0,3% af brunabótamati, þegar það er lagt á.
TORG fasteignasala bendir fasteignakaupendum á ríka skoðunarskyldu kaupenda sem kveðið er á í lögum um fasteignakaup nr.40/2002. Skorað er á kaupendur að kynna sér vandlega ástand fasteigna og nýta til þess aðstoð sérfræðinga. Sömuleiðis er bent á upplýsingaskyldu seljanda samanber 26.gr. Laga nr.40/2002 um fasteignakaup og 25.gr. laga nr.26/1994 um fjöleignarhús. Seljanda er bent á að kynna sér tilvitnaðar lagagreinar.
eignarhús.
Ár
Fasteignamat
Kaupverð
Stærð
Fermetraverð
5. ágú. 2021
59.800.000 kr.
79.300.000 kr.
88.2 m²
899.093 kr.
Byggt á upplýsingum úr Þjóðskrá Íslands frá 2006-2026