Upplýsingar
Verðsaga
Byggt 1978
316,4 m²
9 herb.
3 baðherb.
7 svefnh.
Þvottahús
Sérinngangur
Lýsing
Hraunhamar fasteignasala og Helgi Jón Harðarson sölustjóri s. 893-2233 helgi@hraunhamar.is kynna: Hjallabraut 70, raðhús á þessum frábæra stað í Norðurbæ Hafnarfjarðar. Húsið er skráð 316,4 fm, þar af innbyggður bílskúr. Frábær staðsetning og stutt í alla helstu þjónustu svo sem skóla og leikskóla. Rúmgóð 4ra herbergja íbúð með sérinngangi er á neðri hæð eignarinnar. Seljendur skoða skipti á minni eign. Ath: Hagstætt fermetra verð !
Lýsing eignar:
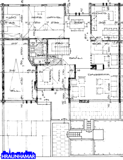
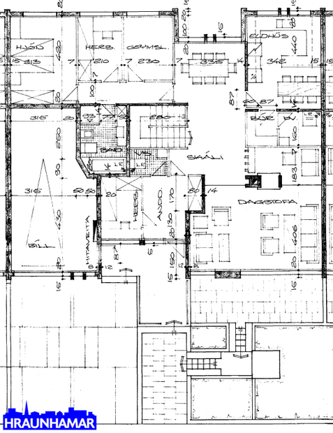
Efri hæð: Forstofa, forstofuherbergi, gestasalerni, gangur/hol, borðstofa, stofa, eldhús, tvö barnaherbergi, hjónaherbergi, fataherbergi, baðherbergi, þvottaaðstaða inn á baðherbergi, eldhús og bílskúr.
Neðri hæð: Forstofa, þvottaaðstaða, gangur, baðherbergi, hol, borðstofa, stofa, stór geymsla, hjónaherbergi, eldhús og tvö barnaherbergi.
Nánari lýsing eignarinnar:
Efri hæð:
Forstofa góðir fataskápar á veggjum, forstofu herbergi, gestasalerni, hol/ gangur, björt falleg stofa með arni, borðstofa/sjónvarpsaðstaða, stórt opið eldhús með góðum tækjum, tvö barnaherbergi sem hefur verið breytt í eitt stórt herbergi í dag, rúmgott hjónaherbergi með fataherbergi inn af, snyrtilegt flísalagt baðherbergi með góðri þvottaaðstöðu. Bílskúr er góður.
Neðri hæð:
Gengið er niður tröppur af efri hæðinni, einnig er góður sérinngangur inn í neðri hæðina þar sem er forstofa, rúmgóð þvottaherbergisaðstaða, gangur/hol, flísalögð góð stofa, stórt gluggalaust herbergi sem er notað sem geymsla í dag, bjart og gott hjónaherbergi, stórt herbergi og annað minna herbergi,snyrtilegt eldhús, borðkrókur, þaðan er útgengt í bakgarð hússins. Neðri hæðin er í dag stór 4-5 herberbergja íbúð með sérinngangi, góð lofthæð og góðir gluggar.
Samkvæmt uppl. seljenda þá er eignin nokkuð endurnýjuð á sl. árum:
Hiti í gólfi á baðherbergi efri hæðar.
Skipt um járn á þaki 2018.
Ný gólfefni á efri hæðinni þ.e. alrými,hjónaherbergi og einu barnaherbergi 2021
Skipt um rafmagnstengla-og rofa í öllu húsinu 2021.
Loftræting þrifin og nýr mótor settur 2024.
Ný dæla á baðherbergi neðri hæðar 2024.
Búið að sameina tvö herbergi í eitt á efri hæð, auðvelt að breyta í tvö aftur.
Háaloft/geymsla, uppgengt (lúga) frá bílskúr.
Góð aðstaða er fyrir framan húsið en þar er búið að setja upp pall og skjólvegg í suður, snýr afar vel gagnvart sólu. Geymsla undir tröppum. Úti
flísar eru að hluta til skemmdar, en til eru auka flísar ef með þarf.
Þetta er stórt fjölskylduhús/raðhús(í dag tvær rúmgóðar íbúðir) en auðvelt að breyta í fyrra horf samkvæt teikningum. Hús sem vert er að skoða frekar.
Fasteignamat næsta árs 2026 er 162.900.000.-
Nánari uppl. gefur Helgi Jón Harðarson sölustjóti s. 893-2233 helgi@hraunhamar.is og
Freyja M Sigurðardóttir lgf. s. 862-4800 freyja@hraunhamar.is
Skoðunarskylda:
Í lögum um fasteignakaup nr. 40/2002 er kveðið á um ríka skoðunarskyldu kaupenda á fasteignum. Hraunhamar fasteignasala vill benda væntanlegum kaupendum á að kynna sér vel ástand fasteigna fyrir kauptilboðsgerð og ef þurfa þykir að leita til sérfræðinga fyrir nánari ástandsskoðun.
Gjöld sem kaupandi þarf að standa straum af vegna kaupanna:
1. Stimpilgjald af kaupsamningi, fyrstu kaup (0,4%), almenn kaup (0,8%), lögaðilar (1,6%) af heildarfasteignamati.
2. Þinglýsingargjald af kaupsamningi, veðskuldabréfi, mögulegu veðleyfi o.fl. – kr. 2.700 kr. af hverju skjali.
3. Lántökugjald lánastofnunar er skv. verðskrá viðkomandi lánastofnunar.
4. Umsýslugjald til fasteignasölu skv. þjónustusamningi
Hraunhamar er elsta fasteignasala Hafnarfjarðar, stofnuð 1983.
Hraunhamar, í fararbroddi í rúm 40 ár. – Hraunhamar.is
Smelltu hér til að fá frítt söluverðmat.
Lýsing eignar:
Efri hæð: Forstofa, forstofuherbergi, gestasalerni, gangur/hol, borðstofa, stofa, eldhús, tvö barnaherbergi, hjónaherbergi, fataherbergi, baðherbergi, þvottaaðstaða inn á baðherbergi, eldhús og bílskúr.
Neðri hæð: Forstofa, þvottaaðstaða, gangur, baðherbergi, hol, borðstofa, stofa, stór geymsla, hjónaherbergi, eldhús og tvö barnaherbergi.
Nánari lýsing eignarinnar:
Efri hæð:
Forstofa góðir fataskápar á veggjum, forstofu herbergi, gestasalerni, hol/ gangur, björt falleg stofa með arni, borðstofa/sjónvarpsaðstaða, stórt opið eldhús með góðum tækjum, tvö barnaherbergi sem hefur verið breytt í eitt stórt herbergi í dag, rúmgott hjónaherbergi með fataherbergi inn af, snyrtilegt flísalagt baðherbergi með góðri þvottaaðstöðu. Bílskúr er góður.
Neðri hæð:
Gengið er niður tröppur af efri hæðinni, einnig er góður sérinngangur inn í neðri hæðina þar sem er forstofa, rúmgóð þvottaherbergisaðstaða, gangur/hol, flísalögð góð stofa, stórt gluggalaust herbergi sem er notað sem geymsla í dag, bjart og gott hjónaherbergi, stórt herbergi og annað minna herbergi,snyrtilegt eldhús, borðkrókur, þaðan er útgengt í bakgarð hússins. Neðri hæðin er í dag stór 4-5 herberbergja íbúð með sérinngangi, góð lofthæð og góðir gluggar.
Samkvæmt uppl. seljenda þá er eignin nokkuð endurnýjuð á sl. árum:
Hiti í gólfi á baðherbergi efri hæðar.
Skipt um járn á þaki 2018.
Ný gólfefni á efri hæðinni þ.e. alrými,hjónaherbergi og einu barnaherbergi 2021
Skipt um rafmagnstengla-og rofa í öllu húsinu 2021.
Loftræting þrifin og nýr mótor settur 2024.
Ný dæla á baðherbergi neðri hæðar 2024.
Búið að sameina tvö herbergi í eitt á efri hæð, auðvelt að breyta í tvö aftur.
Háaloft/geymsla, uppgengt (lúga) frá bílskúr.
Góð aðstaða er fyrir framan húsið en þar er búið að setja upp pall og skjólvegg í suður, snýr afar vel gagnvart sólu. Geymsla undir tröppum. Úti
flísar eru að hluta til skemmdar, en til eru auka flísar ef með þarf.
Þetta er stórt fjölskylduhús/raðhús(í dag tvær rúmgóðar íbúðir) en auðvelt að breyta í fyrra horf samkvæt teikningum. Hús sem vert er að skoða frekar.
Fasteignamat næsta árs 2026 er 162.900.000.-
Nánari uppl. gefur Helgi Jón Harðarson sölustjóti s. 893-2233 helgi@hraunhamar.is og
Freyja M Sigurðardóttir lgf. s. 862-4800 freyja@hraunhamar.is
Skoðunarskylda:
Í lögum um fasteignakaup nr. 40/2002 er kveðið á um ríka skoðunarskyldu kaupenda á fasteignum. Hraunhamar fasteignasala vill benda væntanlegum kaupendum á að kynna sér vel ástand fasteigna fyrir kauptilboðsgerð og ef þurfa þykir að leita til sérfræðinga fyrir nánari ástandsskoðun.
Gjöld sem kaupandi þarf að standa straum af vegna kaupanna:
1. Stimpilgjald af kaupsamningi, fyrstu kaup (0,4%), almenn kaup (0,8%), lögaðilar (1,6%) af heildarfasteignamati.
2. Þinglýsingargjald af kaupsamningi, veðskuldabréfi, mögulegu veðleyfi o.fl. – kr. 2.700 kr. af hverju skjali.
3. Lántökugjald lánastofnunar er skv. verðskrá viðkomandi lánastofnunar.
4. Umsýslugjald til fasteignasölu skv. þjónustusamningi
Hraunhamar er elsta fasteignasala Hafnarfjarðar, stofnuð 1983.
Hraunhamar, í fararbroddi í rúm 40 ár. – Hraunhamar.is
Smelltu hér til að fá frítt söluverðmat.
Ár
Fasteignamat
Kaupverð
Stærð
Fermetraverð
21. sep. 2021
94.350.000 kr.
104.100.000 kr.
316.4 m²
329.014 kr.
22. mar. 2018
72.750.000 kr.
76.500.000 kr.
316.4 m²
241.783 kr.
22. apr. 2015
55.500.000 kr.
54.000.000 kr.
316.4 m²
170.670 kr.
Byggt á upplýsingum úr Þjóðskrá Íslands frá 2006-2025