Upplýsingar
Verðsaga
Byggt 2025
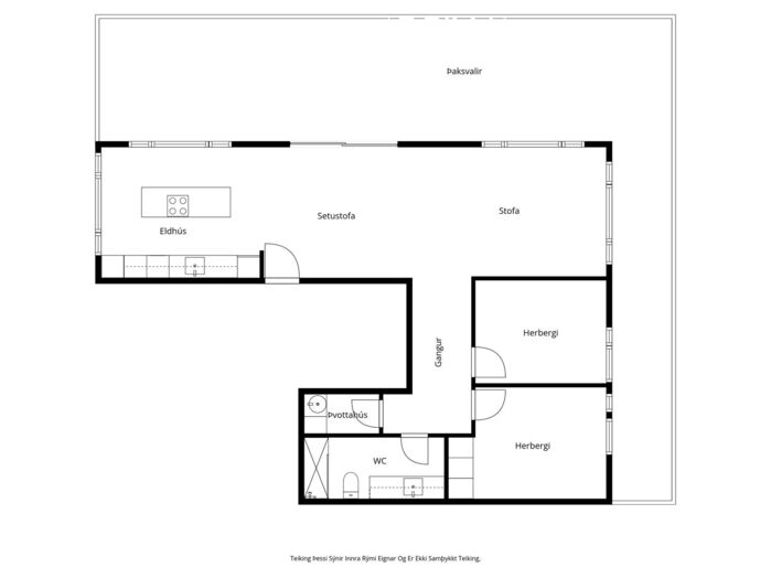
105,4 m²
3 herb.
1 baðherb.
2 svefnh.
Þvottahús
Sameiginl. inngangur
Bílastæði
Lyfta
Lýsing
Croisette - Knight Frank kynnir eignina Skólatröð 4, 200 Kópavogur.
Virkilega falleg og vönduð eign með stórkostlegu útsýni.
Allur frágangur til fyrirmyndar.
Eignin er tilbúin með gólfefni, gardínum og öllum eldhústækjum. Afhending við kaupsamning.
Tvö bílastæði á besta stað í bílakjallara.
Íbúðin er 94 fm. Tvö svefnherbergi. Sérgeymsla í sameign er skráð 11,4 fm.
Stórar þaksvalir c.a. 95 fm eru meðfram aðalrými og niður með svefnherbergjum með útsýni í allar áttir.
Nánari lýsing:
Íbúðin er ljósu harðparketi og vönduðum innréttingum frá Selós, steinn á borðum.
Flísalögð baðherbergi og þvottahús með I Cocci Cenere 60x120cm frá Ebson bæði gólf og veggir að hluta.
Gólfhiti er í íbúðinni og jafnvægisstillt loftræsikerfi með varmaendurvinnslu. Hefðbundið útsogskerfi er í geymslum.
Loftdúkur í stofu og eldhúsi með innbyggðri lýsingu. Frábær hljóðvist.
Eldhúsinnréttingar eru sérsmíðaðar frá Selós. Skápar eru úr vönduðu stitsterku melamin efni.
Vönduð heimilistæki eru í íbúðinni frá Miele. Kæli-/frystiskápur og uppþvottavél eru innbyggð í innréttinguna og spanhelluborð með viftu.
Dekton – Rem steinborðplötur eru í eldhúsi og Silestone – Nolita steinborðplötur á baði.
Gólfhiti er í gólfi baðherbergis auk handklæðaofns.
Stórar þaksvalir eru meðfram aðlrými með útsýni í allar áttir, yfir Kópavog, út á sjó, Bessastaði, Bláfjöll og fl. Tvö Bílastæði í bílakjallara fylgja ibúðinni.
Sameiginlegur garður: Sólríkur og skjólgóður inngarður með leiktækjum, gróðri og aðstöðu fyrir iðandi mannlíf.
Fágun og gæði voru höfð að leiðarljósi við hönnun íbúðarinnar, innan íbúðar er vélræn loftskipti sem tryggja aukin loftgæði.
Íbúðin og húsið allt er Svansvottað.
Nánari upplýsingar veita:
Styrmir Bjartur Karlsson Framkvæmdastjóri og lfs., í síma 899 9090, tölvupóstur styrmir@croisette.is
Um skoðunar- og aðgæsluskyldu:
Í lögum um fasteignakaup nr. 40/2002 er kveðið á um ríka skoðunarskyldu kaupenda á fasteignum. Croisette - Knight Frank fasteignasala bendir væntanlegum kaupendum á að kynna sér vel ástand fasteigna við skoðun og fyrir tilboðsgerð og ef þurfa þykir að leita til sérfræðinga um nánari ástandsskoðun.
Forsendur söluyfirlits:
Söluyfirlit er samið af fasteignasala í samræmi við ákvæði laga nr. 70/2015. Þær upplýsingar sem fram koma í söluyfirliti þessu eru sóttar í opinberar skrár, til seljanda sjálfs og eftir atvikum til húsfélags. Seljandi veitir upplýsingar um eign í samræmi við upplýsingaskyldu laga um fasteignakaup nr. 40/2002. Fasteignasali sannreynir að þær upplýsingar séu réttar með sjónskoðun á eigninni. Fasteignasali getur ekki fullyrt um ástand og eiginleika þeirra hluta fasteigna sem ekki eru aðgengilegir og sjást ekki berum augum, t.d. lagnir, dren, skólp og þak.
Gjöld sem kaupandi þarf að standa straum af vegna kaupanna:
- Stimpilgjald af kaupsamningi sem er hlutfall af fasteignamati. Stimpilgjald er 0,8% fyrir einstaklinga (0,4% við fyrstu kaup m.v. að lágmarki 50% eignarhlut) og 1,6% fyrir lögaðila.
- Þinglýsingargjald af kaupsamningi, veðskuldabréfum, veðleyfum o.fl. Þinglýsingargjald er kr. 2.700,- fyrir hvert skjal.
- Lántökugjald lánastofnunar. Um lántökugjald vísast í gjaldskrá viðkomandi lánveitanda.
- Umsýsluþóknun fasteignasölu skv. gjaldskrá.
- Ef um nýbyggingu er að ræða greiðir kaupandi skipulagsgjald, 0,3% af væntanlegu brunabótamati, þegar það er lagt á.
Virkilega falleg og vönduð eign með stórkostlegu útsýni.
Allur frágangur til fyrirmyndar.
Eignin er tilbúin með gólfefni, gardínum og öllum eldhústækjum. Afhending við kaupsamning.
Tvö bílastæði á besta stað í bílakjallara.
Íbúðin er 94 fm. Tvö svefnherbergi. Sérgeymsla í sameign er skráð 11,4 fm.
Stórar þaksvalir c.a. 95 fm eru meðfram aðalrými og niður með svefnherbergjum með útsýni í allar áttir.
Nánari lýsing:
Íbúðin er ljósu harðparketi og vönduðum innréttingum frá Selós, steinn á borðum.
Flísalögð baðherbergi og þvottahús með I Cocci Cenere 60x120cm frá Ebson bæði gólf og veggir að hluta.
Gólfhiti er í íbúðinni og jafnvægisstillt loftræsikerfi með varmaendurvinnslu. Hefðbundið útsogskerfi er í geymslum.
Loftdúkur í stofu og eldhúsi með innbyggðri lýsingu. Frábær hljóðvist.
Eldhúsinnréttingar eru sérsmíðaðar frá Selós. Skápar eru úr vönduðu stitsterku melamin efni.
Vönduð heimilistæki eru í íbúðinni frá Miele. Kæli-/frystiskápur og uppþvottavél eru innbyggð í innréttinguna og spanhelluborð með viftu.
Dekton – Rem steinborðplötur eru í eldhúsi og Silestone – Nolita steinborðplötur á baði.
Gólfhiti er í gólfi baðherbergis auk handklæðaofns.
Stórar þaksvalir eru meðfram aðlrými með útsýni í allar áttir, yfir Kópavog, út á sjó, Bessastaði, Bláfjöll og fl. Tvö Bílastæði í bílakjallara fylgja ibúðinni.
Sameiginlegur garður: Sólríkur og skjólgóður inngarður með leiktækjum, gróðri og aðstöðu fyrir iðandi mannlíf.
Fágun og gæði voru höfð að leiðarljósi við hönnun íbúðarinnar, innan íbúðar er vélræn loftskipti sem tryggja aukin loftgæði.
Íbúðin og húsið allt er Svansvottað.
Nánari upplýsingar veita:
Styrmir Bjartur Karlsson Framkvæmdastjóri og lfs., í síma 899 9090, tölvupóstur styrmir@croisette.is
Um skoðunar- og aðgæsluskyldu:
Í lögum um fasteignakaup nr. 40/2002 er kveðið á um ríka skoðunarskyldu kaupenda á fasteignum. Croisette - Knight Frank fasteignasala bendir væntanlegum kaupendum á að kynna sér vel ástand fasteigna við skoðun og fyrir tilboðsgerð og ef þurfa þykir að leita til sérfræðinga um nánari ástandsskoðun.
Forsendur söluyfirlits:
Söluyfirlit er samið af fasteignasala í samræmi við ákvæði laga nr. 70/2015. Þær upplýsingar sem fram koma í söluyfirliti þessu eru sóttar í opinberar skrár, til seljanda sjálfs og eftir atvikum til húsfélags. Seljandi veitir upplýsingar um eign í samræmi við upplýsingaskyldu laga um fasteignakaup nr. 40/2002. Fasteignasali sannreynir að þær upplýsingar séu réttar með sjónskoðun á eigninni. Fasteignasali getur ekki fullyrt um ástand og eiginleika þeirra hluta fasteigna sem ekki eru aðgengilegir og sjást ekki berum augum, t.d. lagnir, dren, skólp og þak.
Gjöld sem kaupandi þarf að standa straum af vegna kaupanna:
- Stimpilgjald af kaupsamningi sem er hlutfall af fasteignamati. Stimpilgjald er 0,8% fyrir einstaklinga (0,4% við fyrstu kaup m.v. að lágmarki 50% eignarhlut) og 1,6% fyrir lögaðila.
- Þinglýsingargjald af kaupsamningi, veðskuldabréfum, veðleyfum o.fl. Þinglýsingargjald er kr. 2.700,- fyrir hvert skjal.
- Lántökugjald lánastofnunar. Um lántökugjald vísast í gjaldskrá viðkomandi lánveitanda.
- Umsýsluþóknun fasteignasölu skv. gjaldskrá.
- Ef um nýbyggingu er að ræða greiðir kaupandi skipulagsgjald, 0,3% af væntanlegu brunabótamati, þegar það er lagt á.
Ár
Fasteignamat
Kaupverð
Stærð
Fermetraverð
30. jan. 2025
7.660.000 kr.
135.000.000 kr.
20401 m²
6.617 kr.
Byggt á upplýsingum úr Þjóðskrá Íslands frá 2006-2026