Upplýsingar
Byggt 2024
91,5 m²
3 herb.
2 svefnh.
Lýsing
BÓKIÐ SKOÐUN - SÝNUM SAMDÆGURS - Einar s 888-7979, Hlynur s. 698-2603, Glódís s. 659-0510, Helgi s. 893-2233
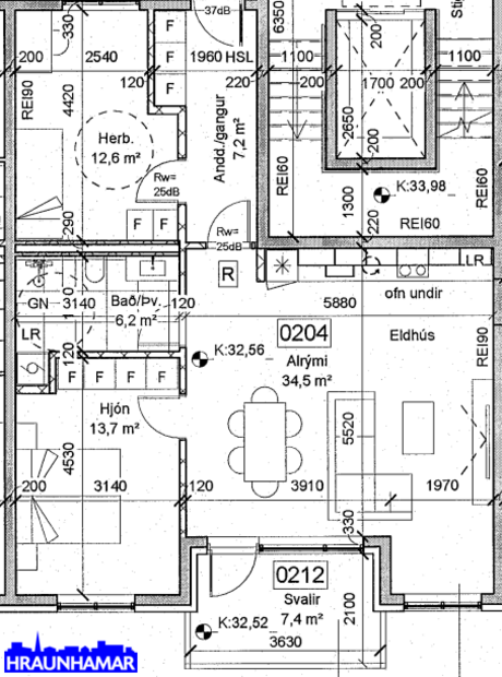
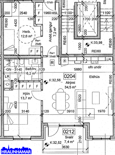
Hraunhamar kynnir: Glæsilega nýbyggingu á frábærum stað í Hamraneshverfinu í Hafnarfirði.
Íbúð 203 er 3ja herbergja íbúð skráð 109,7 fm þar af 10,2 fm geymsla.
58 íbúðir er í húsinu
2ja,3ja og 4ra herberga
Stærð frá 87,7 fm til 173,7 fm.
Verð frá 73,9 millj.
Tilbúnar til afhendingar
Nánari lýsing skv. teikningu :
Sérinngangur
Björt forstofa, fataskápur á gangi.
Gott opið alrými,með stórum gluggum.
Björt stofa og borðstofa og þaðan útgengt út á svalir.
Eldhúsinnrétting er frá Nobilia, steinplata á borðum.
Eldhúsinnrétting er fullbúin með blöndunartækjum og eldhústækjum þ.e. helluborði, viftu í innréttingu eða eyjuháfi yfir helluborði þar sem það á við, innbyggðum ísskáp, innbyggðri uppþvottavél og ofni.
Rúmgott svefnherbergi með skápum.
Hjónaherbergi með skápum.
Flísalagt baðherbergi með innréttingu, upphengdu salerni og sturta
Flísalagt þvottaherbergi
Bókið skoðun hjá sölumönnum Hraunhamars:
Einar Örn Ágústsson, löggiltur fasteignasali, s. 888-7979, einar@hraunhamar.is
Hlynur Halldórsson, löggiltur fasteignasali, s. 698-2603, hlynur@hraunhamar.is
Helgi Jón Harðarson, sölust. s. 893-2233, helgi@hraunhamar.is
Gjöld sem kaupandi þarf að standa straum af vegna kaupanna:
1. Stimpilgjald af kaupsamningi, fyrstu kaup (0,4%), almenn kaup (0,8%), lögaðilar (1,6%) af heildarfasteignamati.
2. Þinglýsingargjald af kaupsamningi, veðskuldabréfi, mögulegu veðleyfi o.fl. – kr. 3,800 kr. af hverju skjali.
3. Lántökugjald lánastofnunar er skv. verðskrá viðkomandi lánastofnunar.
4. Umsýslugjald til fasteignasölu skv. þjónustusamningi
Hraunhamar er elsta fasteignasala Hafnarfjarðar, stofnuð 1983
Hraunhamar, í farabroddi í 40 ár ! – Hraunhamar.is
Smelltu hér til að fá frítt söluverðmat.
Hraunhamar kynnir: Glæsilega nýbyggingu á frábærum stað í Hamraneshverfinu í Hafnarfirði.
Íbúð 203 er 3ja herbergja íbúð skráð 109,7 fm þar af 10,2 fm geymsla.
58 íbúðir er í húsinu
2ja,3ja og 4ra herberga
Stærð frá 87,7 fm til 173,7 fm.
Verð frá 73,9 millj.
Tilbúnar til afhendingar
Nánari lýsing skv. teikningu :
Sérinngangur
Björt forstofa, fataskápur á gangi.
Gott opið alrými,með stórum gluggum.
Björt stofa og borðstofa og þaðan útgengt út á svalir.
Eldhúsinnrétting er frá Nobilia, steinplata á borðum.
Eldhúsinnrétting er fullbúin með blöndunartækjum og eldhústækjum þ.e. helluborði, viftu í innréttingu eða eyjuháfi yfir helluborði þar sem það á við, innbyggðum ísskáp, innbyggðri uppþvottavél og ofni.
Rúmgott svefnherbergi með skápum.
Hjónaherbergi með skápum.
Flísalagt baðherbergi með innréttingu, upphengdu salerni og sturta
Flísalagt þvottaherbergi
Bókið skoðun hjá sölumönnum Hraunhamars:
Einar Örn Ágústsson, löggiltur fasteignasali, s. 888-7979, einar@hraunhamar.is
Hlynur Halldórsson, löggiltur fasteignasali, s. 698-2603, hlynur@hraunhamar.is
Helgi Jón Harðarson, sölust. s. 893-2233, helgi@hraunhamar.is
Gjöld sem kaupandi þarf að standa straum af vegna kaupanna:
1. Stimpilgjald af kaupsamningi, fyrstu kaup (0,4%), almenn kaup (0,8%), lögaðilar (1,6%) af heildarfasteignamati.
2. Þinglýsingargjald af kaupsamningi, veðskuldabréfi, mögulegu veðleyfi o.fl. – kr. 3,800 kr. af hverju skjali.
3. Lántökugjald lánastofnunar er skv. verðskrá viðkomandi lánastofnunar.
4. Umsýslugjald til fasteignasölu skv. þjónustusamningi
Hraunhamar er elsta fasteignasala Hafnarfjarðar, stofnuð 1983
Hraunhamar, í farabroddi í 40 ár ! – Hraunhamar.is
Smelltu hér til að fá frítt söluverðmat.