Upplýsingar
Verðsaga
Byggt 2000
127,2 m²
3 herb.
1 baðherb.
2 svefnh.
Þvottahús
Bílskúr
Sameiginl. inngangur
Lýsing
Íbúðin er SELD - Með fyrirvara!
BJÖRT OG RÚMGÓÐ ÚTSÝNIS ÍBÚÐ ÁSAMT BÍLSKÚR Á ÞESSUM VINSÆLA STAÐ Í KÓPAVOGI.
Samkvæmt skráningu Þjóðskrár Íslands er birt flatarmál eignarinnar 127,2 fm.
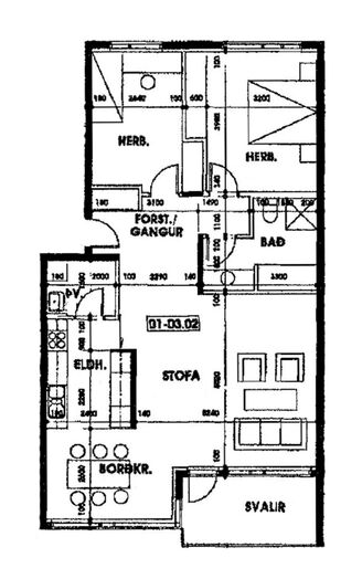
Um er að ræða 3-4ra herb. íbúð á efstu hæð (einn og hálfur stigagangur upp) í steinsteyptu 3. hæða fjölbýlishúsi byggðu árið 2000 ásamt bílskúr.
Íbúðin er skráð 98,4 fm. og bílskúrinn með geymslunni 28,8 fm. Skráð prósentuhlutfall íbúðarinnar er 16,45% í matshluta 01 (Fensölum 6) en 8,225% í húsinu öllu (Fensölum 6-8).
Gengið er inn í forstofuhol með fataskáp, til vinstri við inngang eru svefnherbergin, en baðherbergið er beint á móti hjónaherberginu. Holið liggur til hægri inn í stofurnar og eldhúsið. Borðstofa er í framhaldi af eldhúsinu. Þvottahús er inn af eldhúsinu. Mikið útsýni er úr stofunni og borðstofunni, útgangur er út á suð-vestur svalir stofunni. Bílskúrinn er rúmgóður með mjög góðri geymslu inn af. Sameiginleg vagna- og hjólageymsla.
Forstofa/gangur: Parket á gólfum og fataskápur.
Stofa: Björt og mjög rúmgóð með útgangi út á góðar 8 fm. svalir með frábæru útsýni. Parket á gólfum.
Borðstofa: Við hliðina á eldhúsinu, parket á gólfi og glæsilegt útsýni.
Eldhús: Innrétting með g skápaplássi og keramik helluborð, gott borðpláss og ofn í vinnuhæð, parket á gólfi.
Svefnherbergin: Herbergin eru rúmgóð og parketlögð, fataskápar í báðum herbergjum.
Baðherbergi: Rúmgott og flísalagt, baðkar og sturtuklefi, upphengt salerni, góð innrétting við handlaug og handklæðaofn.
Þvottahús: Sér innan íbúðarinnar, hillur og flísar á gólfi.
Bílskúr: Skráður með geymslunni 28,8 fm. og hátt er til lofts, heitt og kalt vatn og rafknúinn hurðaopnari, hillur í geymslunni.
- Í sameign er sameiginleg vagn- og hjólageymsla.
- Sameign er snyrtileg og nýlega var málað og sett nýtt teppi á stigagang.
- Um er að ræða bjarta útsýnis íbúð á frábærum stað í Salahverfi.
- Skjólgóðar suðvestur svalir og Swisstrax gólffjalir eru á svalargólfi.
- Ljósleiðari er kominn inn í íbúðina.
STUTT ER Í LEIK- OG GRUNNSKÓLA AUK ÞESS SEM EINSTAKLEGA STUTT ER Í ÍÞRÓTTASVÆÐI OG GOLFVÖLL. ÍBÚÐIN ER EINNIG Í GÖNGUFÆRI VIÐ SMÁRALIND AUK ÞESS AÐ VERA Í NÁMUNDA VIÐ FRÁBÆRT VERSLUNAR- OG ÞJÓNUSTUSVÆÐI!
Allar nánari uppl. og skoðun veitir: Jóhann Friðgeir, lgf GSM: 896-3038 e-mail: johann@hofdi.is
BJÖRT OG RÚMGÓÐ ÚTSÝNIS ÍBÚÐ ÁSAMT BÍLSKÚR Á ÞESSUM VINSÆLA STAÐ Í KÓPAVOGI.
Samkvæmt skráningu Þjóðskrár Íslands er birt flatarmál eignarinnar 127,2 fm.
Um er að ræða 3-4ra herb. íbúð á efstu hæð (einn og hálfur stigagangur upp) í steinsteyptu 3. hæða fjölbýlishúsi byggðu árið 2000 ásamt bílskúr.
Íbúðin er skráð 98,4 fm. og bílskúrinn með geymslunni 28,8 fm. Skráð prósentuhlutfall íbúðarinnar er 16,45% í matshluta 01 (Fensölum 6) en 8,225% í húsinu öllu (Fensölum 6-8).
Gengið er inn í forstofuhol með fataskáp, til vinstri við inngang eru svefnherbergin, en baðherbergið er beint á móti hjónaherberginu. Holið liggur til hægri inn í stofurnar og eldhúsið. Borðstofa er í framhaldi af eldhúsinu. Þvottahús er inn af eldhúsinu. Mikið útsýni er úr stofunni og borðstofunni, útgangur er út á suð-vestur svalir stofunni. Bílskúrinn er rúmgóður með mjög góðri geymslu inn af. Sameiginleg vagna- og hjólageymsla.
Forstofa/gangur: Parket á gólfum og fataskápur.
Stofa: Björt og mjög rúmgóð með útgangi út á góðar 8 fm. svalir með frábæru útsýni. Parket á gólfum.
Borðstofa: Við hliðina á eldhúsinu, parket á gólfi og glæsilegt útsýni.
Eldhús: Innrétting með g skápaplássi og keramik helluborð, gott borðpláss og ofn í vinnuhæð, parket á gólfi.
Svefnherbergin: Herbergin eru rúmgóð og parketlögð, fataskápar í báðum herbergjum.
Baðherbergi: Rúmgott og flísalagt, baðkar og sturtuklefi, upphengt salerni, góð innrétting við handlaug og handklæðaofn.
Þvottahús: Sér innan íbúðarinnar, hillur og flísar á gólfi.
Bílskúr: Skráður með geymslunni 28,8 fm. og hátt er til lofts, heitt og kalt vatn og rafknúinn hurðaopnari, hillur í geymslunni.
- Í sameign er sameiginleg vagn- og hjólageymsla.
- Sameign er snyrtileg og nýlega var málað og sett nýtt teppi á stigagang.
- Um er að ræða bjarta útsýnis íbúð á frábærum stað í Salahverfi.
- Skjólgóðar suðvestur svalir og Swisstrax gólffjalir eru á svalargólfi.
- Ljósleiðari er kominn inn í íbúðina.
STUTT ER Í LEIK- OG GRUNNSKÓLA AUK ÞESS SEM EINSTAKLEGA STUTT ER Í ÍÞRÓTTASVÆÐI OG GOLFVÖLL. ÍBÚÐIN ER EINNIG Í GÖNGUFÆRI VIÐ SMÁRALIND AUK ÞESS AÐ VERA Í NÁMUNDA VIÐ FRÁBÆRT VERSLUNAR- OG ÞJÓNUSTUSVÆÐI!
Allar nánari uppl. og skoðun veitir: Jóhann Friðgeir, lgf GSM: 896-3038 e-mail: johann@hofdi.is
Ár
Fasteignamat
Kaupverð
Stærð
Fermetraverð
11. feb. 2008
25.860.000 kr.
30.000.000 kr.
127.2 m²
235.849 kr.
Byggt á upplýsingum úr Þjóðskrá Íslands frá 2006-2026