Upplýsingar
Byggt 2025
112,6 m²
4 herb.
2 baðherb.
3 svefnh.
Þvottahús
Útsýni
Sameiginl. inngangur
Bílastæði
Lyfta
Lýsing
Betri Stofan og Jason Kristinn fasteignasali sími 775 1515 og jason@betristofan.is kynnir: Heklureitur - Laugavegur 168 - 112.6 fm íbúð 403 sem er á norðvestur horni hússins með stæði í bílageymslu. Möguleiki er að bæta við herbergi og þá yrði hún 4ra herbergja. Tvö baðherbergi eru í eigninni.
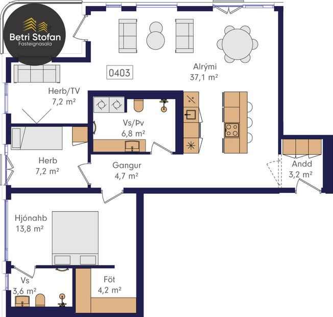
Glæsileg 3ja-4ra herbergja útsýnisíbúð á 3. hæð með gæða ítölskum sérsmíðuðum innréttingum og nýjustu Siemens tækjum. Gólfhiti er í íbúðinni og eru flestir gluggar gólfsíðir. Eignin skiptist í anddyri með fataskápum, baðherbergi með sturtu og þvottaaðstoðu. Svefnherbergi að stærðinni 7,2 fm með glugga til austurs. Hjónsvítan er rúmlega 20 fm að stærð með fataherbergi og sér baðherbegi með sturtu. Gluggar á baðherbergi innan svefnherbergis, sem og aðalsvefnherbergið snúa til vesturs. Aðalrýmið skiptist í stofu, eldhús og sjónvarpsstofu. Glæsilegar innréttingar, eldhús með eyju. Siemens tæki af vandaðri gerðinni. Gluggar til norðurs og austurs. Stofan er með útgengi út á norð/vestursvalir og útsýni er til fjalla. Stæði í bílageymslu fylgir íbúðinni og sérgeymsla að stærðinni 8,5 fm, merkt 074. Fastanúmer íbúðar er: F2529778
ATH: Hægt er að velja á milli tveggja innréttingarþema, Hlýju eða Bjarma. Sem þarf að gerast fyrir ákveðinn tima.
Heimasíða
Húsið er klætt með mismunandi litaðri álklæðningu ásamt Bambus sem gefur því lifandi yfirbragð og þarfnast lítils viðhalds.
Miðlæg staðsetning tryggir gott aðgengi að helstu umferðaræðum sem sparar tíma og peninga.
Örstutt í helstu stofnbrautir eins og Sæbraut, Kringlumýrabraut og Miklubraut.
Kaupandi greiðir skipulagsgjald sem er 0,3% af væntanlegu brunabótamati
Bókið skoðun hjá sérfræðingum um eignina:
Jason Kristinn Ólafsson, sími 775 1515 / jason@betristofan.is
Hlynur Bjarnason, sími 697 9215 / hlynur@betristofan.is
Dagrún Davíðsdóttir, sími 866 1763 / dagrun@betristofan.is
Atli S. Sigvarðsson, sími 899 1178 / atli@betristofan.is
Gunnar S. Jónsson, sími 899 5856 / gunnar@betristofan.is
Páll Þórólfsson, sími 893 9929 / pall@betristofan.is
Guðbjörg Guðmundsdóttir sími 899 5533 / gudbjorg@betristofan.is
Glæsileg 3ja-4ra herbergja útsýnisíbúð á 3. hæð með gæða ítölskum sérsmíðuðum innréttingum og nýjustu Siemens tækjum. Gólfhiti er í íbúðinni og eru flestir gluggar gólfsíðir. Eignin skiptist í anddyri með fataskápum, baðherbergi með sturtu og þvottaaðstoðu. Svefnherbergi að stærðinni 7,2 fm með glugga til austurs. Hjónsvítan er rúmlega 20 fm að stærð með fataherbergi og sér baðherbegi með sturtu. Gluggar á baðherbergi innan svefnherbergis, sem og aðalsvefnherbergið snúa til vesturs. Aðalrýmið skiptist í stofu, eldhús og sjónvarpsstofu. Glæsilegar innréttingar, eldhús með eyju. Siemens tæki af vandaðri gerðinni. Gluggar til norðurs og austurs. Stofan er með útgengi út á norð/vestursvalir og útsýni er til fjalla. Stæði í bílageymslu fylgir íbúðinni og sérgeymsla að stærðinni 8,5 fm, merkt 074. Fastanúmer íbúðar er: F2529778
ATH: Hægt er að velja á milli tveggja innréttingarþema, Hlýju eða Bjarma. Sem þarf að gerast fyrir ákveðinn tima.
Heimasíða
Húsið er klætt með mismunandi litaðri álklæðningu ásamt Bambus sem gefur því lifandi yfirbragð og þarfnast lítils viðhalds.
Miðlæg staðsetning tryggir gott aðgengi að helstu umferðaræðum sem sparar tíma og peninga.
Örstutt í helstu stofnbrautir eins og Sæbraut, Kringlumýrabraut og Miklubraut.
Kaupandi greiðir skipulagsgjald sem er 0,3% af væntanlegu brunabótamati
Bókið skoðun hjá sérfræðingum um eignina:
Jason Kristinn Ólafsson, sími 775 1515 / jason@betristofan.is
Hlynur Bjarnason, sími 697 9215 / hlynur@betristofan.is
Dagrún Davíðsdóttir, sími 866 1763 / dagrun@betristofan.is
Atli S. Sigvarðsson, sími 899 1178 / atli@betristofan.is
Gunnar S. Jónsson, sími 899 5856 / gunnar@betristofan.is
Páll Þórólfsson, sími 893 9929 / pall@betristofan.is
Guðbjörg Guðmundsdóttir sími 899 5533 / gudbjorg@betristofan.is
Gjöld sem kaupandi þarf að standa straum af ef að kaupum verður:
1. Stimpilgjald af fasteignamati fasteignar er 0.8%, en 0,4% fyrir fyrstu kaup og 1,6% fyrir lögaðila.
2. Þinglýsingargjald: kaupsamningi, skuldabréfi, veðleyfi, afsali o.s.frv. er kr. 3.800 af hverju skjali.
3. Lántökukostnaður samkvæmt verðskrá viðkomandi lánastofnunar.
4. Umsýslugjald til fasteignasölu skv. gjaldskrá.
Skoðunarskylda kaupanda:
Í lögum um fasteignakaup nr. 40/2002 er kveðið á um ríka skoðunarskyldu kaupenda á fasteignum. Betri Stofan fasteignasala bendir væntanlegum kaupendum á að kynna sér vel ástand fasteigna við skoðun og fyrir tilboðsgerð og ef þurfa þykir að leita til sérfræðinga um nánari ástandsskoðun.