Löggiltir fasteignasalar innan Félags fasteignasala:
Daníel Rúnar Elíasson
Vista
fjölbýlishús

Kirkjubraut 12 íbúð 204

300 Akranes

62.900.000 kr.

692.731 þ.kr./m2
Fasteignanúmer

F2277395

Fasteignamat

59.350.000 kr.

Brunabótamat

59.240.000 kr.

Áhvílandi

0 kr.

Arion banki – Reikna lán
Upplýsingar
Verðsaga
svg
Byggt 2005
svg
90,8 m²
svg
3 herb.
svg
1 baðherb.
svg
2 svefnh.
svg
Þvottahús
svg
Sameiginl. inngangur
svg
Bílastæði
svg
Lyfta

Lýsing

HÁKOT fasteignasala og Daníel Rúnar Elíasson löggiltur fasteignasali sími: 431-4045 / 899-4045 auglýsa:
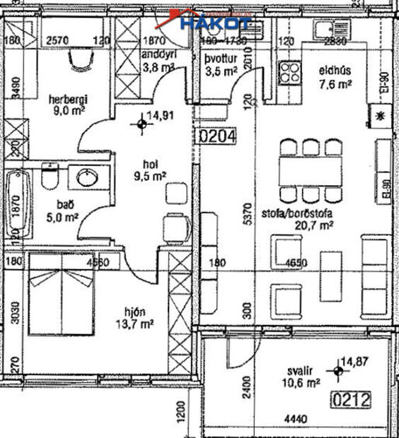
** KIRKJUBRAUT 12 ** 3ja herbergja íbúð (83,7 m²) á 2. hæð fyrir miðju ásamt sérgeymslu (7,1 m²) í kjallara = 90.8 m² og stæði í bílakjallara (B1-7)

Forstofa (flísar, skápur).
Hol (parket, möguleiki fyri vinnuaðstöðu).
Herbergi 2 (parket).
Þvottahús (flísar, innrétting, gluggi).
Baðherbergi (flísar, flísar á vegg, sturta, ljós viðarinnrétting, upphengt wc, handklæðaofn, ekki gluggi).
Svefnherbergi (parket, stórir skápar).
Eldhús (parket, eikarinnrétting HTH, flísar á milli skápa, helluborð, ofn, vifta, tengi fyrir uppþvottavél, opið inn í stofu).
Stofa (parket, útgangur út á Svalir í suður).

Geymsla í kjallara (dúkur, ekki gluggi).
Stæði i bílakjallara (málað gólf, hurðaopnari, stór flekahurð ásamt inngönguhurð).

ANNAÐ: Flutt inn í húsið í ágúst 2006. Lyfta. Sameiginlegt stigahús (flísar). Sameiginleg hjólageymsla í kjallara. Keypt út þrif á sameign. Innréttingar og parket ljós viður (eik). Falleg íbúð staðsett í miðbæ Akraness.

Allar upplýsingar í söluyfirlitinu eru fengnar hjá seljendum og úr opinberum gögnum. 

************
Um skoðunar- og aðgæsluskyldu:
Í lögum um fasteignakaup nr. 40/2002 er kveðið á um ríka skoðunarskyldu kaupenda á fasteignum. Fasteignasalan Hákot bendir væntanlegum kaupendum á að kynna sér vel ástand fasteigna við skoðun og fyrir tilboðsgerð og ef þurfa þykir að leita til sérfræðinga um nánari ástandsskoðun.

Forsendur söluyfirlits: 
Söluyfirlit er samið af fasteignasala í samræmi við ákvæði laga nr. 70/2015. Þær upplýsingar sem fram koma í söluyfirliti þessu eru sóttar í opinberar skrár, til seljanda sjálfs og eftir atvikum til húsfélags. Seljandi veitir upplýsingar um eign í samræmi við upplýsingaskyldu laga um fasteignakaup nr. 40/2002. Fasteignasali metur eignina með sjónskoðun.
Fasteignasali getur ekki fullyrt um ástand og eiginleika þeirra hluta fasteigna sem ekki eru aðgengilegir og sjást ekki berum augum, t.d. lagnir, dren, skólp og þak.

Gjöld sem kaupandi þarf að standa straum af vegna kaupanna:  
1. Stimpilgjald af kaupsamningi - 0.8% af heildar fasteignamati / 1.6% fyrir lögaðila, (0.4% við fyrstu kaup einstaklinga).
2. Þinglýsingagjald af kaupsamningi, afsali, veðskuldabréfi, umboði, veðleyfi o.fl.- kr. 2.700 af hverju skjali.
3. Umsýslugjald kr. 49.600 (m/vsk).
4. Lántökugjald veðskuldabréfa samkvæmt gjaldskrá lánveitenda.
5. Ef um nýbyggingu er að ræða greiðir kaupandi skipulagsgjald, 0,3% af brunabótamáti, þegar það er lagt á

Fasteignasalan Hákot

Fasteignasalan Hákot

Kirkjubraut 12 (jarðhæð)300 Akranesi
phone
Ár
Fasteignamat
Kaupverð
Stærð
Fermetraverð
2. apr. 2007
15.417.000 kr.
20.400.000 kr.
90.8 m²
224.670 kr.
Byggt á upplýsingum úr Þjóðskrá Íslands frá 2006-2026
Fasteignasalan Hákot

Fasteignasalan Hákot

Kirkjubraut 12 (jarðhæð)300 Akranesi
phone