Löggiltir fasteignasalar innan Félags fasteignasala:
Hannes Steindórsson
Bogi Molby Pétursson
Guðrún Antonsdóttir
Heimir Hallgrímsson
Hrafnkell P. H. Pálmason
Viðar Marinósson
Elías Haraldsson
Kristján Þórir Hauksson
Albert Bjarni Úlfarsson
Ragnar Þorsteinsson
Þórey Ólafsdóttir
Andri Freyr Halldórsson
Upplýsingar
Byggt 2022
163,5 m²
4 herb.
1 baðherb.
3 svefnh.
Þvottahús
Bílskúr
Útsýni
Sameiginl. inngangur
Bílastæði
Lyfta
Lýsing
*** NÝTT Í SÖLU *** ÍBÚÐ Á EFSTU HÆÐ MEÐ BÍLSKÚR *** SUÐURSVALIR ***
NÝ FULLBÚIN GLÆSILEG ÍBÚÐ MEÐ SUÐUR SVÖLUM MEÐ STÓRKOSTLEGU ÚTSÝNI. ÍBÚÐINNI FYLGIR BÍLSKÚR MEÐ BÍLASTÆÐI FYRIR FRAMAN INNI Í LOKUÐU BÍLASTÆÐAHÚSI. Hér er hlekkur inn á allar óseldar eignir við Fálkahlíð 5 -ÝTTU HÉR
Guðrún Antonsdóttir kynnir með stolti nýjar íbúðir við Hlíðarenda í byggingu hjá DALHÚS, um er að ræða síðasta stigagang hússins. Glæsilegar íbúðir við FÁLKAHLÍÐ 5. Íbúðirnar afhendast fullbúnar að innan, með öllum gólfefnum, innbyggðri uppþvottavél, ísskáp með frysti og ljósum. Ljós eru innbyggð að hluta, kubbaljós, ljósakúplar og kastarar fylgja. Baðherbergi eru flísalögð, bæði veggir og gólf. Gólf á þvottahúsum eru flísalögð.
Nánari upplýsinga veita:
Guðrún Antonsdóttir Löggiltur fasteignasali, í 621-2020 / gudrun@fastlind.is
Tara Sif Birgisdóttir í 847-8584 / tara@fastlind.is
Hrafn Valdísarson í 845-9888 / hrafn@fastlind.is
Atli Karl Pálmason í 662-4252 / atli@fastlind.is
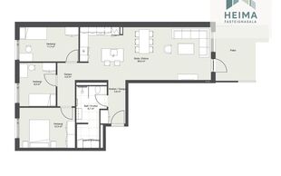
Nánari lýsing eignar 420 4RA herbergja íbúð á fjórðu hæð með suðursvölum með fallegu útsýni
Forstofa með harðparketi á gólfi, glugga og yfirhafnaskáp
Stofa og opið eldhús, innrétting með efri og neðri skápum og eyju
Rúmgóð þjú svefnherbergi með fataskápum
Baðherbergi með sturtu, ljósri innréttingu, handlaug og upphengdu salerni og handklæðaofn.
Sér þvottahús með flísum á gólfi
Geymsla í kjallara 11,4
Bílskúr 42fm
Sér bílastæði í lokuðu bílastæðahúsi fyrir framan bílskúr
Afhending er við kaupsamning
Stutt lýsing húss:
Fálkahlíð 5. Er stórglæsilegt 16 ibúða fjölbýlishús á fimm hæðum með 3ja og 4ra herbergja íbúðum
* Vandaðar Nobilia innréttingar frá GKS innréttingum, hvítar, brúnar eða gráar
* Fataskápar frá Parka, hvítir í herbergjum og forstofu
* Innbyggður ísskápur m. frysti, span helluborð og vifta. Blásturbakarasofn allt frá AEG eða
Electrolux og vifta frá Gíra
* Blöndunartækin eru frá Tengi en svört blöndunartæki frá GKS.
* KR Ark sér um alla hönnun
Allar nánari upplýsingar á heimasíðu verkefnisins: https://hlidarendi.is
Dalhús hefur sérhæft sig í byggingu gæða íbúðarhúsnæðis. Eigendur félagsins eru með áratuga reynslu í byggingu íbúða sem nú telja þúsundir. Aðaleigandi félagsins er Sigurður Sigurgeirsson og framkvæmdastjóri er Bjarni Már Bjarnason (byggingarstjóri). Sigurður og Bjarni hafa starfað saman í 30 ár að uppbyggingu íbúða með hagsmuni kaupenda að leiðarljósi.
Metnaður Dalhúss hefur verið bygging fullbúinna íbúða og góð þjónusta við kaupendur. Allar íbúðir afhendast með gólfefnum, helstu ljósum og öllum nauðsynlegum raftækjum í eldhúsi þannig að kaupandi getur flutt inn án mikillar fyrirhafnar.
Bílastæðahús og bílskúrar:
Bílgeymsla er lokuð og upphituð (frostfrí) með loftræstingu. Allar íbúðir eiga eitt bílastæði.
Sameiginlegt bílastæðahús er fyrir heildar húsið.
Ytri frágangur og lóð.
Húsið afhendist fullbúið að utan, lóð fullbúin. Að utan verður húsið frágengið á eftirfarandi hátt. Þak er steinsteypt, með ásoðnum tjörupappa, einangrað með þrýstieinangrun (Roofmate) og möl er lögð þar ofaná. Frágengin niðurföll. Húsið er að mestu einangrað og klætt að utan, en múraðir fletir eru málaðir.
Um svæðið og nærliggjandi: Miðbærinn er í göngufæri og því yndislegt að fá sér stuttan göngutúr á veitingahús, söfn, tónleika, sund eða niður á Tjörn. Íþróttaaðstaða Vals er við Hlíðarenda svæðið því stutt að fara fyrir börn og unglinga sem búa á svæðinu. Gönguleiðir um Öskjuhlíðina og fleirra.
Seljandi áskilur sér allan rétt til að gera efnis-, tæknilegar- og útlits breytingar meðan á
byggingaframkvæmd stendur.
Allar breytingar að ósk kaupenda þurfa að fara í gegnum skrifstofur seljanda og geta haft áhrif á
afhendingartíma til seinkunnar. Breytingar geta leitt til kostnaðarauka en aldrei til lækkunar.
Kaupandi greiðir 0,3% af væntanlegu brunabótamáti þegar það verður lagt á íbúðina.
Heimild seljanda til að breyta eignaskiptasamning sé þess þörf án þess þó að rýra eignarrétt kaupanda.
Innréttingateikningar eru þær sem gilda ef misræmi er milli arkitektateikninga og innréttingateikninga og eru þær áritaðar og hluti samningsins.
Myndir í auglýsingu eru af samskonar eign í sama húsi
*** Nánari upplýsingar veita
Guðrún Antonsdóttir Löggiltur fasteignasali, í 621-2020 / gudrun@fastlind.is
Tara Sif Birgisdóttir í 847-8584 / tara@fastlind.is
Hrafn Valdísarson í 845-9888 / hrafn@fastlind.is
Atli Karl Pálmason í 662-4252 / atli@fastlind.is
-----------------------------------------------------------------------
Gjöld sem kaupandi þarf að standa straum af vegna kaupanna:
1. Stimpilgjald af kaupsamningi - 0.8% af heildarfasteignamati / 1.6% fyrir lögaðila
Fyrstu kaup - 0,4% af heildarfasteignamati
2. Þinglýsingagjald af kaupsamningi, veðskuldabréfi, veðleyfi o.fl.- kr. 2.700 af hverju skjali.
3. Lántökugjald lánastofnunar
4. Umsýsluþóknun til fasteignasölu, sbr.kauptilboð.
NÝ FULLBÚIN GLÆSILEG ÍBÚÐ MEÐ SUÐUR SVÖLUM MEÐ STÓRKOSTLEGU ÚTSÝNI. ÍBÚÐINNI FYLGIR BÍLSKÚR MEÐ BÍLASTÆÐI FYRIR FRAMAN INNI Í LOKUÐU BÍLASTÆÐAHÚSI. Hér er hlekkur inn á allar óseldar eignir við Fálkahlíð 5 -ÝTTU HÉR
Guðrún Antonsdóttir kynnir með stolti nýjar íbúðir við Hlíðarenda í byggingu hjá DALHÚS, um er að ræða síðasta stigagang hússins. Glæsilegar íbúðir við FÁLKAHLÍÐ 5. Íbúðirnar afhendast fullbúnar að innan, með öllum gólfefnum, innbyggðri uppþvottavél, ísskáp með frysti og ljósum. Ljós eru innbyggð að hluta, kubbaljós, ljósakúplar og kastarar fylgja. Baðherbergi eru flísalögð, bæði veggir og gólf. Gólf á þvottahúsum eru flísalögð.
Nánari upplýsinga veita:
Guðrún Antonsdóttir Löggiltur fasteignasali, í 621-2020 / gudrun@fastlind.is
Tara Sif Birgisdóttir í 847-8584 / tara@fastlind.is
Hrafn Valdísarson í 845-9888 / hrafn@fastlind.is
Atli Karl Pálmason í 662-4252 / atli@fastlind.is
Nánari lýsing eignar 420 4RA herbergja íbúð á fjórðu hæð með suðursvölum með fallegu útsýni
Forstofa með harðparketi á gólfi, glugga og yfirhafnaskáp
Stofa og opið eldhús, innrétting með efri og neðri skápum og eyju
Rúmgóð þjú svefnherbergi með fataskápum
Baðherbergi með sturtu, ljósri innréttingu, handlaug og upphengdu salerni og handklæðaofn.
Sér þvottahús með flísum á gólfi
Geymsla í kjallara 11,4
Bílskúr 42fm
Sér bílastæði í lokuðu bílastæðahúsi fyrir framan bílskúr
Afhending er við kaupsamning
Stutt lýsing húss:
Fálkahlíð 5. Er stórglæsilegt 16 ibúða fjölbýlishús á fimm hæðum með 3ja og 4ra herbergja íbúðum
* Vandaðar Nobilia innréttingar frá GKS innréttingum, hvítar, brúnar eða gráar
* Fataskápar frá Parka, hvítir í herbergjum og forstofu
* Innbyggður ísskápur m. frysti, span helluborð og vifta. Blásturbakarasofn allt frá AEG eða
Electrolux og vifta frá Gíra
* Blöndunartækin eru frá Tengi en svört blöndunartæki frá GKS.
* KR Ark sér um alla hönnun
Allar nánari upplýsingar á heimasíðu verkefnisins: https://hlidarendi.is
Dalhús hefur sérhæft sig í byggingu gæða íbúðarhúsnæðis. Eigendur félagsins eru með áratuga reynslu í byggingu íbúða sem nú telja þúsundir. Aðaleigandi félagsins er Sigurður Sigurgeirsson og framkvæmdastjóri er Bjarni Már Bjarnason (byggingarstjóri). Sigurður og Bjarni hafa starfað saman í 30 ár að uppbyggingu íbúða með hagsmuni kaupenda að leiðarljósi.
Metnaður Dalhúss hefur verið bygging fullbúinna íbúða og góð þjónusta við kaupendur. Allar íbúðir afhendast með gólfefnum, helstu ljósum og öllum nauðsynlegum raftækjum í eldhúsi þannig að kaupandi getur flutt inn án mikillar fyrirhafnar.
Bílastæðahús og bílskúrar:
Bílgeymsla er lokuð og upphituð (frostfrí) með loftræstingu. Allar íbúðir eiga eitt bílastæði.
Sameiginlegt bílastæðahús er fyrir heildar húsið.
Ytri frágangur og lóð.
Húsið afhendist fullbúið að utan, lóð fullbúin. Að utan verður húsið frágengið á eftirfarandi hátt. Þak er steinsteypt, með ásoðnum tjörupappa, einangrað með þrýstieinangrun (Roofmate) og möl er lögð þar ofaná. Frágengin niðurföll. Húsið er að mestu einangrað og klætt að utan, en múraðir fletir eru málaðir.
Um svæðið og nærliggjandi: Miðbærinn er í göngufæri og því yndislegt að fá sér stuttan göngutúr á veitingahús, söfn, tónleika, sund eða niður á Tjörn. Íþróttaaðstaða Vals er við Hlíðarenda svæðið því stutt að fara fyrir börn og unglinga sem búa á svæðinu. Gönguleiðir um Öskjuhlíðina og fleirra.
Seljandi áskilur sér allan rétt til að gera efnis-, tæknilegar- og útlits breytingar meðan á
byggingaframkvæmd stendur.
Allar breytingar að ósk kaupenda þurfa að fara í gegnum skrifstofur seljanda og geta haft áhrif á
afhendingartíma til seinkunnar. Breytingar geta leitt til kostnaðarauka en aldrei til lækkunar.
Kaupandi greiðir 0,3% af væntanlegu brunabótamáti þegar það verður lagt á íbúðina.
Heimild seljanda til að breyta eignaskiptasamning sé þess þörf án þess þó að rýra eignarrétt kaupanda.
Innréttingateikningar eru þær sem gilda ef misræmi er milli arkitektateikninga og innréttingateikninga og eru þær áritaðar og hluti samningsins.
Myndir í auglýsingu eru af samskonar eign í sama húsi
*** Nánari upplýsingar veita
Guðrún Antonsdóttir Löggiltur fasteignasali, í 621-2020 / gudrun@fastlind.is
Tara Sif Birgisdóttir í 847-8584 / tara@fastlind.is
Hrafn Valdísarson í 845-9888 / hrafn@fastlind.is
Atli Karl Pálmason í 662-4252 / atli@fastlind.is
-----------------------------------------------------------------------
Gjöld sem kaupandi þarf að standa straum af vegna kaupanna:
1. Stimpilgjald af kaupsamningi - 0.8% af heildarfasteignamati / 1.6% fyrir lögaðila
Fyrstu kaup - 0,4% af heildarfasteignamati
2. Þinglýsingagjald af kaupsamningi, veðskuldabréfi, veðleyfi o.fl.- kr. 2.700 af hverju skjali.
3. Lántökugjald lánastofnunar
4. Umsýsluþóknun til fasteignasölu, sbr.kauptilboð.