Upplýsingar
Verðsaga
Byggt 2019
102,1 m²
4 herb.
1 baðherb.
3 svefnh.
Bílastæði
Lýsing
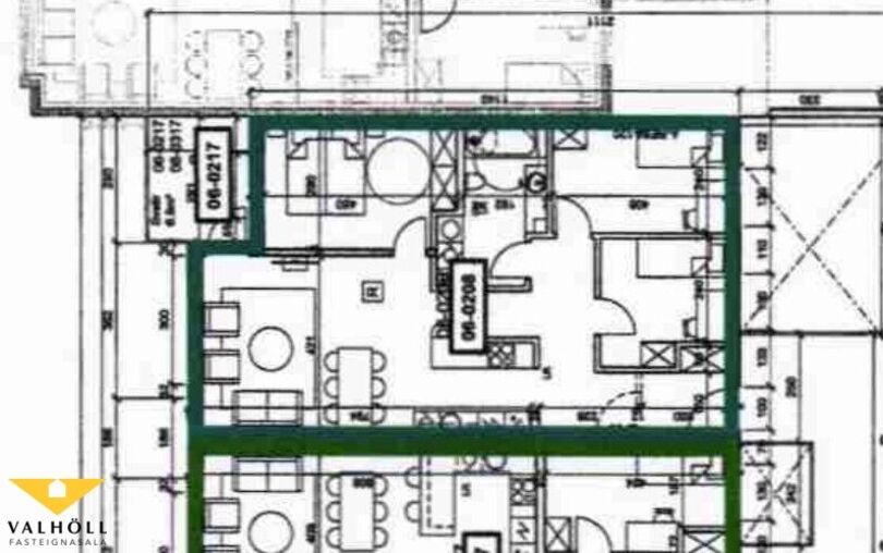
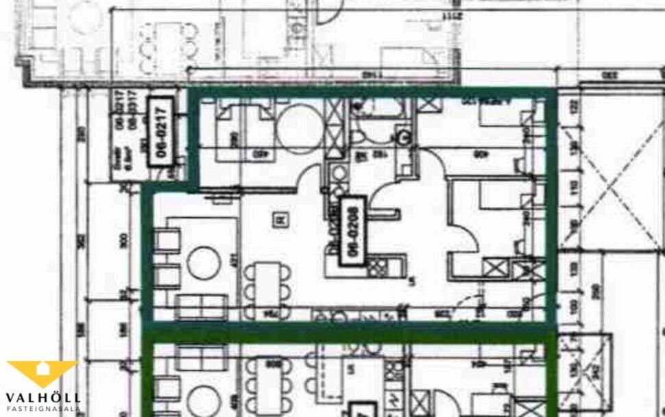
Valhöll kynnir fallega og vel skipulagða fjögurra herbergja íbúð á 2. hæð í fjölbýlishúsi byggðu árið 2019 í Lyngási 1E í Garðabæ. Stæði í upphitaðri bílageymslu fylgir með. Sérinngangur af svölum. Lyfta er í húsinu sem gengur niður í bílageymslu.
Eignin er skráð 102,1 fm á stærð skiptist í 92,4 fm íbúð og 9,7 fm geymslu.
Fasteignamat ársins 2026 er fyrirhugað 81.350.000 kr.
Þetta er góð eign miðsvæðis í Garðabæ á góðu verði sem vert er að skoða.
Nánari lýsing:
Anddyri: með fataskáp og flísum á gólfi.
Eldhús: með hvítri innréttingu, góðu borð- og skápaplássi, innbyggðum ísskáp og uppþvottavél og parketi á gólfi.
Þrjú svefnherbergi: öll með fataskápum og parketi á gólfi.
Baðherbergi: með baðkari með sturtuaðstöðu, aðstöðu fyrir þvottavél og þurrkara, handklæðaofni, skápum, innréttingu og speglaskáp og flísum á gólfi.
Stofa / borðstofa: samliggjandi í opnu rými með eldhúsi með parketi á gólfi og útgengi á 6,9 fm vestur svalir.
Geymsla: 9,7 fm sérgeymsla í kjallara.
Bílastæði: sérbílastæði í upphituðum bílakjallara.
Hjóla- vagnageymsla: sameiginlega í kjallara.
Nánari upplýsingar veitir:
Snorri Björn Sturluson fasteignasali / lögfræðingur í síma 699-4407 eða í tölvupósti á netfangið snorribs@valholl.is
Gjöld sem kaupandi þarf að standa straum af vegna kaupanna:
Stimpilgjald af kaupsamningi sem er hlutfall af fasteignamati. Stimpilgjald er 0,8% fyrir einstaklinga (0,4% við fyrstu kaup) og 1,6% fyrir lögaðila.
Þinglýsingargjald af kaupsamningi, veðskuldabréfum, veðleyfum o.fl. Þinglýsingargjald er kr. 2.700,- fyrir hvert skjal.
Lántökugjald lánastofnunar. Um lántökugjald vísast í gjaldskrá viðkomandi lánveitanda.
Umsýsluþóknun fasteignasölu skv. gjaldskrá.
Ef um nýbyggingu er að ræða greiðir kaupandi skipulagsgjald, 0,3% af brunabótamáti, þegar það er lagt á.
Eignin er skráð 102,1 fm á stærð skiptist í 92,4 fm íbúð og 9,7 fm geymslu.
Fasteignamat ársins 2026 er fyrirhugað 81.350.000 kr.
Þetta er góð eign miðsvæðis í Garðabæ á góðu verði sem vert er að skoða.
Nánari lýsing:
Anddyri: með fataskáp og flísum á gólfi.
Eldhús: með hvítri innréttingu, góðu borð- og skápaplássi, innbyggðum ísskáp og uppþvottavél og parketi á gólfi.
Þrjú svefnherbergi: öll með fataskápum og parketi á gólfi.
Baðherbergi: með baðkari með sturtuaðstöðu, aðstöðu fyrir þvottavél og þurrkara, handklæðaofni, skápum, innréttingu og speglaskáp og flísum á gólfi.
Stofa / borðstofa: samliggjandi í opnu rými með eldhúsi með parketi á gólfi og útgengi á 6,9 fm vestur svalir.
Geymsla: 9,7 fm sérgeymsla í kjallara.
Bílastæði: sérbílastæði í upphituðum bílakjallara.
Hjóla- vagnageymsla: sameiginlega í kjallara.
Nánari upplýsingar veitir:
Snorri Björn Sturluson fasteignasali / lögfræðingur í síma 699-4407 eða í tölvupósti á netfangið snorribs@valholl.is
Gjöld sem kaupandi þarf að standa straum af vegna kaupanna:
Stimpilgjald af kaupsamningi sem er hlutfall af fasteignamati. Stimpilgjald er 0,8% fyrir einstaklinga (0,4% við fyrstu kaup) og 1,6% fyrir lögaðila.
Þinglýsingargjald af kaupsamningi, veðskuldabréfum, veðleyfum o.fl. Þinglýsingargjald er kr. 2.700,- fyrir hvert skjal.
Lántökugjald lánastofnunar. Um lántökugjald vísast í gjaldskrá viðkomandi lánveitanda.
Umsýsluþóknun fasteignasölu skv. gjaldskrá.
Ef um nýbyggingu er að ræða greiðir kaupandi skipulagsgjald, 0,3% af brunabótamáti, þegar það er lagt á.
Ár
Fasteignamat
Kaupverð
Stærð
Fermetraverð
20. júl. 2020
35.900.000 kr.
52.500.000 kr.
102.1 m²
514.202 kr.
Byggt á upplýsingum úr Þjóðskrá Íslands frá 2006-2025