Upplýsingar
Byggt 2024
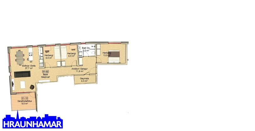
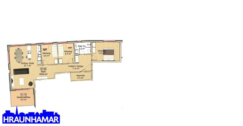
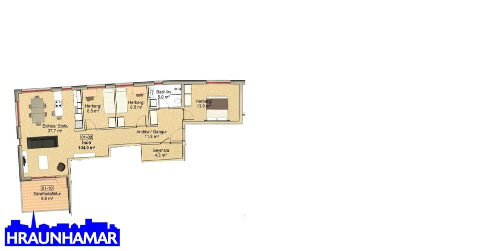
104,9 m²
4 herb.
1 baðherb.
3 svefnh.
Sameiginl. inngangur
Lyfta
Laus strax
Opið hús: 18. mars 2026
kl. 16:30
til 17:00
Verið velkomin - Opið hús í Hringhamri 5, miðvikudaginn 18. mars 2026 á milli kl. 16:30-17:00
Lýsing
MÖGULEIKI Á HLUTDEILDARLÁNI FRÁ HMS - SJÁ NÁNAR HÉR.
BÓKIÐ SKOÐUN - SÝNUM SAMDÆGURS - Hlynur s. 698-2603 Glódís s. 659-0510
Hraunhamar fasteignasala kynnir: Glæsilega fjögurra herbergja íbúð á fyrstu hæð í nýju fjölbýli á frábærum stað í Hamranesinu í Hafnarfirði.
Eignin er til afhendingar við kaupsamning.
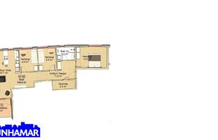
Íbúð 102 er 4ra herbergja 104,9 fm með 9,5 fm. sérafnotaflöt.
Nánari lýsing:
Forstofa með fataskáp.
Opið rými, þar sem eldhús og stofa eru samliggjandi.
Eldhús með smekklegri innréttingu og vönduðum eldunartækjum. Ísskápur og uppþvottavél fylgja.
Björt stofa þar sem útgengt er út á verönd.
Hjónaherbergi með fataskáp
Tvö svefnherbergi með fataskáp.
Flísalagt baðherbergi með innréttingu, upphengdu salerni, sturtu og þvottaaðstöðu. Gluggi á baðherbergi.
Geymsla er innan íbúðar.
Sameiginleg hjóla og vagnageymsla.
Fjarðarmót er byggingaraðili hússins og er reynslumikið og traust byggingarfyrirtæki sem hefur unnið við húsbyggingar í áratugi.
Ath. myndir eru af sýningaríbúð og því aðeins til viðmiðunar.
Bókið skoðun hjá sölumönnum Hraunhamars:
Hlynur Halldórsson, löggiltur fasteignasali, s. 698-2603, hlynur@hraunhamar.is
Glódís Helgadóttir, löggiltur fasteignasali s. 659-0510, glodis@hraunhamar.is
Helgi Jón Harðarson, sölustj. s. 893-2233, helgi@hraunhamar.is
Gjöld sem kaupandi þarf að standa straum af vegna kaupanna:
1. Stimpilgjald af kaupsamningi, fyrstu kaup (0,4%), almenn kaup (0,8%), lögaðilar (1,6%) af heildarfasteignamati.
2. Þinglýsingargjald af kaupsamningi, veðskuldabréfi, mögulegu veðleyfi o.fl. – kr. 3.800 kr. af hverju skjali.
3. Lántökugjald lánastofnunar er skv. verðskrá viðkomandi lánastofnunar.
4. Umsýslugjald til fasteignasölu skv. þjónustusamningi
Hraunhamar er ein af elstu fasteignasölum landsins, stofnuð 1983.
Hraunhamar í fararbroddi í rúm 40 ár! – Hraunhamar.is
BÓKIÐ SKOÐUN - SÝNUM SAMDÆGURS - Hlynur s. 698-2603 Glódís s. 659-0510
Hraunhamar fasteignasala kynnir: Glæsilega fjögurra herbergja íbúð á fyrstu hæð í nýju fjölbýli á frábærum stað í Hamranesinu í Hafnarfirði.
Eignin er til afhendingar við kaupsamning.
Íbúð 102 er 4ra herbergja 104,9 fm með 9,5 fm. sérafnotaflöt.
Nánari lýsing:
Forstofa með fataskáp.
Opið rými, þar sem eldhús og stofa eru samliggjandi.
Eldhús með smekklegri innréttingu og vönduðum eldunartækjum. Ísskápur og uppþvottavél fylgja.
Björt stofa þar sem útgengt er út á verönd.
Hjónaherbergi með fataskáp
Tvö svefnherbergi með fataskáp.
Flísalagt baðherbergi með innréttingu, upphengdu salerni, sturtu og þvottaaðstöðu. Gluggi á baðherbergi.
Geymsla er innan íbúðar.
Sameiginleg hjóla og vagnageymsla.
Fjarðarmót er byggingaraðili hússins og er reynslumikið og traust byggingarfyrirtæki sem hefur unnið við húsbyggingar í áratugi.
Ath. myndir eru af sýningaríbúð og því aðeins til viðmiðunar.
Bókið skoðun hjá sölumönnum Hraunhamars:
Hlynur Halldórsson, löggiltur fasteignasali, s. 698-2603, hlynur@hraunhamar.is
Glódís Helgadóttir, löggiltur fasteignasali s. 659-0510, glodis@hraunhamar.is
Helgi Jón Harðarson, sölustj. s. 893-2233, helgi@hraunhamar.is
Gjöld sem kaupandi þarf að standa straum af vegna kaupanna:
1. Stimpilgjald af kaupsamningi, fyrstu kaup (0,4%), almenn kaup (0,8%), lögaðilar (1,6%) af heildarfasteignamati.
2. Þinglýsingargjald af kaupsamningi, veðskuldabréfi, mögulegu veðleyfi o.fl. – kr. 3.800 kr. af hverju skjali.
3. Lántökugjald lánastofnunar er skv. verðskrá viðkomandi lánastofnunar.
4. Umsýslugjald til fasteignasölu skv. þjónustusamningi
Hraunhamar er ein af elstu fasteignasölum landsins, stofnuð 1983.
Hraunhamar í fararbroddi í rúm 40 ár! – Hraunhamar.is