Löggiltir fasteignasalar innan Félags fasteignasala:
Sveinbjörn Halldórsson
Halldór Freyr Sveinbjörnsson
Díana Arnfjörð
Hulda Ósk Baldvinsdóttir
Vista
svg

232

svg

215  Skoðendur

svg

Skráð  27. des. 2025

fjölbýlishús

Hádegisskarð 20

221 Hafnarfjörður

97.900.000 kr.

881.982 þ.kr./m2
Fasteignanúmer

F2528472

Fasteignamat

78.600.000 kr.

Brunabótamat

66.750.000 kr.

Áhvílandi

0 kr.

Arion banki – Reikna lán
Upplýsingar
svg
Byggt 2021
svg
111 m²
svg
3 herb.
svg
1 baðherb.
svg
2 svefnh.
svg
Þvottahús
svg
Sérinngangur
svg
Hjólastólaaðgengi
svg
Laus strax

Lýsing

Fasteignasalan Garður 

Fyrsta Svansvottaða byggingin í Hafnarfirði! Glæsileg 111 m² einstaklega björt og mjög vel hönnuð sérhæð í einstaklega fallegu húsi við Hádegisskarð 20 sem hlaut verðlaun Hafnarfjarðarbæjar fyrir frágang á lóð. Mikið hefur verið lagt í frágang bæði að innan sem utan. Íbúðin snýr í suður og er með stóra glugga í þrjár áttir. Stór sérafnotaflötur með sér verönd og skjólveggjum og tilbúnum ídráttarlögnum og affalli fyrir heitan pott. Eignin er sett upp sem þriggja herbergja en gert er ráð fyrir að hægt sé með auðveldum hætti að bæta við fjórða herberginu. Gólfhiti, Svartar Quartz borðplötur (Dekton), Siemens raftæki, niðurfellt spanhelluborð, undirlímdur vaskur, innfelldar led lýsingar o.f.l.. Sérmerkt bílastæði ásamt fjölda auka bílastæða. Sjálfstætt loftskiptikerfi í öllum rýmum íbúðarinnar endurnýtir hitann og skilar heimilinu góðum loftgæðum.

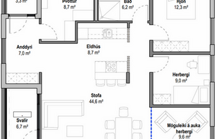
Skipting eignar: Sérinngangur.
Rúmgott anddyri með góðum fataskáp.
Inn af anddyri er þvottahús/geymsla með stórum búrskáp, þvottahússkáp og innréttingu fyrir þvottavél og þurrkara.
Frá anddyri er komið inn í stórt opið rými, stofu, borðstofu og eldhús.
Stofan er björt með stórum gluggum. Hellulögð 28 fm sérverönd sem er afgirt með fallegum skjólvegg einnig er búið að leggja lagnaleiðir og affall fyrir heitan pott á reitinum. Möguleiki er að útbúa þriðja herbergið úr hluta stofunnar.
Fallegt eldhús með djúpri borðplötu þar sem er gert ráð fyrir tækjageymslu. Stór eldunareyja sem hægt er að sitja við.
Tvö rúmgóð svefnherbergi með góðum fataskápum.
Baðherbergi er flísalagt að hluta með vönduðum 60*60 flísum.
Í sameign er sorpgeymsla, hjóla- og vagnageymsla ásamt tæknirými


Nánari lýsing:
SVANSVOTTUN

Það þýðir að húsin eru byggð eftir gæðakerfi þar sem tekið er á fjölmörgum þáttum sem byggingarreglugerð nær ekki yfir að sama marki. Má þar nefna: lágmarks rekstrarkostnaður, valin byggingarefni með hollustu íbúa og umhverfisáhrif í huga.
SÉRVERÖND OG GERT RÁÐ FYRIR HEITUM POTT
Falleg 28 fm sérverönd með fallegri skjólgirðingu. Búið er að leggja lagnaleiðir fyrir heitan pott hvort sem er rafmagns eða hitaveituskel. Einnig er búið að tengja frárennsli frá pottinum.
LOFTSKIPTIKERFI
 hverri íbúð er sjálfstætt Komfovent loftræstikerfi sem að blæs inn í öll rými íbúðar fersku lofti sem að hitað er upp með lofti sem að sogað er út. Nýtnin á orkunni þar er um 87%. Þetta þýðir lægri rekstrarkostnað en umfram allt betri loftgæði. Kerfið heldur líka loftinu á hreyfingu og í því eru líka síur fyrir loftið sem blásið er inn.
GÓLFHITI
Upphitun er með gólfhita en eini ofninn er handklæðaofn. Gólfhitagrindin er innfeld í veggnum og lokað með þjónustulúgu. Gólfhiti og loftræstikerfi vinna mjög vel saman og skila góðum loftgæðum. BAÐHERBERGI Stór og breið sturta. Sturtuglerið er ekki með slá heldur svörtum ramma og stöng upp í loft. Vandaðar flísar 60*60 flísar bæði á veggjum og gólfi. Spegill með baklýsingu. Innbyggður klósettkassi.
STÓRIR FATASKÁPAR
Stórir skápar bæði í anddyri og báðum svefnherbergjum. Skáparnir sem eru frá ikea eru frekar vel búnir af innvolsi en með einni ferð í IKEA geta kaupendur mótað þá eftir sínum þörfum.
ELDHÚS
Eldhúsborðið vegg megin er með dýpri borðplötu þannig að rými er fyrir kaffivél, brauðrist og slíkt fyrir innan án þess að rýra vinnuplássið á borðinu. Tenglar eru undir yfirskápum þannig að auðvelt er að þrífa veggplötuna á bak við sem að er hvít og slétt. Dekton borðplötur frá Cosentino úr quartz steini. Siemens raftæki og spanhelluborð er fellt niður í steinborð þannig að það er slétt við borðplötuna. Undirfelldur eldhúsvaskur. Undir efriskápum er LED undirskápaljós. Bakhliðin á eldhúseyjunni er klætt með hljóðdempandi þiljum.
INNFELLD LED LÝSING
Yfir eyju og framan við svefnherbergi eru innfelld 2ja metra LED ljós sem gefa nútímalegan tón og birtu. RAFLAGNIR Tenglar og rofar eru svart efni úr Q-línunni frá Berker. GÓLFEFNI Parketið er Buckingham eik og er 12 mm harðparket frá Byko og er með hörkustuðulinn AC5/33. Undir parketi jafnt sem flísum er hljóðdempandi undirlag bæði á efri og neðri hæðum. UTANHÚSSKLÆÐNING Lárétt svart klassískt bárujárn. Sementsplötur frá Viroc. Standandi 22 mm opin timburklæðning í anddyri og svalainnskoti.
TORFÞAK
Bara eins og í gamla daga þá er torfþak á húsinu með úthagatorfi sem aldrei þarf að slá. Það gefur m.a. friðað svæði fyrir fugla.
VIÐHALDSLÉTT LÓÐ
Göngustígar eru hellulagðir og með snjóbræðslu sem og allar tröppur. Þrír hvíldarpallar eru án snjóbræðslu. Við lóðarmörk bæði austan og vestan megin er lóðin tyrfð með úthagatorfi sem þarf aldrei að slá en á sérafnotaflötum og innar í lóðinni er hvítsmáratorf. Lesa má um þessar torftegundir inni á torf.is. Bílastæðin eru með nautsterkum Ecoraster grindum fylltum af möl. ÚTILÝSING Útilýsingin sem er við öll anddyri og svalir er 2ja metra innfelld óbein LED lýsing. Tröppur í lóð eru með handriðum með lýsingu undir handlistanum. Útilýsingin gefur einstaklega fallegt yfirbragð yfir eignirnar þegar dimma tekur.
HLEÐSLA RAFBÍLA
Lagnaleiðir eru að hleðslu rafbíla á 10 stöðum á lóðinni. Í aðaltöflu er gert ráð fyrir að hægt sé að tengja hleðslu rafbíls inn á rafmagnsmælir á hverri íbúð fyrir sig. Fallegir hleðslustaurar eru uppsettir fyrir þær hleðslustöðvar sem ekki koma á vegg.

Svansvottaðar eignir Allar eignirnar eru svansvottaðar af umhverfisstofnun íslands. Til þess að eignir fái svansvottun þurfa byggingaraðilar að standast mjög strangar kröfur á ýmsum sviðum. En það eru gerðar mun meiri kröfur á svansvottaðar eignir heldur en gert er kvöð um í byggingarreglugerð. · Eignirnar þurfa að standast strangari kröfur um hagkvæmni í orkunotkun með áherslu á orkusparnað
· Eignirnar eru hannaðar með sérstöku loftskiptikerfi til að tryggja loftgæði innan íbúðar sem skilar sér einnig í betri líftíma eignanna. · Meiri krafa er gerð á gæðastjórnun á byggingarferlinu en ítarleg handbók er gerð í lok framkvæmdanna · Strangar kröfur eru um innihald þeirra byggingarefna sem notuð eru · Gera þarf birtuútreikninga fyrir hverja og eina íbúð · Ýmsar strangar kröfur eru gerða til þess að lágmarka umhverfisspor bygginganna þegar þær eru reistar
Hagstæðari græn íbúðarlán Græn íbúðarlán eru veitt hjá nokkrum lánastofnunum fyrir þá sem kaupa svansvottaðar eignir. Fyrir slík lán eru ýmis lántökugjöld felld niður og boðið upp á betri lánakjör en á hefðbundnum eignum.


Um skoðunarskyldu:
Í lögum um fasteignakaup nr. 40/2002 er kveðið á um ríka skoðunarskyldu kaupenda á fasteignum.Fasteignasalan Garður bendir væntanlegum kaupendum á að kynna sér vel ástand fasteigna við skoðun og fyrir tilboðsgerð og ef þurfa þykir að leita til sérfræðinga um nánari ástandsskoðun.

Gjöld sem kaupandi þarf að greiða vegna kaupa:
1. Stimpilgjald af kaupsamningi er 0,8% af heildarfasteignamati hjá einstaklingum. Sé um fyrstu kaup að ræða er stimpilgjald af kaupsamningi 0,4% af heildarfasteignamati.
2. Stimpilgjald af kaupsamningi - 1,6% af heildarfasteignamati hjá lögaðilum.
3. Þinglýsingargjald af kaupsamningi, afsali, veðskuldabréfi, mögulegu veðleyfi o.fl. - kr. 2.700 af hverju skjali.
4. Lántökugjald lánastofnunar - samanber gjaldskrá viðkomandi lánastofnunar.
5. Umsýslugjald til fasteignasölu skv. kauptilboði.

www.fastgardur.is |  Bæjarhraun 12 | 220 Hafnafjörður | Fasteignasalan Garður 

img
Halldór Freyr Sveinbjörnsson
Lögg.fasteignasali innan félags fasteignasala
Fasteignasalan Garður
Bæjarhrauni 12, 220 Hafnarfjörður
Fasteignasalan Garður

Fasteignasalan Garður

Bæjarhrauni 12, 220 Hafnarfjörður
img

Halldór Freyr Sveinbjörnsson

Bæjarhrauni 12, 220 Hafnarfjörður
Fasteignasalan Garður

Fasteignasalan Garður

Bæjarhrauni 12, 220 Hafnarfjörður

Halldór Freyr Sveinbjörnsson

Bæjarhrauni 12, 220 Hafnarfjörður