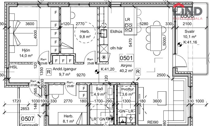
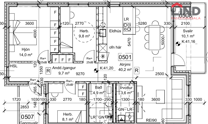
Baughamar, 221 Hafnarfjörður