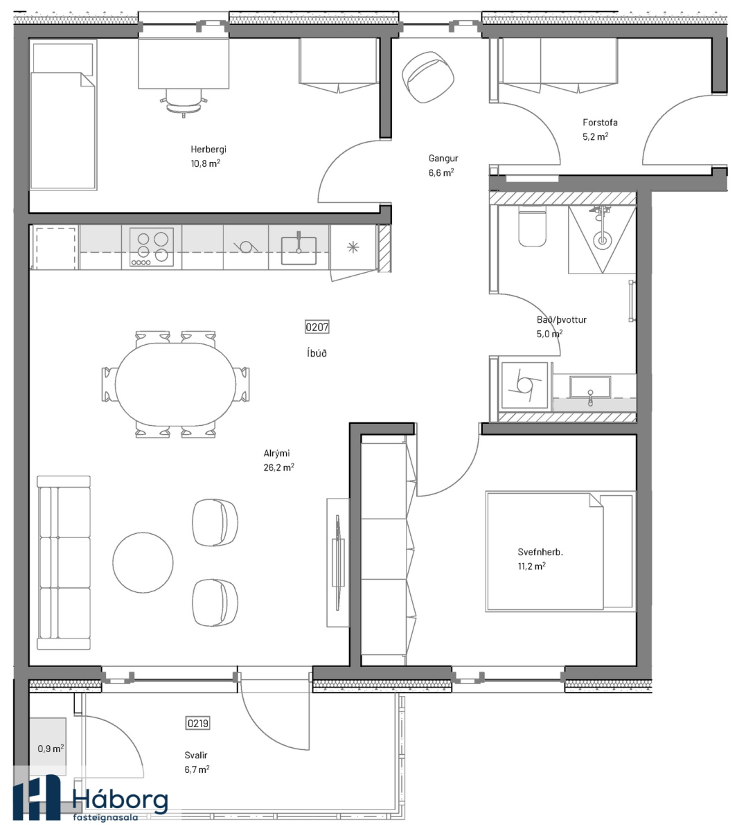
Garðabraut, 300 Akranes