Löggiltir fasteignasalar innan Félags fasteignasala:
Ástþór Reynir Guðmundsson
Vigdís R. S. Helgadóttir
Guðbjörg Helga Jóhannesdóttir
Gylfi Jens Gylfason
Sigrún Matthea Sigvaldadóttir
Sveinn Gíslason
Páll Guðmundsson
Þórarinn Arnar Sævarsson
Berglind Hólm Birgisdóttir
Þorsteinn Gíslason
Guðrún Lilja Tryggvadóttir
Brynjar Ingólfsson
Guðný Þorsteinsdóttir
Bjarni Blöndal
Þorsteinn Ólafs
Þórdís Björk Davíðsdóttir
Jóhann Kristinn Jóhannesson
Bjarný Björg Arnórsdóttir
Salvör Þóra Davíðsdóttir
Magga Sigríður Gísladóttir
Upplýsingar
Byggt 1988
252,8 m²
9 herb.
2 baðherb.
4 svefnh.
Þvottahús
Útsýni
Sérinngangur
Laus strax
Lýsing
NÁNARI UPPLÝSINGAR FÆRÐU HJÁ GUÐNÝJU ÞORSTEINS Í SÍMA 7715211 EÐA GUDNYTH@REMAX.IS
SMELLTU HÉR OG SJÁÐU KYNNINGU AF ÞESSARI EINSTÖKU EIGN
SMELLTU HÉR OG SJÁÐU EIGNINA Í 3D
EIGNIN ER LAUS VIÐ KAUPSAMNING
RE/MAX og GUÐNÝ ÞORSTEINS Löggiltur fasteignasali kynna í einkasölu: Einstakt 252,8fm einbýlishús á 2 hæðum með sérlega fallegu útsýni á gróinni fallegri 782fm lóð neðst við sjóinn í Hverafold í Reykjavík. Virkilega bjart og fallegt hús á einstökum stað.
SMELLTU HÉR OG FÁÐU SÖLUYFIRLIT
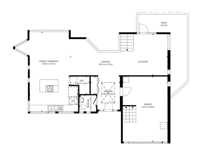
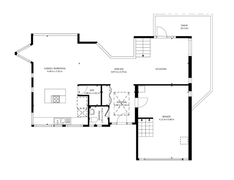
Góð lofthæð er í stórum hluta eignarinnar, af efri hæð er horft yfir hluta neðri hæðar hússins. Stiginn niður á neðri hæð er við stóran sólskála en þar er sérlega fallegt útsýni yfir voginn, sólskálinn gefur fallega og opna birtu inn í húsið. Gert hefur verið ráð fyrir arni í setustofu á neðri hæð og við borðstofu á efri hæð. Rúmgóð 4 herbergi með möguleika á fleirum. Gott eldhús með stórri borðstofu, 2 stofur, 1 baðherbergi og 1 gesta salerni, innbyggður bílskúr með milli lofti að hluta. Einstök gróinn skjólsæl lóð til suðurs með heitum potti.
Lýsing eignar:
Efri hæð:
Forstofa: Er með björt með þakgluggum, innbyggðum fataskápum með rennihurðum, náttúru steinn á gólfi.
Salerni: Er inn af forstofu með náttúru stein á gólfi
Alrými/setustofa: Komið er inn í fallegt alrými þar sólaskálinn nýtur sýn einstaklega vel með fallegu útsýni. Á hægri hönd er stofa með útgangi út á svalir til suðurs. Til vinstri er gengið inn að borðstofu og eldhúsi, þetta er rúmgott rými sem bíður upp á ýmsa möguleika, horft er yfir neðri hæð hússins. Náttúru steinn ásamt parketi að hluta á gólfi.
Eldhús/borðstofa: Er rúmgott með eyju og góðu skápa- og skúffuplássi. Borðstofan er stór og björt (hægt er að opna arinn sem þegar er staðsettur í borðstofu). Náttúru steinn á gólfi.
Búr: Er inn af eldhúsi.
Stigi/Sólstofa: Gengið er niður fallegan stiga með viðar þrepum, stiginn er staðsettur við sólskálann og gefur því fallega birtu með einstöku útsýni.
Neðri hæð:
Alrými: Er rúmgott og leiðir inn í allar vistaverur þessarar hæðar ásamt útgangi út á verönd með heitum potti og skjólsælum grónum garði. Gólfefni eru náttúrusteinn ásamt parketi.
Stofa: Gengið er niður 1 þrep í fallegt rými með möguleika á stórum arni, há lofthæð gerir rýmið enn tignarlegra.
Baðherbergi: Er flísalagt í hólf og gólf með 2 vöskum, góðu hirsluplássi, sturtu ásamt baðkari sem fellt er ofan í gólf.
Þvottahús: Er inn af baðherbergi.
Herbergi I: Er rúmgott með, parket á gólfi.
Herbergi II: Er með stórum horn fataskáp með rennihurðum, parket á gólfi.
Herbergi III: Er rúmgott með máluðum stein á gólfi.
Herbergi IIII: Er rúmgott með útgangi út á suður sólpall, málaður steinn á gólfi.
Arinn: Möguleiki er á arni í borðstofu og í setustofu á neðri hæð (hvorugir hafa verið notaðir). Þeir eru aðskildir en liggja í sama stokk.
Bílskúr: Er Innangengur úr húsi, 28 fm að stærð, með gluggum, bæði er heitt og kalt vatn ásamt milli lofti yfir hluta rýmisins sem gengið er upp í með stiga.
Viðhald:
2023 - Steypu ílögn á svalargólfi var fjarlægð og fræst fyrir snjóbræðslu og snjóbræðslulögn lögð inn og tengd við deilikistu í bílskúr. (Snjóbræðslan samanstendur af tveimur lagnamottum önnur fyrir framan svalahurð og út í horn á svölum og hin með gafl hliðinni.)
2023 - Niðurfall sem staðsett var við útvegg hússins var fært út í útkant svalanna til að sporna við að vatn liggi við útvegg hússins.
2023 - Inndæling var sett í sprungur á útvegg þar sem svalir og útveggur mætast
2023 - Rakaskynna var sett í kverkina á milli útveggjar og svalagólfs
2023 - Svalagólf steypt og vatnshalla svalargólfsins beint frá húsinu að nyðurföllum
2023 - Miðstöðvarlagnir endurnýjaðir undir gólfplötu út í ofn undir arinnbekk
2023 - Skipt um þakrennu á framanverðu húsinu og vatnshalli leiðréttur
2022 - Skipt var um hluta af gleri ásamt glugga í sólskála
Lóðin, er virkilega falleg með hellulagðri innkeyrslu, stétt fyrir framan hús auk fallegs gróðurs. Baklóð hússins er mjög skjólsælli og snýr suðurs, með heitum potti og steyptum veggjum. Gengið er niður í garðinn þar sem er draumi líkast með fallegum trjágróðri. Virkilega fallegt sjávarútsýni er frá lóðinni ásamt veröndinni og af svölum efri hæðar.
Staðsetning eignarinnar er sérlega góð í neðstu röð Hverafoldar alveg niður við sjóinn og frá eigninni nýtur mjög fallegs sjávarútsýnis. Stutt er í skóla, leikskóla, verslanir og aðra þjónustu.
Allar nánari upplýsingar og bókun á skoðun veitir Guðný Þorsteins löggiltur fasteigna- og skipasali s: 771-5211 eða á netfangið gudnyth@remax.is.
Í lögum um fasteignakaup nr. 40/2002 er kveðið á um ríka skoðunarskyldu kaupenda á fasteignum. Vill Re/Max því skora á væntanlega kaupendur að kynna sér vel ástand fasteigna fyrir kauptilboðsgerð og leita til þar til bærra sérfræðinga um nánari skoðun.
Gjöld sem kaupandi þarf að standa straum af vegna kaupanna:
1. Stimpilgjald af kaupsamningi - 0.8% af heildarfasteignamati / 1.6% fyrir lögaðila. (0.4% við fyrstu kaup einstaklinga).
2. Þinglýsingargjald af kaupsamningi, veðskuldabréfi, veðleyfi o.fl.- kr. 2.700 af hverju skjali.
3. Lántökugjald lánastofnunar - skv. gjaldskrá lánastofnunar
4. Umsýsluþóknun til fasteignasölu, 69.900 kr. m.vsk.
SMELLTU HÉR OG SJÁÐU KYNNINGU AF ÞESSARI EINSTÖKU EIGN
SMELLTU HÉR OG SJÁÐU EIGNINA Í 3D
EIGNIN ER LAUS VIÐ KAUPSAMNING
RE/MAX og GUÐNÝ ÞORSTEINS Löggiltur fasteignasali kynna í einkasölu: Einstakt 252,8fm einbýlishús á 2 hæðum með sérlega fallegu útsýni á gróinni fallegri 782fm lóð neðst við sjóinn í Hverafold í Reykjavík. Virkilega bjart og fallegt hús á einstökum stað.
SMELLTU HÉR OG FÁÐU SÖLUYFIRLIT
Góð lofthæð er í stórum hluta eignarinnar, af efri hæð er horft yfir hluta neðri hæðar hússins. Stiginn niður á neðri hæð er við stóran sólskála en þar er sérlega fallegt útsýni yfir voginn, sólskálinn gefur fallega og opna birtu inn í húsið. Gert hefur verið ráð fyrir arni í setustofu á neðri hæð og við borðstofu á efri hæð. Rúmgóð 4 herbergi með möguleika á fleirum. Gott eldhús með stórri borðstofu, 2 stofur, 1 baðherbergi og 1 gesta salerni, innbyggður bílskúr með milli lofti að hluta. Einstök gróinn skjólsæl lóð til suðurs með heitum potti.
Lýsing eignar:
Efri hæð:
Forstofa: Er með björt með þakgluggum, innbyggðum fataskápum með rennihurðum, náttúru steinn á gólfi.
Salerni: Er inn af forstofu með náttúru stein á gólfi
Alrými/setustofa: Komið er inn í fallegt alrými þar sólaskálinn nýtur sýn einstaklega vel með fallegu útsýni. Á hægri hönd er stofa með útgangi út á svalir til suðurs. Til vinstri er gengið inn að borðstofu og eldhúsi, þetta er rúmgott rými sem bíður upp á ýmsa möguleika, horft er yfir neðri hæð hússins. Náttúru steinn ásamt parketi að hluta á gólfi.
Eldhús/borðstofa: Er rúmgott með eyju og góðu skápa- og skúffuplássi. Borðstofan er stór og björt (hægt er að opna arinn sem þegar er staðsettur í borðstofu). Náttúru steinn á gólfi.
Búr: Er inn af eldhúsi.
Stigi/Sólstofa: Gengið er niður fallegan stiga með viðar þrepum, stiginn er staðsettur við sólskálann og gefur því fallega birtu með einstöku útsýni.
Neðri hæð:
Alrými: Er rúmgott og leiðir inn í allar vistaverur þessarar hæðar ásamt útgangi út á verönd með heitum potti og skjólsælum grónum garði. Gólfefni eru náttúrusteinn ásamt parketi.
Stofa: Gengið er niður 1 þrep í fallegt rými með möguleika á stórum arni, há lofthæð gerir rýmið enn tignarlegra.
Baðherbergi: Er flísalagt í hólf og gólf með 2 vöskum, góðu hirsluplássi, sturtu ásamt baðkari sem fellt er ofan í gólf.
Þvottahús: Er inn af baðherbergi.
Herbergi I: Er rúmgott með, parket á gólfi.
Herbergi II: Er með stórum horn fataskáp með rennihurðum, parket á gólfi.
Herbergi III: Er rúmgott með máluðum stein á gólfi.
Herbergi IIII: Er rúmgott með útgangi út á suður sólpall, málaður steinn á gólfi.
Arinn: Möguleiki er á arni í borðstofu og í setustofu á neðri hæð (hvorugir hafa verið notaðir). Þeir eru aðskildir en liggja í sama stokk.
Bílskúr: Er Innangengur úr húsi, 28 fm að stærð, með gluggum, bæði er heitt og kalt vatn ásamt milli lofti yfir hluta rýmisins sem gengið er upp í með stiga.
Viðhald:
2023 - Steypu ílögn á svalargólfi var fjarlægð og fræst fyrir snjóbræðslu og snjóbræðslulögn lögð inn og tengd við deilikistu í bílskúr. (Snjóbræðslan samanstendur af tveimur lagnamottum önnur fyrir framan svalahurð og út í horn á svölum og hin með gafl hliðinni.)
2023 - Niðurfall sem staðsett var við útvegg hússins var fært út í útkant svalanna til að sporna við að vatn liggi við útvegg hússins.
2023 - Inndæling var sett í sprungur á útvegg þar sem svalir og útveggur mætast
2023 - Rakaskynna var sett í kverkina á milli útveggjar og svalagólfs
2023 - Svalagólf steypt og vatnshalla svalargólfsins beint frá húsinu að nyðurföllum
2023 - Miðstöðvarlagnir endurnýjaðir undir gólfplötu út í ofn undir arinnbekk
2023 - Skipt um þakrennu á framanverðu húsinu og vatnshalli leiðréttur
2022 - Skipt var um hluta af gleri ásamt glugga í sólskála
Lóðin, er virkilega falleg með hellulagðri innkeyrslu, stétt fyrir framan hús auk fallegs gróðurs. Baklóð hússins er mjög skjólsælli og snýr suðurs, með heitum potti og steyptum veggjum. Gengið er niður í garðinn þar sem er draumi líkast með fallegum trjágróðri. Virkilega fallegt sjávarútsýni er frá lóðinni ásamt veröndinni og af svölum efri hæðar.
Staðsetning eignarinnar er sérlega góð í neðstu röð Hverafoldar alveg niður við sjóinn og frá eigninni nýtur mjög fallegs sjávarútsýnis. Stutt er í skóla, leikskóla, verslanir og aðra þjónustu.
Allar nánari upplýsingar og bókun á skoðun veitir Guðný Þorsteins löggiltur fasteigna- og skipasali s: 771-5211 eða á netfangið gudnyth@remax.is.
Í lögum um fasteignakaup nr. 40/2002 er kveðið á um ríka skoðunarskyldu kaupenda á fasteignum. Vill Re/Max því skora á væntanlega kaupendur að kynna sér vel ástand fasteigna fyrir kauptilboðsgerð og leita til þar til bærra sérfræðinga um nánari skoðun.
Gjöld sem kaupandi þarf að standa straum af vegna kaupanna:
1. Stimpilgjald af kaupsamningi - 0.8% af heildarfasteignamati / 1.6% fyrir lögaðila. (0.4% við fyrstu kaup einstaklinga).
2. Þinglýsingargjald af kaupsamningi, veðskuldabréfi, veðleyfi o.fl.- kr. 2.700 af hverju skjali.
3. Lántökugjald lánastofnunar - skv. gjaldskrá lánastofnunar
4. Umsýsluþóknun til fasteignasölu, 69.900 kr. m.vsk.