Upplýsingar
Byggt 2025
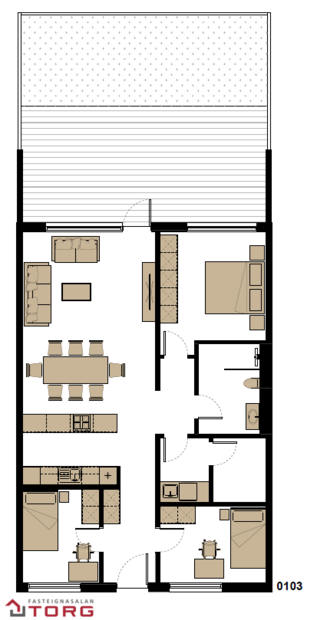
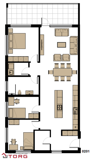
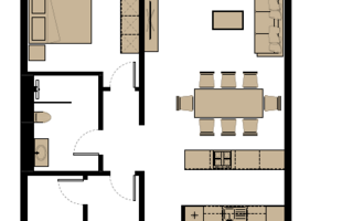
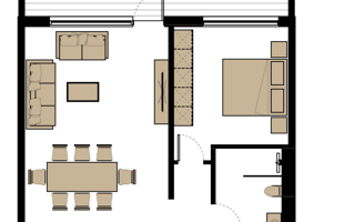
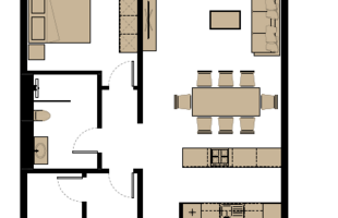
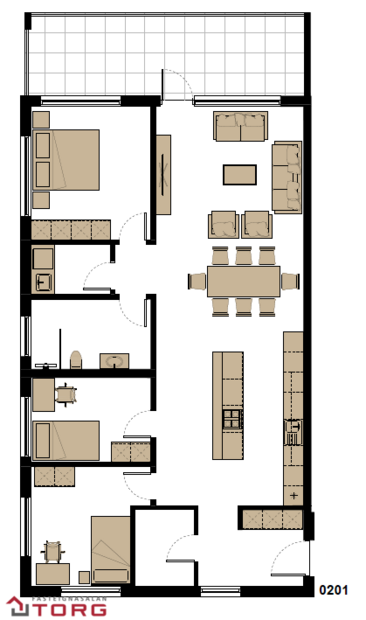
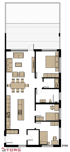
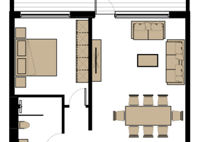
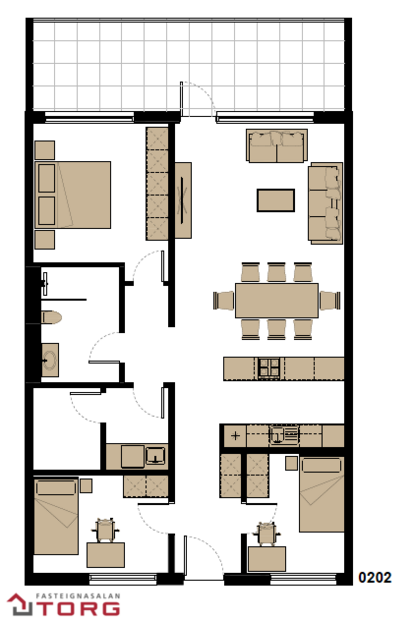
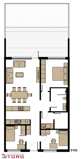
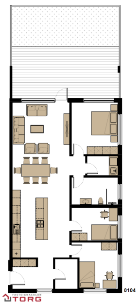
107,1 m²
4 herb.
1 baðherb.
3 svefnh.
Þvottahús
Sérinngangur
Lýsing
*SELJENDUR SKOÐA ÖLL SKIPTI*
TORG FASTEIGNASALA KYNNIR Í SÖLU: Nýbygging í Hrafnaborg1, Vogum. Eignin er á neðri hæð og er fullbúin, fjögurra herbergja og 107,1 fm. Íbúðirnar skilast með gólfefnum, háfi yfir eldavél, ísskáp og uppþvottavél. Sér inngangur og sérafnotareitur til suðvesturs. Geymsla og sér þvottahús innan íbúðar. Allar nánari upplýsingar veitir Margrét Rós lgf. í s. 856-5858 eða margret@fstorg.is
BÓKIÐ SKOÐUN:
MARGRÉT SÍMI 856 5858
AÐALSTEINN SÍMI 773 3532
MATTHILDUR LGFS SÍMI 690 4966
Um verkefnið:
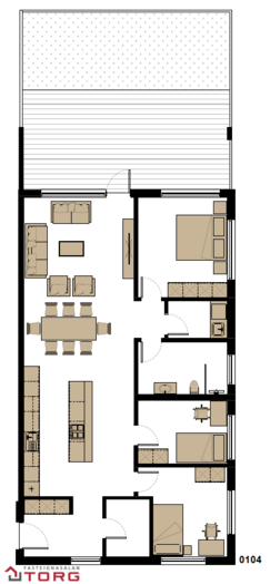
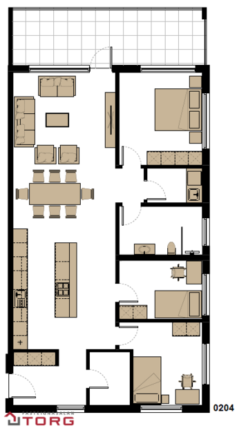
Um er að ræða hús á tveim hæðum með 8 íbúðum og er húsið í nýju, fjölskylduvænu íbúðahverfi í Grænuborg, Vogum.
Vel skipulagðar, fjögurra herbergja íbúðir.
Íbúðirnar afhendast allar fullbúnar að innan sem utan, með gólfefnum og eru allar með sér inngangi í opnu stigahúsi.
Svalir og sólpallar eru á móti suðvestri.
Eignin skilast fullbúin skv. skilalýsingu seljanda:
Íbúðin skilast fullbúin með gólfefnum, parket á stofu, eldhúsi og herbergjum og flísar á votrýmum. Sérsmíðaðar innréttingar í eldhúsi.
Tæki í eldhúsi, ísskápur, uppþvottavél, helluborð, bakaraofn og háfur frá AEG eða sambærilegt. Baðherbergi er flísalagt í hólf og gólf með með dökkum og ljósum flísum með marmaraáferð. Öll salerni eru upphengd og innbyggð í vegg. Á baði er handklæðaofn. Sturta er í öllum íbúðum og sturtubotn flísalagður. Húsið er staðsteypt og þakvirkið er einangrað með sniðskorinni plasteinangrum ofan á 0,2 mm þolplast og rykvarið að ofan með SIKA PLAN pvc þakdúk, dybbluðum í stein og flipafestum. Gluggar eru ál/trégluggar og glerjaðir með tvöföldu K-gleri. Fyrir nánari lýsingu, sjá skilalýsingu byggingaraðila.
Kaupandi greiðir skipulagsgjald af eigninni sem nemur 0,3% af brunabótamati og leggst á eftir að endanlegt brunabótamat hefur fengist á eignina.
Grænabyggð – Framtíðarhverfi í einstöku umhverfi
Grænabyggð er vel staðsett nýtt hverfi við sjávarsíðuna, hannað með fjölskylduvænt umhverfi í huga. Í nágrenni eru leik- og grunnskólar, og fyrirhuguð er bygging nýrra skólamannvirkja samhliða stækkun hverfisins. Gert er ráð fyrir að Grænabyggð verði hverfi fyrir um 1.500 íbúa, þar sem ríflega 800 íbúðir verða byggðar á næstu tíu árum. Svæðið þróast í hægu og öruggu skrefum, með blandaða byggð þar sem áhersla er lögð á lítil sérbýli. Uppbygging hverfisins er í samræmi við samkomulag Grænubyggðar ehf. og Sveitarfélagsins Voga, sem tryggir skipulagða stækkun með nauðsynlegri innviðauppbyggingu.
Sjá nánar um Grænubyggð hér
Forsendur söluyfirlits:
Söluyfirlit er samið af fasteignasala í samræmi við ákvæði laga nr. 70/2015. Þær upplýsingar sem fram koma í söluyfirliti þessu eru sóttar í opinberar skrár, til seljanda sjálfs og eftir atvikum til húsfélags. Seljandi veitir upplýsingar um eign í samræmi við upplýsingaskyldu laga um fasteignakaup nr. 40/2002. Fasteignasali sannreynir að þær upplýsingar séu réttar með sjónskoðun á eigninni. Fasteignasali getur ekki fullyrt um ástand og eiginleika þeirra hluta fasteigna sem ekki eru aðgengilegir og sjást ekki berum augum, t.d. lagnir, dren, skólp og þak.
Gjöld sem kaupandi þarf að standa straum af vegna kaupanna:
Stimpilgjald af kaupsamningi sem er hlutfall af fasteignamati. Stimpilgjald er 0,8% fyrir einstaklinga (0,4% við fyrstu kaup m.v. að lágmarki 50% eignarhlut) og 1,6% fyrir lögaðila.Þinglýsingargjald hvers skjals er kr. 2.700,- .Lántökugjald lánastofnunar skv. gjaldskrá viðkomandi lánveitanda.Umsýsluþóknun fasteignasölu skv. gjaldskrá. Ef um nýbyggingu er að ræða greiðir kaupandi skipulagsgjald, 0,3% af brunabótamati, þegar það er lagt á.
TORG fasteignasala bendir fasteignakaupendum á ríka skoðunarskyldu kaupenda sem kveðið er á í lögum um fasteignakaup nr.40/2002. Skorað er á kaupendur að kynna sér vandlega ástand fasteigna og nýta til þess aðstoð sérfræðinga. Sömuleiðis er bent á upplýsingaskyldu seljanda samanber 26.gr. Laga nr.40/2002 um fasteignakaup og 25.gr. laga nr.26/1994 um fjöleignarhús. Seljanda er bent á að kynna sér tilvitnaðar lagagreinar.
eignarhús.
TORG FASTEIGNASALA KYNNIR Í SÖLU: Nýbygging í Hrafnaborg1, Vogum. Eignin er á neðri hæð og er fullbúin, fjögurra herbergja og 107,1 fm. Íbúðirnar skilast með gólfefnum, háfi yfir eldavél, ísskáp og uppþvottavél. Sér inngangur og sérafnotareitur til suðvesturs. Geymsla og sér þvottahús innan íbúðar. Allar nánari upplýsingar veitir Margrét Rós lgf. í s. 856-5858 eða margret@fstorg.is
BÓKIÐ SKOÐUN:
MARGRÉT SÍMI 856 5858
AÐALSTEINN SÍMI 773 3532
MATTHILDUR LGFS SÍMI 690 4966
Um verkefnið:
Um er að ræða hús á tveim hæðum með 8 íbúðum og er húsið í nýju, fjölskylduvænu íbúðahverfi í Grænuborg, Vogum.
Vel skipulagðar, fjögurra herbergja íbúðir.
Íbúðirnar afhendast allar fullbúnar að innan sem utan, með gólfefnum og eru allar með sér inngangi í opnu stigahúsi.
Svalir og sólpallar eru á móti suðvestri.
Eignin skilast fullbúin skv. skilalýsingu seljanda:
Íbúðin skilast fullbúin með gólfefnum, parket á stofu, eldhúsi og herbergjum og flísar á votrýmum. Sérsmíðaðar innréttingar í eldhúsi.
Tæki í eldhúsi, ísskápur, uppþvottavél, helluborð, bakaraofn og háfur frá AEG eða sambærilegt. Baðherbergi er flísalagt í hólf og gólf með með dökkum og ljósum flísum með marmaraáferð. Öll salerni eru upphengd og innbyggð í vegg. Á baði er handklæðaofn. Sturta er í öllum íbúðum og sturtubotn flísalagður. Húsið er staðsteypt og þakvirkið er einangrað með sniðskorinni plasteinangrum ofan á 0,2 mm þolplast og rykvarið að ofan með SIKA PLAN pvc þakdúk, dybbluðum í stein og flipafestum. Gluggar eru ál/trégluggar og glerjaðir með tvöföldu K-gleri. Fyrir nánari lýsingu, sjá skilalýsingu byggingaraðila.
Kaupandi greiðir skipulagsgjald af eigninni sem nemur 0,3% af brunabótamati og leggst á eftir að endanlegt brunabótamat hefur fengist á eignina.
Grænabyggð – Framtíðarhverfi í einstöku umhverfi
Grænabyggð er vel staðsett nýtt hverfi við sjávarsíðuna, hannað með fjölskylduvænt umhverfi í huga. Í nágrenni eru leik- og grunnskólar, og fyrirhuguð er bygging nýrra skólamannvirkja samhliða stækkun hverfisins. Gert er ráð fyrir að Grænabyggð verði hverfi fyrir um 1.500 íbúa, þar sem ríflega 800 íbúðir verða byggðar á næstu tíu árum. Svæðið þróast í hægu og öruggu skrefum, með blandaða byggð þar sem áhersla er lögð á lítil sérbýli. Uppbygging hverfisins er í samræmi við samkomulag Grænubyggðar ehf. og Sveitarfélagsins Voga, sem tryggir skipulagða stækkun með nauðsynlegri innviðauppbyggingu.
Sjá nánar um Grænubyggð hér
Forsendur söluyfirlits:
Söluyfirlit er samið af fasteignasala í samræmi við ákvæði laga nr. 70/2015. Þær upplýsingar sem fram koma í söluyfirliti þessu eru sóttar í opinberar skrár, til seljanda sjálfs og eftir atvikum til húsfélags. Seljandi veitir upplýsingar um eign í samræmi við upplýsingaskyldu laga um fasteignakaup nr. 40/2002. Fasteignasali sannreynir að þær upplýsingar séu réttar með sjónskoðun á eigninni. Fasteignasali getur ekki fullyrt um ástand og eiginleika þeirra hluta fasteigna sem ekki eru aðgengilegir og sjást ekki berum augum, t.d. lagnir, dren, skólp og þak.
Gjöld sem kaupandi þarf að standa straum af vegna kaupanna:
Stimpilgjald af kaupsamningi sem er hlutfall af fasteignamati. Stimpilgjald er 0,8% fyrir einstaklinga (0,4% við fyrstu kaup m.v. að lágmarki 50% eignarhlut) og 1,6% fyrir lögaðila.Þinglýsingargjald hvers skjals er kr. 2.700,- .Lántökugjald lánastofnunar skv. gjaldskrá viðkomandi lánveitanda.Umsýsluþóknun fasteignasölu skv. gjaldskrá. Ef um nýbyggingu er að ræða greiðir kaupandi skipulagsgjald, 0,3% af brunabótamati, þegar það er lagt á.
TORG fasteignasala bendir fasteignakaupendum á ríka skoðunarskyldu kaupenda sem kveðið er á í lögum um fasteignakaup nr.40/2002. Skorað er á kaupendur að kynna sér vandlega ástand fasteigna og nýta til þess aðstoð sérfræðinga. Sömuleiðis er bent á upplýsingaskyldu seljanda samanber 26.gr. Laga nr.40/2002 um fasteignakaup og 25.gr. laga nr.26/1994 um fjöleignarhús. Seljanda er bent á að kynna sér tilvitnaðar lagagreinar.
eignarhús.