Upplýsingar
Byggt 2024
61,9 m²
2 herb.
1 baðherb.
1 svefnh.
Sameiginl. inngangur
Lyfta
Laus strax
Lýsing
Betri Stofan fasteignasala Borgartúni 30 og Jason Kristinn Ólafsson, sími 7751515 - jason@betristofan.is kynnir: SÝNUM DAGLEGA BORGARTÚN 24
Glæsilegar nýjar íbúðir í vel staðsettu fjölbýlishúsi í Borgartúni í Reykjavík. Íbúðir afhendast fullbúnar með vönduðum innréttingum, innbyggðum eldhústækjum og gólfefnum. Fasteignamat um næstu áramót verður kr. 62.650.000-
Heimasíða
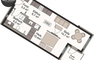
Um er að ræða nánar tiltekið íbúð 302 í Borgartúni 24a, 2ja herbergja íbúð með svölum sem snúa til suðausturs. Samkvæmt Fasteignaskrá HMS er eignin skráð samtals 61,9 fm. Íbúðin skiptist í forstofu, eldhús, stofu og borðstofu í alrými, opið svefnrými, baðherbergi með þvottaaðstöðu. Sérgeymsla fylgir íbúðinni sem er 12 fm. Svalir snúa í suðaustur.
Borgartún 24 er glæsilegt 7 hæða fjölbýlishús með 64 íbúðum á 2.-7 hæð og verslunar- og þjónusturýmum á 1. hæð í einu helsta viðskiptahverfi borgarinnar. Í Borgartúni er blönduð byggð íbúða, skrifstofu-, verslunar- og þjónustuhúsnæðis. Frábær staðsetning í næsta nágrenni við stóra vinnustaði og alla helstu þjónustu, í göngufæri frá miðbænum og Laugardalnum. Byggingin er byggð utan um sameiginlegan inngarð. Á 4. hæð er einnig sameiginlegur þakgarður, á 6. hæð er sameiginlegur þakgarður og á 7. hæð eru sameiginlegar þaksvalir.
Frágangur íbúða að innan: Vandaðar þýskar innréttingar frá Nobilia í eldhúsi, baði og herbergjum (söluaðili er GKS). Íbúðirnar afhendast fullbúnar með tækjum og gólfefnum. Eldhúsraftæki koma frá Siemens, ísskápur og uppþvottavél eru innbyggð. Harðparket á gólfum herbergja og í alrými. Gólf á baðherbergjum og þvottahúsum eru flísalögð. Hreinlætistæki frá Grohe.
Frágangur utanhúss: Húsið er staðsteypt, einangrað að utan og klætt með viðhaldsléttri álklæðningu eða sambærilegu efni. Timbur/ál gluggar. Lóð og bílastæði: Sameiginlegur inngarður er á 2. hæð og sameiginlegar þaksvalir eru á 4. hæð. Í bílakjallara eru 39 bílastæði, þar af 4 fyrir hreyfihamlaða, og 30 bílastæði eru á lóð. Bílastæði fyrir hreyfihamlaða er einnig á plani við aðalinngang.
Hiti og rafmagn: Hiti er sameiginlegur og reiknast samkvæmt hlutfallstölu en rafmagn er á sérmæli fyrir hverja íbúð.
Skipulagsgjald: Kaupandi greiðir skipulagsgjald sem er 0,3% af brunabótamati.
Bókið skoðun:
Jason Kristinn Ólafsson, sími 775 1515 - löggiltur fasteignasali. - netfang: jason@betristofan.is
Þórhallur Biering löggiltur fasteignasali í síma 896-8232 eða thorhallur@betristofan.is
Glæsilegar nýjar íbúðir í vel staðsettu fjölbýlishúsi í Borgartúni í Reykjavík. Íbúðir afhendast fullbúnar með vönduðum innréttingum, innbyggðum eldhústækjum og gólfefnum. Fasteignamat um næstu áramót verður kr. 62.650.000-
Heimasíða
Um er að ræða nánar tiltekið íbúð 302 í Borgartúni 24a, 2ja herbergja íbúð með svölum sem snúa til suðausturs. Samkvæmt Fasteignaskrá HMS er eignin skráð samtals 61,9 fm. Íbúðin skiptist í forstofu, eldhús, stofu og borðstofu í alrými, opið svefnrými, baðherbergi með þvottaaðstöðu. Sérgeymsla fylgir íbúðinni sem er 12 fm. Svalir snúa í suðaustur.
Borgartún 24 er glæsilegt 7 hæða fjölbýlishús með 64 íbúðum á 2.-7 hæð og verslunar- og þjónusturýmum á 1. hæð í einu helsta viðskiptahverfi borgarinnar. Í Borgartúni er blönduð byggð íbúða, skrifstofu-, verslunar- og þjónustuhúsnæðis. Frábær staðsetning í næsta nágrenni við stóra vinnustaði og alla helstu þjónustu, í göngufæri frá miðbænum og Laugardalnum. Byggingin er byggð utan um sameiginlegan inngarð. Á 4. hæð er einnig sameiginlegur þakgarður, á 6. hæð er sameiginlegur þakgarður og á 7. hæð eru sameiginlegar þaksvalir.
Frágangur íbúða að innan: Vandaðar þýskar innréttingar frá Nobilia í eldhúsi, baði og herbergjum (söluaðili er GKS). Íbúðirnar afhendast fullbúnar með tækjum og gólfefnum. Eldhúsraftæki koma frá Siemens, ísskápur og uppþvottavél eru innbyggð. Harðparket á gólfum herbergja og í alrými. Gólf á baðherbergjum og þvottahúsum eru flísalögð. Hreinlætistæki frá Grohe.
Frágangur utanhúss: Húsið er staðsteypt, einangrað að utan og klætt með viðhaldsléttri álklæðningu eða sambærilegu efni. Timbur/ál gluggar. Lóð og bílastæði: Sameiginlegur inngarður er á 2. hæð og sameiginlegar þaksvalir eru á 4. hæð. Í bílakjallara eru 39 bílastæði, þar af 4 fyrir hreyfihamlaða, og 30 bílastæði eru á lóð. Bílastæði fyrir hreyfihamlaða er einnig á plani við aðalinngang.
Hiti og rafmagn: Hiti er sameiginlegur og reiknast samkvæmt hlutfallstölu en rafmagn er á sérmæli fyrir hverja íbúð.
Skipulagsgjald: Kaupandi greiðir skipulagsgjald sem er 0,3% af brunabótamati.
Bókið skoðun:
Jason Kristinn Ólafsson, sími 775 1515 - löggiltur fasteignasali. - netfang: jason@betristofan.is
Þórhallur Biering löggiltur fasteignasali í síma 896-8232 eða thorhallur@betristofan.is
Gjöld sem kaupandi þarf að standa straum af ef að kaupum verður:
1. Stimpilgjald af fasteignamati fasteignar er 0.8%, en 0,4% fyrir fyrstu kaup og 1,6% fyrir lögaðila.
2. Þinglýsingargjald: kaupsamningi, skuldabréfi, veðleyfi, afsali o.s.frv. er kr. 2.700 af hverju skjali.
3. Lántökukostnaður samkvæmt verðskrá viðkomandi lánastofnunar.
4. Umsýslugjald til fasteignasölu skv. gjaldskrá.