Löggiltir fasteignasalar innan Félags fasteignasala:
Sverrir Kristinsson
Kjartan Hallgeirsson
Guðlaugur Ingi Guðlaugsson
Daði Hafþórsson
Gunnar Helgi Einarsson
Gunnar Bergmann Jónsson
Lilja Guðmundsdóttir
Jenný Sandra Gunnarsdóttir
Kári Sighvatsson
Vista
fjölbýlishús

Vesturvin V3 - íbúð 406

101 Reykjavík

147.900.000 kr.

1.141.204 þ.kr./m2
Fasteignanúmer

F2523964

Fasteignamat

116.650.000 kr.

Brunabótamat

91.530.000 kr.

Áhvílandi

0 kr.

Arion banki – Reikna lán
Upplýsingar
svg
Byggt 2024
svg
129,6 m²
svg
4 herb.
svg
2 baðherb.
svg
3 svefnh.
svg
Þvottahús
svg
Sameiginl. inngangur
svg
Bílastæði
svg
Lyfta
Opið hús: 18. janúar 2026 kl. 12:00 til 12:30

Sölumenn Eignamiðlunar taka á móti áhugasömum í móttökurými. Sýnum allar óseldar íbúðir.

Lýsing

Eignamiðlun kynnir:

Hafðu samband og bókaðu skoðun. Get sýnt allar óseldar íbúðir með skömmum fyrirvara:  Brynjar Þór Sumarliðason, löggiltur fasteignasali simi 896-1168, brynjar@eignamidlun.is

Íbúðin
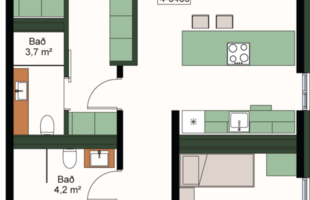
Ánanaust 5, Vesturvin V3 íb 406 merkt 04-06 er 129.6 fm, fjögurra herbergja íbúð á fjórðu hæð með stæði í bílageymslu í nýju glæsilegu lyftuhúsi. Stór og björt stofa og eldhús með eldunareyju. Þrjú svefnherbergi, baðherbergi, gestasnyrtingu, sér þvottaherbergi innan íbúðar. Svalir frá stofu til vestur og frá anddyri til austurs og sérgeymslu í kjallara. Innréttingaþema íbúðar er Eimur. Íbúðin er tilbúin til afhendingar.


Smelltu hér til að fá nánari upplýsingar um verkefnið

Smellið hér til að fá söluyfirlit sent strax

Opinber skráning eignarinnar: Birt flatarmál er 129.6 fm, með sérgeymslu í sameign sem er merkt 00-31, skráð 12,5 fm. Stæði í bílageymslu merkt B-11 fylgir íbúðinni.
Hönnunarþema íbúðar er Eimur.

Vesturvin
Vesturvin er nýr yndisreitur í uppbyggingu í Vesturbæ Reykjavíkur. Reiturinn sem áður hét Héðinsreitur verður glæsilegt kennileiti sem auðgar borgina og bætir lífsgæði íbúanna.

Mikill metnaður hefur verði lagður í íbúðirnar á yndisreitnum Vesturvin. Það lýsir sé meðal annars í góðu innra flæði íbúða og vönduðu efnisvali í alla staði. Meðal helstu kostum íbúðanna má nefna:
-       Hágæða ítalskar innréttingar frá Cassina
-       Borðplötur úr steini
-       Gólfsíðir gluggar
-       Gólfhiti
-       Þaksvalir í mörgum íbúða
-       Möguleiki á heitum potti fyrir hluta af íbúðum  
-       Vönduð heimilistæki frá Miele og Siemens
-       Sér baðherbergi inn af svefnherbergi í stærri íbúðum auk fataherbergja.
-       Gestasnyrting í fjölmörgum íbúðum
-       Sér þvottahús í flestum þriggja herbergja íbúðum og stærri
-       Einkabílastæði í bílakjallara fylgir mörgum íbúðum

Hönnun.
Fengnir hafa verið traustir og reynslumiklir aðilar til að sjá um framkvæmd verkefnisins og verkfræðihönnun. Jáverk ehf. mun byggja húsin og verkfræðistofurnar Mannvit og Verkhönnun sjá um verkfræðihönnun.
Mikil vinna hefur verið lögð í flæði íbúða og val á innréttingum sem spegla listrænan metnað í verkefninu sem heild.
Ítölsku innanhússhönnuðirnir hjá Studio Marco Piva hafa hannað þrjú þemu fyrir innri frágang íbúðanna sem sækja innblástur í íslenska landslagið, hugtökin eru Eimur, Sær og Blámi. Hönnuninni er ætlað að skapa einstakan lífstíl sem sameinar íslenskan arkitektúr og ítalska innanhúshönnun og glæsilegan og vandaðan hátt.
 
Útsýni
Stórkostlegt útsýni verður úr íbúðum við Ánanaust yfir Faxaflóann, Esjuna og Snæfellsnes. Af efri hæðum íbúða við Vesturgötuna verður skemmtilegt útsýni yfir gamla vesturbæinn.
 
Nánari upplýsingar veita fasteignasalar Eignamiðlunar: 
Brynjar Þ. Sumarliðason 896-1168 brynjar@eignamidlun.is

Kjartan Hallgeirsson 824-9093 kjartan@eignamidlun.is
Ólafur H. Guðgeirsson 663-2508 olafur@eignamidlun.is
Unnar Kjartansson 867-0968 unnar@eignamidlun.is 
Lilja Guðmundsdóttir 649-3868 lilja@eignamidlun.is

***
Ábyrg þjónusta í áratugi. Eignamiðlun var stofnuð 1957 og er elsta starfandi fasteignasala á Íslandi. Reynsla, heiðarleiki og þekking á fasteignamarkaðnum eru grunnur að farsælum viðskiptum. 

Eignamiðlun Grensásvegi 11, 108 Reykjavík - Opið frá kl. 9-17 mánudaga til fimmtudaga og 9-16 á föstudögum.

Heimasíða Eignamiðlunar

Eignamiðlun á Facebook

Eignamiðlun

Eignamiðlun

Grensásvegi 11, 108 Reykjavík
Eignamiðlun

Eignamiðlun

Grensásvegi 11, 108 Reykjavík