Löggiltir fasteignasalar innan Félags fasteignasala:
Benedikt Ólafsson
Sveinbjörn Rosén Guðlaugsson
Eggert Maríuson
Tinna Bergmann Halldórsdóttir
Upplýsingar
Verðsaga
svg
Byggt 1981
svg
413,8 m²
svg
9 herb.
svg
3 baðherb.
svg
8 svefnh.
svg
Þvottahús

Lýsing

Gott fermetraverð!

STOFN FASTEIGNASALA KYNNIR: Einstaklega rúmgott einbýlishús í grónu og rólegu hverfi við Dalatangi 4, 270 Mosfellsbær, nánar tiltekið eign merkt 01-01, fastanúmer 208-329. Eignin skiptist í 154,4 fm. aðalhæð auk 52,5 fm. tvöfaldan bílskúr ásamt 206,9 fm. neðri hæð, samtals 413,8 fermetrar . Húsið býður upp á gott skipulag, björt samverurými, fjölbreytta nýtingarmöguleika og fallega verönd sem snýr til suðurs og vesturs. Neðri hæð sem hentar vel sem fjölskyldurými, aukaíbúð eða vinnuaðstaða. Eignin Dalatangi 4 er skráð sem hér segir hjá FMR: Eign 208-3294, birt stærð 413.8 fm. ásamt öllu því sem eigninni fylgir, þar með talið tilheyrandi lóðar og sameignarréttindi.

ATH. FASTEIGNAMAT NÆSTA ÁRS KR. 194.150.000.-


"Smellið hér til að fá söluyfirlit strax".
 
  • Rúmgott einbýlishús á tveimur hæðum.
  • Sveigjanleg nýting – möguleiki á aukaíbúð á neðri hæð.
  • Stór verönd og ágætis garður.
  • Tvöfaldur bílskúr og góður aðgangur.
  • Stutt í skóla, íþróttir, þjónustu og náttúru.



Nánari upplýsingar veita:
Benedikt Ólafsson Löggiltur fasteignasali , í síma 661 7788, tölvupóstur bo@stofnfasteignasala.is

Eggert Maríuson Löggiltur fasteignasali félagi FF. Sími 690 1472, tölvupóstur eggert@stofnfasteignasala.is


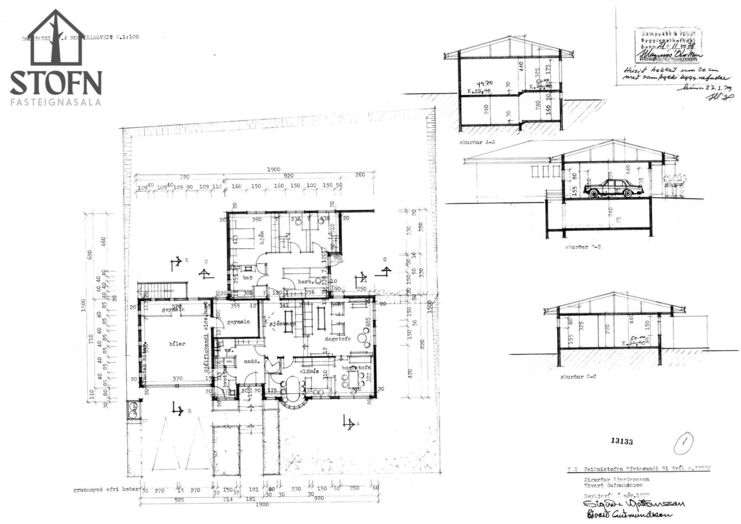
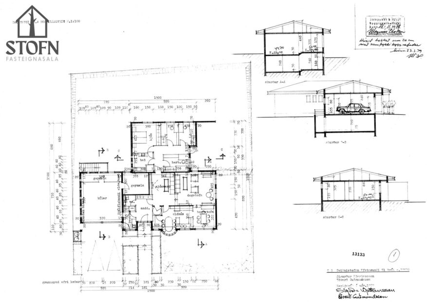
Aðalhæð – 154,4 fm

Forstofa: Komið er inn í forstofu með flísum á gólfi.
Forstofuherbergi: Inn af forstofu er ágætis herbergi með parket á gólfi.
Gestasnyrting: Inn af forstofu er gestasnyrting.
Þvottahús: Sérinngangur inn í þvottahús við hliðina á aðalinngangnum. 
Bílskúr: Innangengt úr þvottahúsi í rúmgóðan tvöfaldan bílskúr.
Stofa / borðstofa / eldhús: Opið og bjart alrými þar sem stofa, borðstofa og eldhús tengjast saman í gott samveru- og fjölskyldurými. Stofan er með stórum gluggum og útgengi á afgirtan pall. Eldhúsið er með viðarinnréttingu, tengi fyrir uppþvottavél og pláss fyrir tvöfaldan ísskáp.
Herbergisálma: Þrjú svefnherbergi (upphaflega fjögur – auðvelt að endurskapa fjórða herbergið). Fataskápar í tveimur herbergjum. Frá herbergisálmu er útgengt á afgirtan og stóran pall sem snýr í suður og vestur. 
Baðherbergi: Flísalagt baðherbergi með sturtu, baðkari og eldri innréttingu.
Verönd: Útgengt á verönd frá gangi út á stóran afgirtan pall. frá aðalhæð

Neðri hæð – 206,9 fm 
Sérinngangur: Sérinngangur sem opnar möguleika á aukaíbúð eða starfsaðstöðu. Í dag er opið á milli hæða þar sem gengið er niður ágætis stiga frá  (í dag er stigi niður frá eldhúsi).
Hol / sjónvarpsrými: Rúmgott hol sem hentar vel sem sjónvarps- eða fjölskyldurými.
Stórt fjölnotarými: Samliggjandi rými nýtt sem leikherbergi.
Herbergi: 1. stórt svefnherbergi með glugga og góðu rými.
Herbergi: 2. auka herbergi sem nýtast sem gestaherbergi, skrifstofa eða geymslurými.
Herbergi: 3. ágætis 
Baðherbergi: Flísalagt baðherbergi með sturtu, tvöföldum vaski og saunu.
Þvottahús: Rúmgott þvottahús með tengi fyrir þvottavél og þurrkara.
Geymslurými: Stórt og vel aðgengilegt geymslurými sem nær undir allan bílskúrinn.

Lóð, verönd og bílastæði: Stór timburverönd til suðurs og vesturs með góðu skjóli og sólargangi, margir útgangar. Gróinn garður með fallegum trjágróðri og næði.
Hellulagt bílaplan og steypt gönguleið að inngangi. Tvöfaldur bílskúr með innangengi og nægilegt pláss fyrir geymslur og vinnuaðstöðu.


Nánari upplýsingar veita:
Benedikt Ólafsson Löggiltur fasteignasali , í síma 661 7788, tölvupóstur bo@stofnfasteignasala.is

Eggert Maríuson Löggiltur fasteignasali félagi FF. Sími 690 1472, tölvupóstur eggert@stofnfasteignasala.is

Við hjá STOFN Fasteignasölu setjum þig í fyrsta sætið – með heilindum, metnaði og persónulegri þjónustu.
Það er okkur sannur heiður að fá að vera fasteignasalinn þinn.
STOFN Fasteignasala – Setjum þig í fyrsta sætið.



Forsendur söluyfirlits:
Söluyfirlit er samið af fasteignasala í samræmi við ákvæði laga nr. 70/2015. Þær upplýsingar sem fram koma í söluyfirliti þessu eru sóttar í opinberar skrár, til seljanda sjálfs og eftir atvikum til húsfélags. Seljandi veitir upplýsingar um eign í samræmi við upplýsingaskyldu laga um fasteignakaup nr. 40/2002. Fasteignasali sannreynir að þær upplýsingar séu réttar með sjónskoðun á eigninni. Fasteignasali getur ekki fullyrt um ástand og eiginleika þeirra hluta fasteigna sem ekki eru aðgengilegir og sjást ekki berum augum, t.d. lagnir, dren, skólp og þak.

Um skoðunar- og aðgæsluskyldu:
Í lögum um fasteignakaup nr. 40/2002 er kveðið á um ríka skoðunarskyldu kaupenda á fasteignum. STOFN Fasteignasala ehf. bendir væntanlegum kaupendum á að kynna sér vel ástand fasteigna við skoðun og fyrir tilboðsgerð og ef þurfa þykir að leita til sérfræðinga um nánari ástandsskoðun.

Almennt um fylgifé íbúðarhúsnæðis:
Til fylgifjár íbúðarhúsnæðis teljast varanlegar innréttingar og búnaður sem annaðhvort er skeytt varanlega við fasteignina eða er sérstaklega sniðinn að henni. Þetta á meðal annars við um fastan búnað og lagnir til hitunnar og vatnsmiðlunar, rafmagnsvirki og leiðslur, loftnet og annan móttökubúnað í eigu seljanda, sem fest eru á fasteign, föst gólfteppi og önnur gólfefni sérstaklega tilsniðin, gluggabúnað, bað- og eldhúsinnréttingar og tæki og vélar sem eru sérstaklega felld inn í innréttingarnar og verða hluti af þeim og aðra innbyggða hluta.

Um ástand einstakra eignarhluta:
Efst í söluyfirlitli þessu er að finna dálka um ástand einstakra hluta eignarinnar. Eftirfarandi lykil er til skýringar á þeirri skráningu:
Nýtt - Eignin er nýbygging.
Endurnýjað - Byggingarhlutinn hefur verið endurnýjaður í heild sinni á einhverjum tímapunkti.
Endurnýjað að hluta - Hluti byggingarhlutans hefur verið endurnýjaður á einhverjum tímapunkti.
Upprunalegt - Seljandi veit ekki til þess að byggingarhluti hafi verið endurnýjaður. 
Ekki vitað - Seljandi þekkir ekki til ástands og ekki er hægt að leggja mat á það með sjónskoðun.

Gjöld sem kaupandi þarf að standa straum af vegna kaupanna:
Stimpilgjald af kaupsamningi sem er hlutfall af fasteignamati. Stimpilgjald er 0,8% fyrir einstaklinga (0,4% við fyrstu kaup) og 1,6% fyrir lögaðila.
Þinglýsingargjald af kaupsamningi, veðskuldabréfum, veðleyfum o.fl. Þinglýsingargjald er kr. 2.700,- fyrir hvert skjal.
Lántökugjald lánastofnunar. Um lántökugjald vísast í gjaldskrá viðkomandi lánveitanda.
Umsýsluþóknun fasteignasölu skv. gjaldskrá.
Ef um nýbyggingu er að ræða greiðir kaupandi skipulagsgjald, 0,3% af brunabótamáti, þegar það er lagt á.
 

Forsendur söluyfirlits:
Söluyfirlit er samið af fasteignasala í samræmi við ákvæði laga nr. 70/2015. Þær upplýsingar sem fram koma í söluyfirliti þessu eru sóttar í opinberar skrár, til seljanda sjálfs og eftir atvikum til húsfélags. Seljandi veitir upplýsingar um eign í samræmi við upplýsingaskyldu laga um fasteignakaup nr. 40/2002. Fasteignasali sannreynir að þær upplýsingar séu réttar með sjónskoðun á eigninni. Fasteignasali getur ekki fullyrt um ástand og eiginleika þeirra hluta fasteigna sem ekki eru aðgengilegir og sjást ekki berum augum, t.d. lagnir, dren, skólp og þak.

Um skoðunar- og aðgæsluskyldu:
Í lögum um fasteignakaup nr. 40/2002 er kveðið á um ríka skoðunarskyldu kaupenda á fasteignum. STOFN Fasteignasala ehf. bendir væntanlegum kaupendum á að kynna sér vel ástand fasteigna við skoðun og fyrir tilboðsgerð og ef þurfa þykir að leita til sérfræðinga um nánari ástandsskoðun.

img
Benedikt Ólafsson
Lögg.fasteignasali innan félags fasteignasala
STOFN Fasteignasala ehf.
Lyngási 11, 210 Garðabæ
STOFN Fasteignasala ehf.

STOFN Fasteignasala ehf.

Lyngási 11, 210 Garðabæ
img

Benedikt Ólafsson

Lyngási 11, 210 Garðabæ
Ár
Fasteignamat
Kaupverð
Stærð
Fermetraverð
29. maí. 2012
58.900.000 kr.
57.000.000 kr.
413.8 m²
137.748 kr.
Byggt á upplýsingum úr Þjóðskrá Íslands frá 2006-2026
STOFN Fasteignasala ehf.

STOFN Fasteignasala ehf.

Lyngási 11, 210 Garðabæ

Benedikt Ólafsson

Lyngási 11, 210 Garðabæ