Löggiltir fasteignasalar innan Félags fasteignasala:
Jósep Grímsson
Rúnar Örn Rafnsson
Upplýsingar
Verðsaga
Byggt 2020
83,7 m²
3 herb.
1 baðherb.
2 svefnh.
Sameiginl. inngangur
Lyfta
Lýsing
Jósep Grímsson og Fasteignasalan Grafarvogi kynna fallega íbúð að Eskivöllum 11 í Hafnarfirði
Góð þriggja herbergja íbúð á 4. hæð í fjölbýlishúsi á góðum stað á Völlunum í Hafnarfirði.
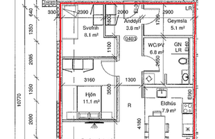
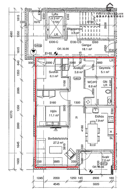
Eignin skiptist í forstofu/gang, stofu, eldhús, 2 svefnherbergi, baðherbergi og geymslu sem er innan íbúðar.
Eignin er skráð skv. þjóðskrá 83,7 m² og er einkar vel skipulögð.
Íbúðin er horníbúð á enda hússins og er því með mjög gott útsýni í þessu nýlega fjölbýlishúsi sem byggt var árið 2020.
Lýsing íbúðar:
Forstofa er með góðum skáp og flísum á gólfi. Gengið er inn í forstofuna úr snyrtilegri sameign örstutt frá lyftunni.
Stofa og eldhús eru í björtu parketlögðu alrými með fallegu útsýni á tvo vegu. Gengið er út á góðar svalir úr þessu rými.
Eldhúsið er með góðri innréttingu, innbyggðri uppþvottavél og innbyggðum kæliskáp með frysti.
Hjónaherbergi er rúmgott, parket á gólfi og góður fataskápur.
Barnaherbergi er parketlagt og með góðum skáp.
Baðherbergi er flísalagt á gólfi og veggjum. Góð vaskinnrétting, sturta, upphengt salerni og gott pláss fyrir þvottavél og þurrkara.
Geymsla er innan íbúðar og er gengið í hana úr forstofunni.
Búið er að setja upp hleðslustöðvar fyrir rafbíla á lóð hússins sem allir íbúar geta nýtt sér. Í sameign er hjóla og vagnageymsla.
Húsið er á sex hæðum með 39 íbúðum. Húsið er staðsteypt, álklæðning að utan, gluggar eru úr áli og tré.
Björt og falleg íbúð á frábærum stað í þessu góða hverfi. Stutt er í skóla, leikskóla, íþróttasvæði, sundlaug, verslanir og almenna þjónustu.
Vantar allar gerðir eigna á skrá. Persónuleg og góð þjónusta.
Nánari upplýsingar gefur:
Jósep Grímsson löggiltur fasteignasali
Fasteignasalan Grafarvogi
S: 863-1126
josep@fastgraf.is
Góð þriggja herbergja íbúð á 4. hæð í fjölbýlishúsi á góðum stað á Völlunum í Hafnarfirði.
Eignin skiptist í forstofu/gang, stofu, eldhús, 2 svefnherbergi, baðherbergi og geymslu sem er innan íbúðar.
Eignin er skráð skv. þjóðskrá 83,7 m² og er einkar vel skipulögð.
Íbúðin er horníbúð á enda hússins og er því með mjög gott útsýni í þessu nýlega fjölbýlishúsi sem byggt var árið 2020.
Lýsing íbúðar:
Forstofa er með góðum skáp og flísum á gólfi. Gengið er inn í forstofuna úr snyrtilegri sameign örstutt frá lyftunni.
Stofa og eldhús eru í björtu parketlögðu alrými með fallegu útsýni á tvo vegu. Gengið er út á góðar svalir úr þessu rými.
Eldhúsið er með góðri innréttingu, innbyggðri uppþvottavél og innbyggðum kæliskáp með frysti.
Hjónaherbergi er rúmgott, parket á gólfi og góður fataskápur.
Barnaherbergi er parketlagt og með góðum skáp.
Baðherbergi er flísalagt á gólfi og veggjum. Góð vaskinnrétting, sturta, upphengt salerni og gott pláss fyrir þvottavél og þurrkara.
Geymsla er innan íbúðar og er gengið í hana úr forstofunni.
Búið er að setja upp hleðslustöðvar fyrir rafbíla á lóð hússins sem allir íbúar geta nýtt sér. Í sameign er hjóla og vagnageymsla.
Húsið er á sex hæðum með 39 íbúðum. Húsið er staðsteypt, álklæðning að utan, gluggar eru úr áli og tré.
Björt og falleg íbúð á frábærum stað í þessu góða hverfi. Stutt er í skóla, leikskóla, íþróttasvæði, sundlaug, verslanir og almenna þjónustu.
Vantar allar gerðir eigna á skrá. Persónuleg og góð þjónusta.
Nánari upplýsingar gefur:
Jósep Grímsson löggiltur fasteignasali
Fasteignasalan Grafarvogi
S: 863-1126
josep@fastgraf.is
Ár
Fasteignamat
Kaupverð
Stærð
Fermetraverð
7. júl. 2020
60.550.000 kr.
42.400.000 kr.
10403 m²
4.076 kr.
Byggt á upplýsingum úr Þjóðskrá Íslands frá 2006-2026