Upplýsingar
Verðsaga
Byggt 2014
91,5 m²
3 herb.
1 baðherb.
2 svefnh.
Þvottahús
Útsýni
Sérinngangur
Lýsing
Hraunhamar fasteignasala kynnir: Bjarta og vel skipulagða þriggja herbergja íbúð á annarri hæð með sérinngangi á þessum vinsæla stað í Áslandshverfinu í Hafnarfirði. Frábært útsýni.
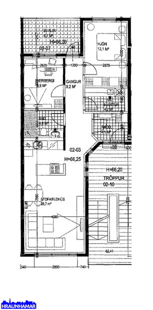
Íbúðin er skráð 91,5 fm skv. HMS þar af er 7 fm geymsla.
✔️ Sérinngangur
✔️ Góð staðsetning, stutt á stofnbraut
✔️ Frábært útsýni
✔️ Gott aðgengi
Lýsing eignarinnar:
Sérinngangur.
Rúmgóð flísalögð forstofa með fataskáp.
Eldhús með ljósri innréttingu, stæði fyrir ísskáp og uppþvottavél. og er það opið inn í stofuna.
Rúmgóð björt stofa og borðstofa.
Gott hol, þaðan er útgengt á rúmgóðar suðursvalir.
Rúmgott hjónaherbergi með góðum fataskápum.
Svefnherbergi með fataskáp.
Flísalagt baðherbergi með innréttingu, walk in sturtu og upphengdu salerni.
Þvottahús innan íbúðar með innréttingu og skolvaski.
Smelltu hérna til að fá söluyfirlit sent strax.
Gólfefni eru parket og flísar.
Sérgeymsla er í sameign, auk þess er hjóla- og vagnageymsla.
Eign sem vert er að skoða, frábært útsýni.
Nánari upplýsingar veitir:
Glódís Helgadóttir löggiltur fasteignasali í s. 659-0510 eða glodis@hraunhamar.is
Skoðunarskylda:
Í lögum um fasteignakaup nr. 40/2002 er kveðið á um ríka skoðunarskyldu kaupenda á fasteignum. Hraunhamar fasteignasala vill benda væntanlegum kaupendum á að kynna sér vel ástand fasteigna fyrir kauptilboðsgerð og ef þurfa þykir að leita til sérfræðinga fyrir nánari ástandsskoðun.
Gjöld sem kaupandi þarf að standa straum af vegna kaupanna:
1. Stimpilgjald af kaupsamningi, fyrstu kaup (0,4%), almenn kaup (0,8%), lögaðilar (1,6%) af heildarfasteignamati.
2. Þinglýsingargjald af kaupsamningi, veðskuldabréfi, mögulegu veðleyfi o.fl. – kr. 2.700 kr. af hverju skjali.
3. Lántökugjald lánastofnunar er skv. verðskrá viðkomandi lánastofnunar.
4. Umsýslugjald til fasteignasölu skv. þjónustusamningi
Hraunhamar er elsta fasteignasala Hafnarfjarðar, stofnuð 1983.
Hraunhamar, í fararbroddi í rúm 40 ár. – Hraunhamar.is
Íbúðin er skráð 91,5 fm skv. HMS þar af er 7 fm geymsla.
✔️ Sérinngangur
✔️ Góð staðsetning, stutt á stofnbraut
✔️ Frábært útsýni
✔️ Gott aðgengi
Lýsing eignarinnar:
Sérinngangur.
Rúmgóð flísalögð forstofa með fataskáp.
Eldhús með ljósri innréttingu, stæði fyrir ísskáp og uppþvottavél. og er það opið inn í stofuna.
Rúmgóð björt stofa og borðstofa.
Gott hol, þaðan er útgengt á rúmgóðar suðursvalir.
Rúmgott hjónaherbergi með góðum fataskápum.
Svefnherbergi með fataskáp.
Flísalagt baðherbergi með innréttingu, walk in sturtu og upphengdu salerni.
Þvottahús innan íbúðar með innréttingu og skolvaski.
Smelltu hérna til að fá söluyfirlit sent strax.
Gólfefni eru parket og flísar.
Sérgeymsla er í sameign, auk þess er hjóla- og vagnageymsla.
Eign sem vert er að skoða, frábært útsýni.
Nánari upplýsingar veitir:
Glódís Helgadóttir löggiltur fasteignasali í s. 659-0510 eða glodis@hraunhamar.is
Skoðunarskylda:
Í lögum um fasteignakaup nr. 40/2002 er kveðið á um ríka skoðunarskyldu kaupenda á fasteignum. Hraunhamar fasteignasala vill benda væntanlegum kaupendum á að kynna sér vel ástand fasteigna fyrir kauptilboðsgerð og ef þurfa þykir að leita til sérfræðinga fyrir nánari ástandsskoðun.
Gjöld sem kaupandi þarf að standa straum af vegna kaupanna:
1. Stimpilgjald af kaupsamningi, fyrstu kaup (0,4%), almenn kaup (0,8%), lögaðilar (1,6%) af heildarfasteignamati.
2. Þinglýsingargjald af kaupsamningi, veðskuldabréfi, mögulegu veðleyfi o.fl. – kr. 2.700 kr. af hverju skjali.
3. Lántökugjald lánastofnunar er skv. verðskrá viðkomandi lánastofnunar.
4. Umsýslugjald til fasteignasölu skv. þjónustusamningi
Hraunhamar er elsta fasteignasala Hafnarfjarðar, stofnuð 1983.
Hraunhamar, í fararbroddi í rúm 40 ár. – Hraunhamar.is
Ár
Fasteignamat
Kaupverð
Stærð
Fermetraverð
11. maí. 2021
42.600.000 kr.
53.900.000 kr.
91.5 m²
589.071 kr.
12. apr. 2017
31.400.000 kr.
39.900.000 kr.
91.5 m²
436.066 kr.
27. ágú. 2014
11.300.000 kr.
27.900.000 kr.
91.5 m²
304.918 kr.
Byggt á upplýsingum úr Þjóðskrá Íslands frá 2006-2026