Löggiltir fasteignasalar innan Félags fasteignasala:
Ástþór Reynir Guðmundsson
Vigdís R. S. Helgadóttir
Guðbjörg Helga Jóhannesdóttir
Gylfi Jens Gylfason
Sigrún Matthea Sigvaldadóttir
Sveinn Gíslason
Páll Guðmundsson
Þórarinn Arnar Sævarsson
Berglind Hólm Birgisdóttir
Þorsteinn Gíslason
Guðrún Lilja Tryggvadóttir
Brynjar Ingólfsson
Guðný Þorsteinsdóttir
Bjarni Blöndal
Þorsteinn Ólafs
Þórdís Björk Davíðsdóttir
Jóhann Kristinn Jóhannesson
Bjarný Björg Arnórsdóttir
Salvör Þóra Davíðsdóttir
Magga Sigríður Gísladóttir
Upplýsingar
Verðsaga
Byggt 1961
70 m²
3 herb.
1 baðherb.
2 svefnh.
Sameiginl. inngangur
Opið hús: 11. janúar 2026
kl. 15:00
til 15:30
Opið hús: Álfheimar 16, 104 Reykjavík, Íbúð merkt: 02 01. Eignin verður sýnd sunnudaginn 11. janúar 2026 milli kl. 15:00 og kl. 15:30.
Lýsing
RE/MAX kynnir í einkasölu: Fallega 3ja herbergja 70 ferm. íbúð á 2. hæð að Álfheimum 16. Íbúðin er 6 ferm. stærri en uppgefin stærð og er í raun 76 ferm. þar sem svölum var breytt og eru nú hluti af íbúðinni (borðkrókur). Íbúðin er laus til afhendingar 1. febrúar 2026.
2017-18 var eignin endurnýjuð að miklu leyti:
Lagnir, hitagrind, rafmagn, tafla og mælir, frárennsli, tæki, innréttingar, hurðar og gólfefni. Einnig var húsið lagað að utan og málað.
gler og allir gluggar nema þessir stóru voru endurnýjaðir 2022. Þak yfirfarið og málað í sumar.
Pantaðu skoðun hjá Hauki lgf í s: 699-2900 eða á haukur@remax.is
Smelltu hér til að fá söluyfirlit strax!
Nánari lýsing:
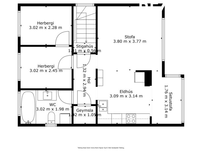
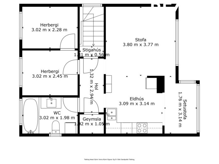
Stigagangur: Komið er inn í sameiginlega forstofu með hæð og gengið upp teppalagðan stiga að íbúðinni.
Gangur: Með harðparketi á gólfi.
Stofa/borðstofa: Björt og rúmgóð með harðparketi á gólfi og gott útsýni.
Eldhús: Hvít innrétting, opið inn í stofu, harðparket á gólfi.
Herbergi: Harðparket á gólfi.
Hjónaherbergi: Harðparket á gólfi.
Geymsla: Lítil geymsla í íbúðinni.
Baðherbergi: flísalagt, upphengt WC, baðkar/sturta, tengi fyrir þvottavél og þurrkara.
Bílastæði fylgir eigninni.
Möguleiki á að kaupa hluta húsgagna.
Allar nánari upplýsingar veitir:
Haukur Hauksson lögg. fasteignasali hjá RE/MAX í s: 699-2900 eða á haukur@remax.is
Gjöld sem kaupandi þarf að standa straum af vegna kaupanna:
1. Stimpilgjald af kaupsamningi er af heildarfasteignamati - Einstaklingar 0,8% - Fyrstu kaupendur 0,4% - Lögaðilar 1,6%.
2. Þinglýsingargjald af kaupsamningi, veðskuldabréfi, veðleyfi og fl. 3.800 kr. af hverju skjali.
3. Lántökugjald lánastofnunar - Nánari upplýsingar á heimasíðu lánastofnana.
4. Umsýslugjald til fasteignasölu 69.900 kr. m.vsk
2017-18 var eignin endurnýjuð að miklu leyti:
Lagnir, hitagrind, rafmagn, tafla og mælir, frárennsli, tæki, innréttingar, hurðar og gólfefni. Einnig var húsið lagað að utan og málað.
gler og allir gluggar nema þessir stóru voru endurnýjaðir 2022. Þak yfirfarið og málað í sumar.
Pantaðu skoðun hjá Hauki lgf í s: 699-2900 eða á haukur@remax.is
Smelltu hér til að fá söluyfirlit strax!
Nánari lýsing:
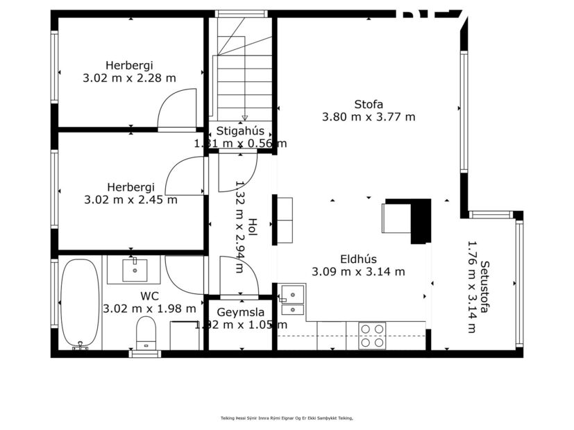
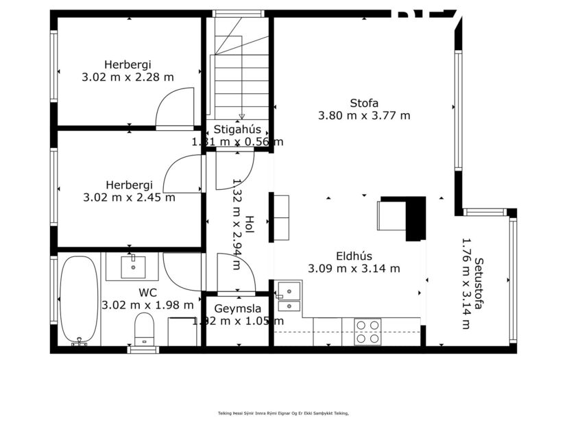
Stigagangur: Komið er inn í sameiginlega forstofu með hæð og gengið upp teppalagðan stiga að íbúðinni.
Gangur: Með harðparketi á gólfi.
Stofa/borðstofa: Björt og rúmgóð með harðparketi á gólfi og gott útsýni.
Eldhús: Hvít innrétting, opið inn í stofu, harðparket á gólfi.
Herbergi: Harðparket á gólfi.
Hjónaherbergi: Harðparket á gólfi.
Geymsla: Lítil geymsla í íbúðinni.
Baðherbergi: flísalagt, upphengt WC, baðkar/sturta, tengi fyrir þvottavél og þurrkara.
Bílastæði fylgir eigninni.
Möguleiki á að kaupa hluta húsgagna.
Allar nánari upplýsingar veitir:
Haukur Hauksson lögg. fasteignasali hjá RE/MAX í s: 699-2900 eða á haukur@remax.is
Gjöld sem kaupandi þarf að standa straum af vegna kaupanna:
1. Stimpilgjald af kaupsamningi er af heildarfasteignamati - Einstaklingar 0,8% - Fyrstu kaupendur 0,4% - Lögaðilar 1,6%.
2. Þinglýsingargjald af kaupsamningi, veðskuldabréfi, veðleyfi og fl. 3.800 kr. af hverju skjali.
3. Lántökugjald lánastofnunar - Nánari upplýsingar á heimasíðu lánastofnana.
4. Umsýslugjald til fasteignasölu 69.900 kr. m.vsk
Ár
Fasteignamat
Kaupverð
Stærð
Fermetraverð
10. mar. 2025
58.750.000 kr.
64.900.000 kr.
50201 m²
1.293 kr.
10. ágú. 2018
31.850.000 kr.
38.000.000 kr.
70.9 m²
535.966 kr.
15. des. 2017
25.550.000 kr.
22.000.000 kr.
70.9 m²
310.296 kr.
Byggt á upplýsingum úr Þjóðskrá Íslands frá 2006-2026