Löggiltir fasteignasalar innan Félags fasteignasala:
Sigurður Samúelsson
Andri Sigurðsson
Sveinn Eyland
Ingibjörg Agnes Jónsdóttir
Guðrún Diljá Lúðvíksdóttir
Monika Hjálmtýsdóttir
Júlíus Jóhannsson
Freyja Rúnarsdóttir
Jón Óskar Karlsson
Davíð Matthíasson
Vista
fjölbýlishús

Skipholt 70

105 Reykjavík

64.900.000 kr.

980.363 þ.kr./m2
Fasteignanúmer

F2359832

Fasteignamat

60.600.000 kr.

Brunabótamat

40.900.000 kr.

Áhvílandi

0 kr.

Arion banki – Reikna lán
Upplýsingar
Verðsaga
svg
Byggt 1965
svg
66,2 m²
svg
3 herb.
svg
1 baðherb.
svg
2 svefnh.
svg
Þvottahús
svg
Sameiginl. inngangur

Lýsing

LANDMARK fasteignamiðlun ehf. og Andri Sigurðsson Löggiltur fasteignasali (s: 690 3111 / andri@landmark.is) og félagsmaður í Félagi fasteignasala kynna í einkasölu:

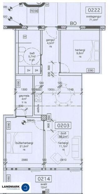
Um er að ræða fallega 3ja herbergja íbúð á 2. hæð í fallegu lyftuhúsi við Skipholti 70 í Reykjavík. Samkvæmt skráningu HMS er íbúðin skráð 66,2 fm ásamt 12 fm svölum. Á lóðinni eru 39 sameiginleg bílastæði. Húsið er staðsett í grónu hverfi á frábærum stað þar sem blandað er saman íbúðum og þjónustu. Í nánasta umhverfi má finna flesta þá þjónustu sem fólk þarf á að halda. Íbúðin skiptist í stofu, eldhús, baðherbergi, tvö svefnherbergi, geymslu og svalir. Húsið var tekið í gegn á afar smekklegan hátt árið 2017. Studio Granda sá um hönnun hússins að innan sem utan. Snyrtileg og vel umgengin sameign - sjónsteypa á veggjum - innfelld lýsing í íbúð - aukin lofthæð er í íbúðinni (280 cm og hurðar 230 cm). Íbúðin er laus við undirritun kaupsamnings

Nánari lýsing eignar: Stofa og eldhús í opnu rými ásamt herbergisgangi. Frá gangi er gengið inn á baðherbergi og svefnherbergi. Frá stofu er gengið inn í rúmgott svefnherbergi og þar innaf er geymsla / fataherberbergi. Frá stofu og svefnherbergi er unnt að ganga út á svalir. Í eldhúsi er innrétting sem nær alveg upp í loft úr birkikrossvið með ljúflokun og ljósum undir yfirskápum. Milli skápa eru mósaíkflísar frá Cinca. Borðplata úr stáli með ísoðnum vaski, keramik helluborð, blástursofn og gufugleypir með ústsogi. Baðherbergi er vel skipulagt og flísalagt í hólf og gólf með litlum gegnheilum mósaíkflísum frá Cinca, Walk-in sturta, innréttingar eru sérsmíðaðar eftir teikningum Studio Granda. Upphengt salerni með innbyggðum vatnskassa í vegg. Blöndunartæki í sturtu eru innfelld og frá Grohe. Handklæðaofn á baðherbergi. Á baðherbergi er tengi fyrir þvottavél og þurrkara. Allar innréttingar og innihurðir eru sérsmíðaðar. Öll gólf eru með línólíum dúki frá Forbo

Sameign: 70 fm hellulagðar þaksvalir til suðurs sem er sameign. Á jarðhæð er rúmgóð sameiginleg hjóla- og vagnageymsla.

Allar nánari upplýsingar veitir og bókun á skoðunartíma: Andri Sigurðsson Löggiltur fasteignasali í síma 690 3111 eða andri@landmark.is

Umsagnir viðskiptavina HÉR
Fylgdu mér á Facebook
Fylgdu mér á Instagram

Pantaðu FRÍTT söluverðmat á www.frittsoluverdmat.is
 

Skoðunar- og aðgæsluskylda:
Lög um fasteignakaup nr. 40/2002 kveða á um að kaupendur þurfi að skoða fasteignir vel áður en tilboð er gert. LANDMARK fasteignamiðlun ráðleggur kaupendum að skoða ástand eignar og leita sér aðstoðar sérfræðinga ef þörf er á nánari skoðun.

Söluyfirlit:
Söluyfirlit er gert af fasteignasala samkvæmt lögum nr. 70/2015. Upplýsingar í yfirlitinu eru fengnar úr opinberum skrám, frá seljanda og ef þarf frá húsfélagi. Fasteignasali sannreynir upplýsingar með skoðun á eigninni en getur ekki sannreynt ástand þess sem ekki er aðgengilegt eða sýnilegt, t.d. lagnir, dren, skólp og þak.

Gjöld sem kaupandi þarf að greiða:
1. Stimpilgjald: 0,8% af fasteignamati (0,4% fyrir fyrstu kaup) og 1,6% fyrir lögaðila.
2. Þinglýsingargjald: 2.700 kr. fyrir hvert skjal.
3. Lántökugjald: Fer eftir gjaldskrá lánveitanda.
3. Þjónustusýslugjald: 79.000 kr. m/vsk.
3. Skipulagsgjald: Ef um nýbyggingu er að ræða, 0,3% af brunabótamáti þegar það er lagt á.

Heimasíða LANDMARK
Pantaðu frítt söluverðmat

img
Andri Sigurðsson
Lögg.fasteignasali innan félags fasteignasala
LANDMARK fasteignamiðlun
Hlíðasmári 2, 201 Kópavogur
LANDMARK fasteignamiðlun

LANDMARK fasteignamiðlun

Hlíðasmári 2, 201 Kópavogur
phone
img

Andri Sigurðsson

Hlíðasmári 2, 201 Kópavogur
Ár
Fasteignamat
Kaupverð
Stærð
Fermetraverð
14. mar. 2024
52.200.000 kr.
55.900.000 kr.
66.2 m²
844.411 kr.
28. feb. 2020
37.900.000 kr.
38.900.000 kr.
66.2 m²
587.613 kr.
Byggt á upplýsingum úr Þjóðskrá Íslands frá 2006-2026
LANDMARK fasteignamiðlun

LANDMARK fasteignamiðlun

Hlíðasmári 2, 201 Kópavogur
phone

Andri Sigurðsson

Hlíðasmári 2, 201 Kópavogur