Upplýsingar
Byggt 2023
128,5 m²
4 herb.
2 baðherb.
3 svefnh.
Sérinngangur
Bílastæði
Lyfta
Laus strax
Lýsing
Betri Stofan Fasteignasala, Dagrún Davíðsdóttir og Jason Kristinn Ólafsson löggiltir fasteignasalar kynna nýja 4 herbergja 128,5 fm íbúð á 1 hæð með sérinngangi ásamt geymslu og bílastæði í bílakjallara. Hellulagður sérafnotareitur sem snýr til norðurs. 2 baðherbergi
Íbúðirnar afhendast fullbúnar við kaupsamning, með gólfefnum, innbyggðri uppþvottavél, ísskáp með frysti og lýsing er í loftum. Ljós eru innbyggð að hluta. Baðherbergi eru flísalögð með sturtugleri, vaski, upphengdu salerni og handklæðaofn.
** Allar upplýsingar veita Dagrún Davíðsdóttir löggiltur fasteignasali í síma 866-1763, dagrun@betristofan.is og Jason Kristinn Ólafsson löggiltur fasteignasali í síma 775-1515, jason@betristofan.is**
Heimasíða verkefnis: Asparskógar 18
Nánari lýsing:
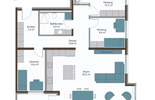
Forstofa: Skápur, flísalagt.
Hol: Parket á gólfi.
Eldhús: Hvít innrétting frá GKS. Ofn í vinnuhæð, vifta. Span helluborð, innbyggður kælir og frystir og uppþvottavél. Tæki frá AEG. Innbyggð lýsing undir efri skápum. Eldhúseyja með góðu vinnuplássi. Parket á gólfi.
Stofa , borðstofa og eldhús mynda opið rými. Parket á gólfi. Útgengt út á hellulagðan sérafnotareit.
Svefnherbergi I: Fataskápur. Parket á gólfi
Svefnherbergi II: Fataskápur. Parket á gólfi
Hjónaherbergi: Fataskápar. Parket á gólfi.
Baðherbergi I: er innaf hjónaherbergi. Flísar á gólfi og veggjum. Sturta, innrétting með handlaug, upphengt salerni.
Baðherbergi II: Innrétting með handlaug. Speglaskápur. Upphengt salerni. Sturta með sturtugleri.Handklæðaofn. Ljósar flísar á gólfi og veggjum.
Geymsla: 5,8 fm í kjallara.
Stæði í bílakjallara: Merkt B-21.
Sameiginleg hjóla- og vagnageymsla á jarðhæð.
Eignin er laus til afhendingar við kaupsamning.
Eignin Asparskógar 18 er skráð sem hér segir hjá FMR: Eign 2519854 , birt stærð 128,5 fm. Íbúðin er 122,7 og geymsla 5,8
Nánari upplýsingar veita:
Dagrún Davíðsdóttir löggiltur fasteignasali í síma 866-1763 eða á netfangið: dagrun@betristofan.is
Jason Kristinn Ólafsson löggiltur fasteignasali í síma 775-1515 eða á netfangið: jason@betristofan.is
Íbúðirnar afhendast fullbúnar við kaupsamning, með gólfefnum, innbyggðri uppþvottavél, ísskáp með frysti og lýsing er í loftum. Ljós eru innbyggð að hluta. Baðherbergi eru flísalögð með sturtugleri, vaski, upphengdu salerni og handklæðaofn.
** Allar upplýsingar veita Dagrún Davíðsdóttir löggiltur fasteignasali í síma 866-1763, dagrun@betristofan.is og Jason Kristinn Ólafsson löggiltur fasteignasali í síma 775-1515, jason@betristofan.is**
Heimasíða verkefnis: Asparskógar 18
Nánari lýsing:
Forstofa: Skápur, flísalagt.
Hol: Parket á gólfi.
Eldhús: Hvít innrétting frá GKS. Ofn í vinnuhæð, vifta. Span helluborð, innbyggður kælir og frystir og uppþvottavél. Tæki frá AEG. Innbyggð lýsing undir efri skápum. Eldhúseyja með góðu vinnuplássi. Parket á gólfi.
Stofa , borðstofa og eldhús mynda opið rými. Parket á gólfi. Útgengt út á hellulagðan sérafnotareit.
Svefnherbergi I: Fataskápur. Parket á gólfi
Svefnherbergi II: Fataskápur. Parket á gólfi
Hjónaherbergi: Fataskápar. Parket á gólfi.
Baðherbergi I: er innaf hjónaherbergi. Flísar á gólfi og veggjum. Sturta, innrétting með handlaug, upphengt salerni.
Baðherbergi II: Innrétting með handlaug. Speglaskápur. Upphengt salerni. Sturta með sturtugleri.Handklæðaofn. Ljósar flísar á gólfi og veggjum.
Geymsla: 5,8 fm í kjallara.
Stæði í bílakjallara: Merkt B-21.
Sameiginleg hjóla- og vagnageymsla á jarðhæð.
Eignin er laus til afhendingar við kaupsamning.
Eignin Asparskógar 18 er skráð sem hér segir hjá FMR: Eign 2519854 , birt stærð 128,5 fm. Íbúðin er 122,7 og geymsla 5,8
Nánari upplýsingar veita:
Dagrún Davíðsdóttir löggiltur fasteignasali í síma 866-1763 eða á netfangið: dagrun@betristofan.is
Jason Kristinn Ólafsson löggiltur fasteignasali í síma 775-1515 eða á netfangið: jason@betristofan.is
Gjöld sem kaupandi þarf að standa straum af ef að kaupum verður:
1. Stimpilgjald af fasteignamati fasteignar er 0.8%, en 0,4% fyrir fyrstu kaup og 1,6% fyrir lögaðila.
2. Þinglýsingargjald: kaupsamningi, skuldabréfi, veðleyfi, afsali o.s.frv. er kr. 3.800 af hverju skjali.
3. Lántökukostnaður samkvæmt verðskrá viðkomandi lánastofnunar.
4. Umsýslugjald til fasteignasölu skv. gjaldskrá.