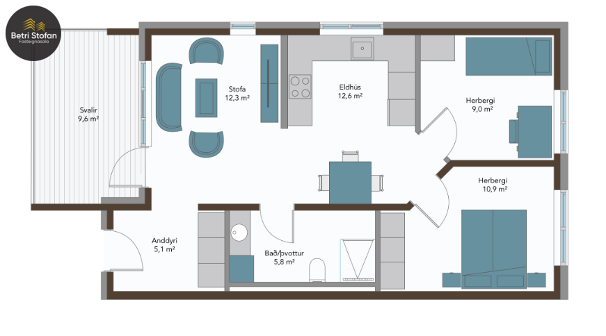
Asparskógar, 300 Akranes