Upplýsingar
Verðsaga
Byggt 2022
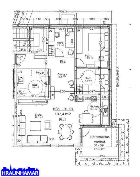
116,4 m²
4 herb.
1 baðherb.
3 svefnh.
Lyfta
Laus strax
Lýsing
Hraunhamar fasteignasala kynnir: Afar bjarta, fallega og rúmgóða 116,4 fm nýlega 4ra herbergja endaíbúð á jarðhæð með verönd, í góðu nýlegu fjölbýli í Skarðshlíðinni Hfj. Húsið er næsta hús við Skarðshlíðarskólann og er því örstutt í skóla og leikskóla. Hagstætt verð ! Afar góð staðsetning í hverfinu, suðurverönd, Laus strax!
Fasteignamat næsta árs 2026 er 79.800.000.-
Eignin skiptist m.a. þannig: Forstofa með skáp, gangur/hol, tvö góð barnaherbergi með skáp og rúmgott hjónaherbergi með skáp, fallegt rúmgott baðherbergi flísalagt í hólf og gólf, hvít innrétting, fín sturtuaðstaða, tengi fyrir þvottavél/þurrkara.
Fallegt rúmgott og bjart eldhús sem er opið inn í björt stofurýmin, hvít innrétting og tæki frá Ormsson. Við eldhús er síðan rúmgóð björt borðstofa og stofan, þaðan er útgengt út á veröndina í suður. Harðparket á gólfum.
Rúmgóð sér geymsla í sameign.
Snyrtileg hefðbundin sameign, m.a. hjóla og vagna geymsla.
Garður er frágengin.
Þetta er áhugaverð björt, rúmgóð og falleg íbúð á þessum vinsæla stað í Skarðshlíðinni sem vert er að skoða. Laus strax og til sýnis samdægurs.
Nánari uppl. gefur Helgi Jón Harðarson sölustj. 893-2233 helgi@hraunhamar.is og
Glódís Helgadóttir löggiltur fasteignasali í s. 659-0510 eða glodis@hraunhamar.is
Skoðunarskylda:
Í lögum um fasteignakaup nr. 40/2002 er kveðið á um ríka skoðunarskyldu kaupenda á fasteignum. Hraunhamar fasteignasala vill benda væntanlegum kaupendum á að kynna sér vel ástand fasteigna fyrir kauptilboðsgerð og ef þurfa þykir að leita til sérfræðinga fyrir nánari ástandsskoðun.
Gjöld sem kaupandi þarf að standa straum af vegna kaupanna:
1. Stimpilgjald af kaupsamningi, fyrstu kaup (0,4%), almenn kaup (0,8%), lögaðilar (1,6%) af heildarfasteignamati.
2. Þinglýsingargjald af kaupsamningi, veðskuldabréfi, mögulegu veðleyfi o.fl. – kr. 2.700 kr. af hverju skjali.
3. Lántökugjald lánastofnunar er skv. verðskrá viðkomandi lánastofnunar.
4. Umsýslugjald til fasteignasölu skv. þjónustusamningi
Hraunhamar er elsta fasteignasala Hafnarfjarðar, stofnuð 1983.
Hraunhamar, í fararbroddi í rúm 40 ár. – Hraunhamar.is
Smelltu hér til að fá frítt söluverðmat.
Smelltu hér til að fá söluyfirlit sent strax.
Fasteignamat næsta árs 2026 er 79.800.000.-
Eignin skiptist m.a. þannig: Forstofa með skáp, gangur/hol, tvö góð barnaherbergi með skáp og rúmgott hjónaherbergi með skáp, fallegt rúmgott baðherbergi flísalagt í hólf og gólf, hvít innrétting, fín sturtuaðstaða, tengi fyrir þvottavél/þurrkara.
Fallegt rúmgott og bjart eldhús sem er opið inn í björt stofurýmin, hvít innrétting og tæki frá Ormsson. Við eldhús er síðan rúmgóð björt borðstofa og stofan, þaðan er útgengt út á veröndina í suður. Harðparket á gólfum.
Rúmgóð sér geymsla í sameign.
Snyrtileg hefðbundin sameign, m.a. hjóla og vagna geymsla.
Garður er frágengin.
Þetta er áhugaverð björt, rúmgóð og falleg íbúð á þessum vinsæla stað í Skarðshlíðinni sem vert er að skoða. Laus strax og til sýnis samdægurs.
Nánari uppl. gefur Helgi Jón Harðarson sölustj. 893-2233 helgi@hraunhamar.is og
Glódís Helgadóttir löggiltur fasteignasali í s. 659-0510 eða glodis@hraunhamar.is
Skoðunarskylda:
Í lögum um fasteignakaup nr. 40/2002 er kveðið á um ríka skoðunarskyldu kaupenda á fasteignum. Hraunhamar fasteignasala vill benda væntanlegum kaupendum á að kynna sér vel ástand fasteigna fyrir kauptilboðsgerð og ef þurfa þykir að leita til sérfræðinga fyrir nánari ástandsskoðun.
Gjöld sem kaupandi þarf að standa straum af vegna kaupanna:
1. Stimpilgjald af kaupsamningi, fyrstu kaup (0,4%), almenn kaup (0,8%), lögaðilar (1,6%) af heildarfasteignamati.
2. Þinglýsingargjald af kaupsamningi, veðskuldabréfi, mögulegu veðleyfi o.fl. – kr. 2.700 kr. af hverju skjali.
3. Lántökugjald lánastofnunar er skv. verðskrá viðkomandi lánastofnunar.
4. Umsýslugjald til fasteignasölu skv. þjónustusamningi
Hraunhamar er elsta fasteignasala Hafnarfjarðar, stofnuð 1983.
Hraunhamar, í fararbroddi í rúm 40 ár. – Hraunhamar.is
Smelltu hér til að fá frítt söluverðmat.
Smelltu hér til að fá söluyfirlit sent strax.
Ár
Fasteignamat
Kaupverð
Stærð
Fermetraverð
1. júl. 2025
73.400.000 kr.
76.000.000 kr.
20101 m²
3.781 kr.
Byggt á upplýsingum úr Þjóðskrá Íslands frá 2006-2026