Upplýsingar
Byggt 2024
123,1 m²
4 herb.
1 baðherb.
3 svefnh.
Þvottahús
Útsýni
Sameiginl. inngangur
Lyfta
Opið hús: 15. janúar 2026
kl. 16:00
til 16:30
Verið velkomin - Opið hús Suðurhellu 16, fimmtudaginn 15. janúar á milli kl. 16:00-16:30. Söluteymi Hraunhamars tekur vel á móti ykkur.
Lýsing
MÖGULEIKI Á HLUTDEILDARLÁNI FRÁ HMS - SJÁ NÁNAR HÉR.
BÓKIÐ SKOÐUN - SÝNUM SAMDÆGURS - Einar s. 888-7979, Hlynur s. 698-2603, Glódís s. 659-0510, Helgi s. 893-2233
Hraunhamar kynnir: Glæsilega nýbyggingu á frábærum stað í Vallarhverfinu í Hafnarfirði, einstakt útsýni yfir hraunbreiðuna og til fjalla.
Íbúðirnar afhendast fullbúnar með gólfefnum.
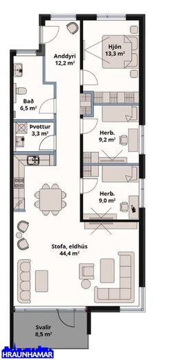
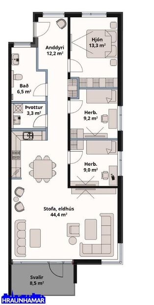
Íbúð 201 er fjögurra herbergja endaíbúð, 123,1 fm og þar af er 8,5 fm geymsla ásamt svölum.
______________________
2ja,3ja og 4ra herbergja
Stærðir frá 67,9 fm til 123,1 fm.
Verð er frá 59,9 millj.
______________________
ATH: Myndir eru af sýningaríbúð og getur skipulag íbúðar verið annað. Efnisval á innréttingum og gólfefnum er eins í öllum íbúðum.
Nánari lýsing skv. teikningu:
Forstofa með fataskápum.
Gott opið rými þar sem eldhús og stofa eru í björtu og fallegu alrými.
Eldhús með smekklegri innréttingu frá Axis og vönduðum eldunartækjum AEG.
Stofa/borðstofa er björt, þaðan er útgengt svalir.
Hjónaherbergi með fataskápum.
Tvö svefnherbergi með fataskápum.
Flísalagt baðherbergi með innréttingu, upphengdu salerni og sturtu.
Þvottahús er sér innan íbúðar.
Sérgeymsla í sameign.
Gólefni eru harðparket og flísar.
Húsið er klætt að utan með álklæðningu, og ál/tré gluggar.
Stórir gluggar þar sem útsýnið fær að njóta sín.
Kaupandi borgar skipulagsgjald þegar þess verður krafist sem er 0,3 % af væntu brunabótamati eignarinnar.
Suðurhella 16 er hluti af klasabyggingu þar sem skemmtilegur garður mun tengja húsin saman. Í stigaganginum eru 27 íbúðir.
Byggingaraðili hússins er ÞBF ehf. sem er reynslumikið og traust byggingarfélag.
Bókið skoðun hjá sölumönnum Hraunhamars:
Einar Örn Ágústsson, löggiltur fasteignasali s. 888-7979, einar@hraunhamar.is
Glódís Helgadóttir, löggiltur fasteignasali, s. 659-0510, glodis@hraunhamar.is
Hlynur Halldórsson, löggiltur fasteignasali, s. 698-2603, hlynur@hraunhamar.is
Helgi Jón Harðarson, sölust. s. 893-2233, helgi@hraunhamar.is
Gjöld sem kaupandi þarf að standa straum af vegna kaupanna:
1. Stimpilgjald af kaupsamningi, fyrstu kaup (0,4%), almenn kaup (0,8%), lögaðilar (1,6%) af heildarfasteignamati.
2. Þinglýsingargjald af kaupsamningi, veðskuldabréfi, mögulegu veðleyfi o.fl. – 2.700 kr. af hverju skjali.
3. Lántökugjald lánastofnunar er skv. verðskrá viðkomandi lánastofnunar.
4. Umsýslugjald til fasteignasölu skv. þjónustusamningi
Hraunhamar er elsta fasteignasala Hafnarfjarðar, stofnuð 1983.
Hraunhamar, í fararbroddi í rúm 40 ár – Hraunhamar.is
Smelltu hér til að fá frítt söluverðmat.
BÓKIÐ SKOÐUN - SÝNUM SAMDÆGURS - Einar s. 888-7979, Hlynur s. 698-2603, Glódís s. 659-0510, Helgi s. 893-2233
Hraunhamar kynnir: Glæsilega nýbyggingu á frábærum stað í Vallarhverfinu í Hafnarfirði, einstakt útsýni yfir hraunbreiðuna og til fjalla.
Íbúðirnar afhendast fullbúnar með gólfefnum.
Íbúð 201 er fjögurra herbergja endaíbúð, 123,1 fm og þar af er 8,5 fm geymsla ásamt svölum.
______________________
2ja,3ja og 4ra herbergja
Stærðir frá 67,9 fm til 123,1 fm.
Verð er frá 59,9 millj.
______________________
ATH: Myndir eru af sýningaríbúð og getur skipulag íbúðar verið annað. Efnisval á innréttingum og gólfefnum er eins í öllum íbúðum.
Nánari lýsing skv. teikningu:
Forstofa með fataskápum.
Gott opið rými þar sem eldhús og stofa eru í björtu og fallegu alrými.
Eldhús með smekklegri innréttingu frá Axis og vönduðum eldunartækjum AEG.
Stofa/borðstofa er björt, þaðan er útgengt svalir.
Hjónaherbergi með fataskápum.
Tvö svefnherbergi með fataskápum.
Flísalagt baðherbergi með innréttingu, upphengdu salerni og sturtu.
Þvottahús er sér innan íbúðar.
Sérgeymsla í sameign.
Gólefni eru harðparket og flísar.
Húsið er klætt að utan með álklæðningu, og ál/tré gluggar.
Stórir gluggar þar sem útsýnið fær að njóta sín.
Kaupandi borgar skipulagsgjald þegar þess verður krafist sem er 0,3 % af væntu brunabótamati eignarinnar.
Suðurhella 16 er hluti af klasabyggingu þar sem skemmtilegur garður mun tengja húsin saman. Í stigaganginum eru 27 íbúðir.
Byggingaraðili hússins er ÞBF ehf. sem er reynslumikið og traust byggingarfélag.
Bókið skoðun hjá sölumönnum Hraunhamars:
Einar Örn Ágústsson, löggiltur fasteignasali s. 888-7979, einar@hraunhamar.is
Glódís Helgadóttir, löggiltur fasteignasali, s. 659-0510, glodis@hraunhamar.is
Hlynur Halldórsson, löggiltur fasteignasali, s. 698-2603, hlynur@hraunhamar.is
Helgi Jón Harðarson, sölust. s. 893-2233, helgi@hraunhamar.is
Gjöld sem kaupandi þarf að standa straum af vegna kaupanna:
1. Stimpilgjald af kaupsamningi, fyrstu kaup (0,4%), almenn kaup (0,8%), lögaðilar (1,6%) af heildarfasteignamati.
2. Þinglýsingargjald af kaupsamningi, veðskuldabréfi, mögulegu veðleyfi o.fl. – 2.700 kr. af hverju skjali.
3. Lántökugjald lánastofnunar er skv. verðskrá viðkomandi lánastofnunar.
4. Umsýslugjald til fasteignasölu skv. þjónustusamningi
Hraunhamar er elsta fasteignasala Hafnarfjarðar, stofnuð 1983.
Hraunhamar, í fararbroddi í rúm 40 ár – Hraunhamar.is
Smelltu hér til að fá frítt söluverðmat.